MEIN ERGEBNIS ANPASSEN

Vollsaniertes Haus mit 4 Einheiten und Rohdachboden, Nähe Sternwartepark - Objektnr. 5632959

1180
Ort
€ 12.500,00
Gesamtkosten
326,00 m²
Fläche
8.0
Zimmer

ECKDATEN
FindMyHome.at // Externe Immobilien-ID5632959 // 4411
ImmobilienartHaus - Miete
Anschrift1180 Wien
Baujahr1900
Befeuerung
Geschosse4
Fläche326,00 m²
Terrassen2 (108,00 m²)
Zimmer8.0
Bad3
WC4
 Abstellraum
Brutto-Miete:€ 12.500,00
Mehrwertsteuer:€ 1.136,36
Monatliche Gesamtkosten:€ 12.500,00
Provision: Gemäß Erstauftraggeberprinzip bezahlt der Abgeber die Provision.




BESCHREIBUNG

Vollsaniertes Haus mit 4 Einheiten und Rohdachboden, Nähe Sternwartepark

Zur Vermietung gelangt ein vollsaniertes Haus bestehend aus vier Einheiten, Rohdachboden und zwei Dachterrassen im wunderschönen 18. Wiener Gemeindebezirk Währing.

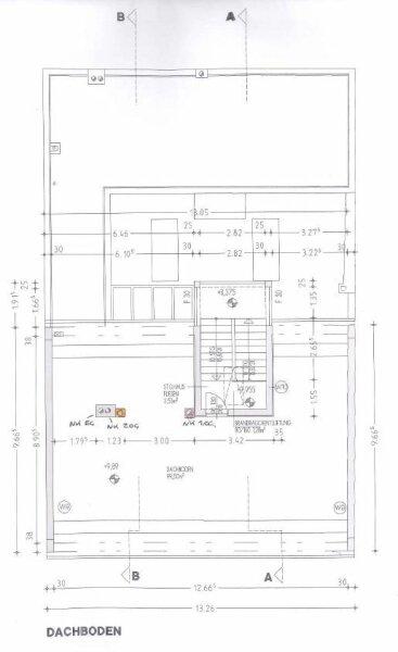
Das Haus wurde im Jahre 1900 erbaut und 2016 vollsaniert. Es besitzt eine Wohnfläche von ca. 326 m² und eine Nutzfläche von ca. 674 m². Die Immobilie erstreckt sich über vier Ebenen (UG, 1. - 3.OG) und teilt sich in ein Büro und drei Wohnungen auf. Zwei schöne Dachterrassen sowie ein ca. 37 m² großer Keller runden das Gesamtbild des Hauses optimal ab. Beheizt wird das Haus mittels Gaszentralheizung. Zudem verfügt das Gebäude über eine Fußbodenheizung sowie eine Klimaanlage. Fünf Stellplätze in der hauseigenen Garage sind ebenfalls vorhanden. Ein ca. 100 m² großer Rohdachboden kann ausgebaut werden.

Im Erdgeschoss treffen Sie auf das ca. 69,1 m² große Büro. Das Büro teilt sich auf in einen Vorraum, zwei große Räume, ein Badezimmer mit WC sowie einen Abstellraum. Die beiden Büroräume sind ca. 22,9 und 13,8 m² groß und befinden sich direkt nebeneinander. Im Erdgeschoss befindet sich auch die Einfahrt in den Innenbereich des Hauses. Es besteht die Möglichkeit, die direkt angrenzende Garage (mit 5 Stellplätzen) als Werkstatt zu nutzen.

Im 1. Obergeschoss befindet sich die erste Wohnung. Diese verfügt über eine Größe von ca. 96,8 m² und erstreckt sich über den vorderen Hausteil. Sie betreten die Wohnung und befinden sich im geräumigen Vorraum, von welchem aus Sie das Wohnzimmer, das Schlafzimmer, das Bad sowie WC und Abstellraum erreichen. Linkerhand gelangen Sie direkt in das ca. 47,6 m² große Wohnzimmer, welches angenehm mit Licht durchflutet wird und Platz für eine große Couchlandschaft sowie einen Esstisch bietet. Die angrenzende Küche ist mit allen notwendigen Geräten ausgestattet. Über die Küche gelangen Sie direkt auf die traumhafte, ca. 34m² große Dachterrasse, welche zum Entspannen an der frischen Luft einlädt. Das große Schlafzimmer, welches sich neben dem Wohnzimmer befindet, bietet ausreichend Platz für ein Doppelbett sowie einen Kleiderschrank. Das moderne Badezimmer ist mit einer Dusche ausgestattet.

Die zweite, ca. 65,3 m² große Wohnung erstreckt sich über den hinteren, sehr ruhigen Hausteil des 1. Obergeschosses. Hier treffen Sie auf einen Vorraum, einen geräumigen Wohnraum mit Küche, ein Schlafzimmer, ein Badezimmer und eine Gästetoilette. Der ca. 8 m² große Vorraum, welcher mit schönen Fliesen ausgekleidet ist, führt Sie in den ca. 37, 6 m² großen, lichtdurchfluteten Wohnraum mit Küche. Dieser verfügt über einen Zugang zur schönen Dachterrasse. Das Schlafzimmer mit Blick auf die Terrasse befindet sich nebenan und erstreckt sich über eine Fläche von ca. 11,5 m². Das Badezimmer ist mit einer geräumigen Dusche sowie einer Toilette ausgestattet. Die Wohnung verfügt zusätzlich über eine Gästetoilette.

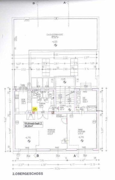
Die dritte Wohnung befindet sich im 2. Obergeschoss und erstreckt sich über eine Wohnfläche von ca. 95,4 m². Diese bietet einen direkten Zugang auf die zur Wohnung gehörenden, ca. 74,3 m² großen Dachterrasse, welche über fließend Warm- und Kaltwasser verfügt. Die Wohnung besitzt einen schönen Vorraum, ein Wohnzimmer, eine hochwertige Küche, ein Schlafzimmer, ein modernes Badezimmer, eine Gästetoilette sowie einen Abstellraum. Vom Vorraum aus gelangen Sie in das Wohnzimmer, zur Toilette sowie zum Abstellraum. Das Wohnzimmer verfügt über eine Größe von ca. 42,8 m² und ist mit hochwertigem Vollholzparkett ausgekleidet. Von dort aus erreichen Sie das ca. 24,2 m² große Schlafzimmer sowie die hochwertige Küche, welche mit allen notwendigen Geräten ausgestattet ist und über einen Zugang zur eigenen Terrasse verfügt. Das moderne Badezimmer, welches mit einer Dusche ausgestattet ist, erreichen Sie vom Schlafzimmer aus.

Die Infrastruktur und die Anbindung an den öffentlichen Verkehr sind ausgezeichnet. In der Nähe befinden sich zahlreiche Geschäfte des täglichen Bedarfs sowie Ärzte, Schulen und Krankenhäuser. Der Sternwartepark ist fußläufig in wenigen Minuten zu erreichen. Der Türkenschanzpark befindet sich ebenfalls in unmittelbarer Nähe. Die Anbindung an den öffentlichen Verkehr ist durch die Straßenbahnlinien 9, 40 und 41, die Buslinie 10A sowie die S-Bahn-Linie 45 gegeben. Für nähere Informationen zur Infrastruktur, fordern Sie bitte unser Exposé an.

Überzeugen Sie sich selbst von dieser wunderbaren Immobilie.  

Für Besichtigungsmöglichkeiten und nähere Informationen stehen wir Ihnen gerne zur Verfügung!

Mag. Viola Wasmuth
national - Tel: 0670 4039361
international - Tel: +43 670 4039361
e-mail:

 

 

Wir weisen darauf hin, dass zwischen dem Vermittler und dem zu vermittelnden Dritten ein familiäres oder wirtschaftliches Naheverhältnis besteht.

Der Immobilienmakler erklärt, dass er entgegen dem in der Immobilienwirtschaft üblichen Geschäftsgebrauch des Doppelmaklers einseitig nur für den Vermieter tätig ist.

 

 


Infrastruktur / Entfernungen

Gesundheit
Arzt <500m
Apotheke <500m
Klinik <1.000m
Krankenhaus <2.000m

Kinder & Schulen
Schule <500m
Kindergarten <500m
Universität <1.000m
Höhere Schule <500m

Nahversorgung
Supermarkt <500m
Bäckerei <500m
Einkaufszentrum <1.500m

Sonstige
Geldautomat <500m
Bank <500m
Post <500m
Polizei <1.000m

Verkehr
Bus <500m
U-Bahn <1.500m
Straßenbahn <500m
Bahnhof <500m
Autobahnanschluss <3.000m

Angaben Entfernung Luftlinie / Quelle: OpenStreetMap

Klimaanlage: JA
Kabel/SAT/TV: JA
Provision: Gemäß Erstauftraggeberprinzip bezahlt der Abgeber die Provision.


Alle Details anzeigen

KONTAKT






 

Lasse dich kostenlos vom Anbieter dieser Immobilie zurückrufen.







 


 
IM Lifestyle Properties GmbH
Viola Wasmuth
Telefonnummer anzeigen Telefon Allgemein: +4315121484
Handy Bearbeiter: +436704039361
 
Bitte dem Makler die FindMyHome.at - ID bekanntgeben: 5632959

Bewertungen dieses Anbieters
Qualitätsmakler
Qualitätsmakler:
2019, 2023,
Netiquette
Freundlichkeit

BEWERTUNGEN DIESES ANBIETERS

 
Qualit�tsmakler
Qualitätsmakler
2019, 22/23
Freundlichkeit
BESONDERS
FREUNDLICH
Netiquette
FINDMYHOME
NETIQUETTE
Auch du kannst bewerten! 7 Tage nach deiner Anfrage erhältst du dafür von uns ein Bewertungsmail.
Alle Infos zu unseren Auszeichnungen und dem FINDMYHOME.AT Qualitätsprogramm findest du hier: Übersicht anzeigen


Du willst wissen, wie viel dein Umzug kosten wird?

Mach gleich den kostenlosen Preisvergleich und schau, welche seriösen Anbieter in deiner Region günstig deinen Umzug organisieren


ZUM UMZUGS-VERGLEICH
-->

MYHOME BLOG
SuchAgentin auf FindMyHome.at
Unterschiedlichen Rechtsthemen, köstliche Rezepte, neueste Design-Highlights, sowie aktuelle Technik-Tools für Ihr Eigenheim.


FINDMYHOME.AT SUCHAGENTIN
SuchAgentin auf FindMyHome.at
Hallo, soll ich dir ähnliche Immobilien kostenfrei per E-Mail schicken?


Durch die Nutzung unserer Seite erklären Sie sich mit der Verwendung von Cookies zur Verbesserung Ihres Online-Erlebnisses einverstanden. Detaillierte Informationen zu diesem und weiteren Themen erhalten Sie in unserer Datenschutzerklärung.