MEIN ERGEBNIS ANPASSEN

3-Zimmerwohnung mit Badeteich - Objektnr. 5632947

3691
Ort
€ 531,53
Gesamtkosten
70,87 m²
Fläche
3.0
Zimmer

ECKDATEN
FindMyHome.at // Externe Immobilien-ID5632947 // 3631
ImmobilienartWohnung - Miete
Anschrift3691 Nöchling
Baujahr2007
Stock3
Geschosse4
Mietdauerunbefristet
Fläche70,87 m²
Zimmer3.0
Bad1
WC1
 Abstellraum
Brutto-Miete:€ 531,53
Monatliche Gesamtkosten:€ 531,53
Provision: Gemäß Erstauftraggeberprinzip bezahlt der Abgeber die Provision.




BESCHREIBUNG

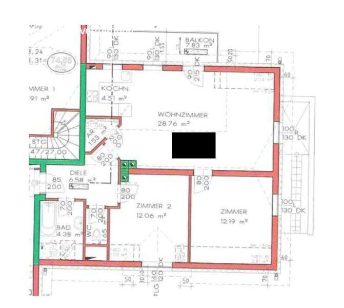
3-Zimmerwohnung mit Badeteich

Im idyllischen Wohlfühlort Nöchling befindet sich diese attraktive 3-Zimmer-Wohnung. Mit ihrer großzügigen Raumaufteilung und rund 71 m² Wohnfläche eignet sie sich ideal für Paare oder kleine Familien. Ein Balkon erweitert den Wohnraum und lädt zum Entspannen ein.

Ein besonderes Highlight dieser Wohnung ist der eigene Badeteich, der sich direkt vor der Haustür befindet und für eine einzigartige Wohnqualität sorgt.

Vom geräumigen Wohnzimmer aus gelangen Sie direkt auf den Balkon mit Blick auf den Badeteich sowie den nahegelegenen Spielplatz. Die Kochnische ist harmonisch in den Wohnbereich integriert und schafft eine angenehme Wohnatmosphäre.

Das Badezimmer ist modern verfliest und mit einer Badewanne ausgestattet. Das WC befindet sich in einem separaten Raum und ist ebenfalls modern gestaltet.

Ein Kellerabteil sowie ein Autoabstellplatz bereits in der Miete inkludiert ergänzen das Angebot und sorgen für zusätzlichen Komfort.

Kindergarten, Schule sowie verschiedene Einkaufsmöglichkeiten befinden sich direkt im Ort und sind bequem erreichbar.

Auch Naturliebhaber kommen auf ihre Kosten: Zahlreiche Wanderwege in der Umgebung laden dazu ein, die wunderschöne Landschaft zu genießen.

Diese Immobilie bietet eine hervorragende Gelegenheit, Ihren Wohntraum zu verwirklichen. Kontaktieren Sie uns gerne für weitere Informationen zu dieser schönen Wohnung.

Bezug: ab sofort (die Wohnung wird derzeit modernisiert)
Mietdauer: unbefristet, 1 Jahr Kündigungsverzicht, danach 3 Monate Kündigungsfrist

Energiekennzahlen:
Laut Energieausweis vom 18.08.2020 beträgt der Heizwärmebedarf 43,29 kWh/m²a (Klasse B) und der Gesamtenergieeffizienz-Faktor 1,176 (Klasse C).

Kosten:
Einmaliger Finanzierungsbeitrag: € 13.842,97
Monatliche Miete: € 531,53 inkl. Betriebskosten und USt.
Monatliche Kosten für Warmwasser und Heizung: € 75,54

Noch nichts gefunden Wir informieren Sie über geeignete Immobilienangebote noch vor allen anderen.
Legen Sie jetzt Ihren individuellen Suchagenten unter folgendem Link an. Wir schicken Ihnen passende Immobilien exklusiv vorab zu.
Suchagent anlegen - https://s-commerz-immobilienvermittlung.service.immo/registrieren/de

Wir weisen darauf hin, dass zwischen dem Vermittler und dem zu vermittelnden Dritten ein wirtschaftliches Naheverhältnis mit gesellschaftlicher Verflechtung besteht.


Infrastruktur / Entfernungen

Gesundheit
Arzt <6.000m
Apotheke <9.000m
Krankenhaus <9.000m

Kinder & Schulen
Schule <1.000m
Kindergarten <500m

Nahversorgung
Supermarkt <500m
Bäckerei <500m
Einkaufszentrum <10.000m

Sonstige
Bank <6.000m
Geldautomat <6.000m
Post <500m
Polizei <9.500m

Verkehr
Bus <500m
Bahnhof <3.000m

Angaben Entfernung Luftlinie / Quelle: OpenStreetMap

Objekt ist für eine Wohngemeinschaft geeignet
Provision: Gemäß Erstauftraggeberprinzip bezahlt der Abgeber die Provision.


Alle Details anzeigen

KONTAKT






 

Lasse dich kostenlos vom Anbieter dieser Immobilie zurückrufen.







 


 
S-COMMERZ Immobilienvermittlung GmbH
Karin LOCSMANDI
Telefonnummer anzeigen Telefon Allgemein: +4350100672791
Handy Bearbeiter: +436648389815
 
Bitte dem Makler die FindMyHome.at - ID bekanntgeben: 5632947

Bewertungen dieses Anbieters
Qualitätsmakler
Qualitätsmakler:
2018, 2019, 2020,
Netiquette
Freundlichkeit

BEWERTUNGEN DIESES ANBIETERS

 
Qualit�tsmakler
Qualitätsmakler
2018, 2019, 2020
Freundlichkeit
BESONDERS
FREUNDLICH
Netiquette
FINDMYHOME
NETIQUETTE
Auch du kannst bewerten! 7 Tage nach deiner Anfrage erhältst du dafür von uns ein Bewertungsmail.
Alle Infos zu unseren Auszeichnungen und dem FINDMYHOME.AT Qualitätsprogramm findest du hier: Übersicht anzeigen


Du willst wissen, wie viel dein Umzug kosten wird?

Mach gleich den kostenlosen Preisvergleich und schau, welche seriösen Anbieter in deiner Region günstig deinen Umzug organisieren


ZUM UMZUGS-VERGLEICH
-->

MYHOME BLOG
SuchAgentin auf FindMyHome.at
Unterschiedlichen Rechtsthemen, köstliche Rezepte, neueste Design-Highlights, sowie aktuelle Technik-Tools für Ihr Eigenheim.


FINDMYHOME.AT SUCHAGENTIN
SuchAgentin auf FindMyHome.at
Hallo, soll ich dir ähnliche Immobilien kostenfrei per E-Mail schicken?


ÄHNLICHE IMMOBILIEN
Aehnliche Immobilie - Vorschaubild 1

Familientraum mit Badeteich - Objektnr. 5632399


79,38 m² - 4.0 Zimmer
595.35 €
PLZ: 3691

Mehr anzeigen

Aehnliche Immobilie - Vorschaubild 2

3-Zimmerwohnung in Nöchling - Objektnr. 5632950


71,19 m² - 3.0 Zimmer
533.93 €
PLZ: 3691

Mehr anzeigen

Aehnliche Immobilie - Vorschaubild 3

Herrliche Maisonettewohnung - Objektnr. 5632948


74,32 m² - 3.0 Zimmer
557.4 €
PLZ: 3691

Mehr anzeigen

Durch die Nutzung unserer Seite erklären Sie sich mit der Verwendung von Cookies zur Verbesserung Ihres Online-Erlebnisses einverstanden. Detaillierte Informationen zu diesem und weiteren Themen erhalten Sie in unserer Datenschutzerklärung.