MEIN ERGEBNIS ANPASSEN

Nahe Mariahilfer Straße! Erstbezug! 2-Zimmer-Wohnung mit 2 Terrassen zu vermieten! - Objektnr. 5632391

virtuell besichtigen
1060
Ort
€ 1.790,00
Gesamtkosten
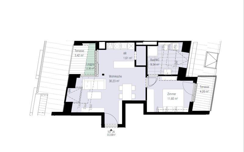
55,08 m²
Fläche
2.0
Zimmer
WEITERE MEDIEN

Virtuelle Rundgänge


ECKDATEN
FindMyHome.at // Externe Immobilien-ID5632391 // 3011
ImmobilienartWohnung - Miete
AnschriftMillergasse
1060 Wien
Baujahr2024
Mietdauer5
Fläche55,08 m²
Terrassen1 (10,00 m²)
Zimmer2.0
Bad1
WC1
 Abstellraum
Brutto-Miete:€ 1.790,00
Monatliche Gesamtkosten:€ 1.790,00
Provision: Gemäß Erstauftraggeberprinzip bezahlt der Abgeber die Provision.




BESCHREIBUNG

Nahe Mariahilfer Straße! Erstbezug! 2-Zimmer-Wohnung mit 2 Terrassen zu vermieten!

Vermietet wird diese lichtdurchflutete 2-Zimmer-Wohnung mit Loggia im 6. Wiener Gemeindebezirk Mariahilf! Die ca. 55 m² große Wohnung befindet sich im 2. Dachgeschoss eines Neubaus!

Video-Besichtigung: https://youtu.be/Np4Am94IMP8

Wohnung:
- 2. Dachgeschoss mit Lift
- Befristung: 5 Jahre/ Kündigungsverzicht: 1 Jahr
- Maßküche vom Tischler mit Bosch-Geräten: Backofen, Cerankochfeld, Dunstabzug, Geschirrspüler, Kombikühlschrank, Mikrowelle
- Eichenparkett/Feinsteinzeug
- Alu-Kunststofffenster mit 3-fach-Verglasung
- Ausrichtung: Südwesten
- Gaszentralheizung in Kombination mit thermischer Solaranlage (Fußbodenheizung)

Wohnhaus:
- Neubau (Baujahr: 2024)
- Werte laut Energieausweis: HWBREF, SK: 30,09 kWh/m²a (Energieklasse B), fGEE, SK: 0,76 (Energieklasse A). Gültig bis: 13.06.2027
- Fahrrad- und Kinderwagenabstellraum im Haus
- Gemeinschaftsgarten und Kinderspielplatz im Innenhof

Infrastruktur:
- Hofer - 4 Gehminuten entfernt
- Billa - 5 Gehminuten entfernt
- Spar - 5 Gehminuten entfernt
- Lidl - 8 Gehminuten entfernt
- Bäckerei - 5 Gehminuten entfernt
- Apotheke - 6 Gehminuten entfernt
- FITINN - 5 Gehminuten entfernt
- IKEA - 8 Gehminuten entfernt
- BahnhofCity Wien West - 8 Gehminuten entfernt

Verkehrsanbindungen: 
U-Bahn: U3, U6 Westbahnhof (4 Gehminuten)
S-Bahn: S50 - Westbahnhof (9 Gehminuten)
Straßenbahn: 5, 9, 18, 49, 52, 60 - Westbahnhof (4 Gehminuten)
Bus: VAB 1 - Westbahnhof (9 Gehminuten)

Die 55,08 m² Wohnfläche bietet wie folgt:
- Wohnküche
- Schlafzimmer
- Badezimmer mit Dusche, WC und Waschmaschinenanschluss
- Abstellraum
+ Terrasse/Loggia (Südwesten): 5,72 m²
+ Terrasse (Nordosten): 4,2 m²

Zur Wohnung gehört ein separates Kellerabteil (ca. 4,29 m²).

Die Monatsmiete beträgt brutto: EUR 1.790,- (inkl. Betriebskosten und USt.). 
Die Energiekosten (Strom, Heizung, Warm- und Kaltwasser) sind je nach Verbrauch extra zu bezahlen. 
Die Kaution beträgt 3 BMM: EUR 5.370,-

Ein KFZ-Stellplatz im Innenhof kann zur Wohnung angemietet werden. Bruttomonatsmiete: EUR 200,-

Der Eigentümer verpflichtet seine MieterInnen eine Haushaltsversicherung (ca. EUR 15,-/ Monat) abzuschließen.

Für weitere Informationen bzw. eine kurzfristige Besichtigung steht Ihnen:

Milan NADOR

unter

+43 664 46 37 996

oder

gerne zur Verfügung! Auch am Wochenende

 

Der Immobilienmakler erklärt, dass er entgegen dem in der Immobilienwirtschaft üblichen Geschäftsgebrauch des Doppelmaklers einseitig nur für den Vermieter tätig ist.


Infrastruktur / Entfernungen

Gesundheit
Arzt <250m
Apotheke <250m
Klinik <500m
Krankenhaus <500m

Kinder & Schulen
Schule <250m
Kindergarten <250m
Universität <750m
Höhere Schule <1.250m

Nahversorgung
Supermarkt <250m
Bäckerei <500m
Einkaufszentrum <750m

Sonstige
Geldautomat <500m
Bank <500m
Post <500m
Polizei <250m

Verkehr
Bus <500m
U-Bahn <500m
Straßenbahn <500m
Bahnhof <250m
Autobahnanschluss <4.500m

Angaben Entfernung Luftlinie / Quelle: OpenStreetMap

Kabel/SAT/TV: JA
Provision: Gemäß Erstauftraggeberprinzip bezahlt der Abgeber die Provision.


Alle Details anzeigen

KONTAKT






 

Lasse dich kostenlos vom Anbieter dieser Immobilie zurückrufen.







 


 
NAGY Immobilien GmbH
Milan Nador
Telefonnummer anzeigen Telefon Allgemein: +436644637996
 
Bitte dem Makler die FindMyHome.at - ID bekanntgeben: 5632391

Bewertungen dieses Anbieters
Netiquette
Freundlichkeit

BEWERTUNGEN DIESES ANBIETERS

 
Freundlichkeit
BESONDERS
FREUNDLICH
Netiquette
FINDMYHOME
NETIQUETTE
Auch du kannst bewerten! 7 Tage nach deiner Anfrage erhältst du dafür von uns ein Bewertungsmail.
Alle Infos zu unseren Auszeichnungen und dem FINDMYHOME.AT Qualitätsprogramm findest du hier: Übersicht anzeigen


Du willst wissen, wie viel dein Umzug kosten wird?

Mach gleich den kostenlosen Preisvergleich und schau, welche seriösen Anbieter in deiner Region günstig deinen Umzug organisieren


ZUM UMZUGS-VERGLEICH
-->

MYHOME BLOG
SuchAgentin auf FindMyHome.at
Unterschiedlichen Rechtsthemen, köstliche Rezepte, neueste Design-Highlights, sowie aktuelle Technik-Tools für Ihr Eigenheim.


FINDMYHOME.AT SUCHAGENTIN
SuchAgentin auf FindMyHome.at
Hallo, soll ich dir ähnliche Immobilien kostenfrei per E-Mail schicken?


ÄHNLICHE IMMOBILIEN
Aehnliche Immobilie - Vorschaubild 1

++NEU++ Außergewöhnliche 2-Zimmer-Wohnung mitten im Herzen d... - Objektnr. 5568370

62,23 m² - 2.0 Zimmer
1474.98 €
PLZ: 1060

Mehr anzeigen

Aehnliche Immobilie - Vorschaubild 2

++NEU++ Stylish 2-room-apartment in the Heart of the City (1... - Objektnr. 5589384

62,22 m² - 2.0 Zimmer
1525 €
PLZ: 1060

Mehr anzeigen

Aehnliche Immobilie - Vorschaubild 3

++MOLLARD 50++ Perfect 2-room apartment in the heart of the ... - Objektnr. 5601727

62,21 m² - 2.0 Zimmer
1474.96 €
PLZ: 1060

Mehr anzeigen

Durch die Nutzung unserer Seite erklären Sie sich mit der Verwendung von Cookies zur Verbesserung Ihres Online-Erlebnisses einverstanden. Detaillierte Informationen zu diesem und weiteren Themen erhalten Sie in unserer Datenschutzerklärung.