MEIN ERGEBNIS ANPASSEN

Hochwertige Garconniere nahe Wiedner Hauptstraße zu verkaufen! - Objektnr. 5632388

1050
Ort
33,00 m²
Fläche
1.0
Zimmer

ECKDATEN
FindMyHome.at // Externe Immobilien-ID5632388 // 3010
ImmobilienartWohnung - Eigentum
Anschrift1050 Wien
Baujahr1950
Befeuerung
Stock6
Fläche33,00 m²
Zimmer1.0
Bad1
WC1
Kaufpreis:€ 249.000,00
Ratenzahlung:Finanzierungsmöglichkeiten für diese Immobilie anzeigen
Provision:







BESCHREIBUNG

Hochwertige Garconniere nahe Wiedner Hauptstraße zu verkaufen!

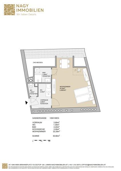
Zum Verkauf steht diese tolle 1-Zimmer-Wohnung im 5. Wiener Gemeindebezirk Margareten! Die ca. 33 m² große Wohnung befindet sich im 6. Liftstock eines gepflegten Neubauwohnhauses (Baujahr: 1950)!

Achtung! Die Wohnung ist um einen Bruttomonatsmietzins von EUR 634,52 bis 28.02.2028 befristet vermietet.

Die Wohnung ist nordwestseitig ausgerichtet und blickt auf den ruhigen Innenhof. Vom Vorraum sind das separate WC, die Küche sowie der Wohn-/Schlafraum zugänglich. Die Küche ist klein, jedoch funktional ausgestattet (Spüle, 2-Zonen-Herd, Kühlschrank). Das Badezimmer mit Dusche und Waschmaschinenanschluss ist direkt vom Wohnraum begehbar. Die Beheizung sowie die Warmwasseraufbereitung der Wohnung erfolgen mittels Gasetagenheizung.

Das Wohnhaus verfügt über eine ausgesprochen gute Infrastruktur: Geschäfte des täglichen Bedarfs (z. B. Billa, Eurospar, Bäckerei) sind bequem zu Fuß erreichbar. Die Umgebung bietet außerdem ausgezeichnete öffentliche Verkehrsanbindungen: Mehrere Straßenbahnhaltestellen befinden sich in Gehweite, und in nur zwei Straßenbahnstationen erreicht man den Wiener Hauptbahnhof sowie die U1. Für Freizeitaktivitäten und Sport stehen mehrere kleinere Parks in der Umgebung zur Verfügung. In circa fünf Jahren wird laut Wiener Linien die U2 Station Matzleinsdorfer Platz in Betrieb gehen. Dies steigert ebenso den Wert der Immobilie.

Öffentliche Anbindungen: 
U-Bahn: U1 - Südtiroler Platz - Hauptbahnhof (2 Straßenbahnstationen entfernt)
S-Bahn: S1, S2, S3, S4, S80 Matzleinsdorfer Platz (5 Gehminuten entfernt)
Straßenbahn: 1, 18, 62, Badner Bahn - Kliebergasse (2 Gehminuten entfernt), 6 - Matzleinsorfer Platz (5 Gehminuten entfernt)

Infrastruktur:
Billa - 2 Gehminuten entfernt
Eurospar - 4 Gehminuten entfernt
Hofer - 7 Gehminuten entfernt
Bäckerei - 4 Gehminuten entfernt
Apotheke - 6 Gehminuten entfernt
Hausarzt - 3 Gehminuten entfernt
Einkaufszentrum (Galerie Wieden) - 8 Gehminuten entfernt

Die 33 m² Wohnfläche bietet wie folgt:
- Vorraum
- Wohnschlafzimmer
- Küche
- Badezimmer mit Dusche und Waschmaschinenanschluss
- separates WC

Die Höhe der monatlichen Betriebskosten inklusive Rücklage beträgt insgesamt brutto € 194,92.  

Das zur Wohnung gehörige Kellerabteil wird mitverkauft.

Werte laut Energieausweis:
HWBREF,SK: 86,6 kWh/m²a (Energieklasse C)
fGEE,SK: 2,57 (Energieklasse E)
Gültig bis: 21.05.2029

Für die Vermittlung dieser Liegenschaft werden von Nagy Immobilien GmbH bei Unterfertigung eines Kaufvertrags 3% vom Verkaufspreis zzgl. 20% Ust. in Rechnung gestellt.

Ab 30% Eigenkapital bieten wir Kreditmöglichkeiten an!


Für weitere Informationen und eine Besichtigung steht Ihnen:

Martin Christopher

+43 664 383 0048

oder

gerne zur Verfügung!
 


Infrastruktur / Entfernungen

Gesundheit
Arzt <500m
Apotheke <500m
Klinik <1.000m
Krankenhaus <1.000m

Kinder & Schulen
Schule <500m
Kindergarten <500m
Universität <500m
Höhere Schule <1.000m

Nahversorgung
Supermarkt <500m
Bäckerei <500m
Einkaufszentrum <1.000m

Sonstige
Geldautomat <500m
Bank <500m
Post <500m
Polizei <1.000m

Verkehr
Bus <500m
U-Bahn <500m
Straßenbahn <500m
Bahnhof <500m
Autobahnanschluss <3.000m

Angaben Entfernung Luftlinie / Quelle: OpenStreetMap

Kabel/SAT/TV: JA
Provision:


Alle Details anzeigen

KONTAKT






 

Lasse dich kostenlos vom Anbieter dieser Immobilie zurückrufen.







 


 
NAGY Immobilien GmbH
Christopher MARTIN
Telefonnummer anzeigen Telefon Allgemein: +436643830048
 
Bitte dem Makler die FindMyHome.at - ID bekanntgeben: 5632388

Bewertungen dieses Anbieters
Netiquette
Freundlichkeit

BEWERTUNGEN DIESES ANBIETERS

 
Freundlichkeit
BESONDERS
FREUNDLICH
Netiquette
FINDMYHOME
NETIQUETTE
Auch du kannst bewerten! 7 Tage nach deiner Anfrage erhältst du dafür von uns ein Bewertungsmail.
Alle Infos zu unseren Auszeichnungen und dem FINDMYHOME.AT Qualitätsprogramm findest du hier: Übersicht anzeigen

FINANZIERUNG
?>

Du willst wissen, wie viel dein Umzug kosten wird?

Mach gleich den kostenlosen Preisvergleich und schau, welche seriösen Anbieter in deiner Region günstig deinen Umzug organisieren


ZUM UMZUGS-VERGLEICH
-->

MYHOME BLOG
SuchAgentin auf FindMyHome.at
Unterschiedlichen Rechtsthemen, köstliche Rezepte, neueste Design-Highlights, sowie aktuelle Technik-Tools für Ihr Eigenheim.


FINDMYHOME.AT SUCHAGENTIN
SuchAgentin auf FindMyHome.at
Hallo, soll ich dir ähnliche Immobilien kostenfrei per E-Mail schicken?


ÄHNLICHE IMMOBILIEN
Aehnliche Immobilie - Vorschaubild 1

NÄHE ERNST-LICHTBLAU-PARK: sanierte 1,5-Zimmerwohnung in ruh... - Objektnr. 5266329

38,37 m² - 1.5 Zimmer
203361 €
PLZ: 1050

Mehr anzeigen

Aehnliche Immobilie - Vorschaubild 2

Hochwertiger 1-Zimmer-Erstbezug in prachtvollem Stilaltbau... - Objektnr. 5589770

30,42 m² - 1.0 Zimmer
259000 €
PLZ: 1050

Mehr anzeigen

Aehnliche Immobilie - Vorschaubild 3

Charmante 1-Zimmerwohnung unweit des Wiener Naschmarkts... - Objektnr. 5631405

38,99 m² - 1.0 Zimmer
279000 €
PLZ: 1050

Mehr anzeigen

Durch die Nutzung unserer Seite erklären Sie sich mit der Verwendung von Cookies zur Verbesserung Ihres Online-Erlebnisses einverstanden. Detaillierte Informationen zu diesem und weiteren Themen erhalten Sie in unserer Datenschutzerklärung.