MEIN ERGEBNIS ANPASSEN

Ein Zuhause, das man nicht nur sieht, sondern auch erlebt & spürt - moderne Doppelhaushälfte in 8402 Werndorf! - Objektnr. 5632187

virtuell besichtigen
8402
Ort
120,00 m²
Fläche
4.0
Zimmer
WEITERE MEDIEN

Dokumente

Virtuelle Rundgänge


ECKDATEN
FindMyHome.at // Externe Immobilien-ID5632187 // 295581
ImmobilienartHaus - Eigentum
Anschrift8402 Werndorf
Baujahr2019
Geschosse2
Fläche120,00 m²
Grundfläche333,60 m²
Terrassen1 (30,00 m²)
Zimmer4.0
Bad1
WC2
 Abstellraum
Kaufpreis:€ 479.900,00
Ratenzahlung:Finanzierungsmöglichkeiten für diese Immobilie anzeigen
Provision: 3% des Kaufpreises zzgl. 20% USt.







BESCHREIBUNG

Ein Zuhause, das man nicht nur sieht, sondern auch erlebt & spürt - moderne Doppelhaushälfte in 8402 Werndorf!

Ein Zuhause, das man nicht nur sieht, sondern auch erlebt & spürt - moderne Doppelhaushälfte in 8402 Werndorf!

 

Hier geht´s zum 3D-Rundgang

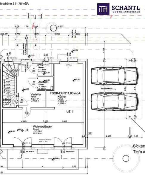
Diese moderne Doppelhaushälfte verbindet Design, Wohnqualität und Komfort auf eine Weise, die vom ersten Moment an berührt. Auf rund 120 m² Wohnfläche entfaltet sich ein durchdachtes Raumkonzept, das sowohl ästhetisch als auch funktional überzeugt. Der offene Wohn/Essbereich ist hell, einladend und harmonisch aufgeteilt. Die hochwertige Nolte/Designküche mit Siemens Geräten bildet das Herzstück des täglichen Lebens, ein Ort zum Kochen, Genießen und Zusammensein, der Stil und Praktikabilität perfekt vereint.

Vom Wohnbereich im EG (ca. 60m²), gelangt man direkt auf die komplett überdachte Terrasse, die mit integriertem Sonnenschutz einen geschützten Platz zum Entspannen bietet, ob bei Sonne, Regen oder einem gemütlichen Abend zu zweit. Insektenschutz und elektrische Rollläden im Wohnzimmer sorgen für Komfort und Privatsphäre. Der Garten ist pflegeleicht angelegt und ideal für alle, die Freiraum schätzen. Ein charmantes Holzgartenhaus erweitert die Nutzfläche und bietet Platz für Geräte, Fahrräder oder Hobbybedarf. Das gesamte Grundstück umfasst ca. 333 m² und schafft damit ein angenehmes Gleichgewicht zwischen Außenfläche und Pflegeaufwand.

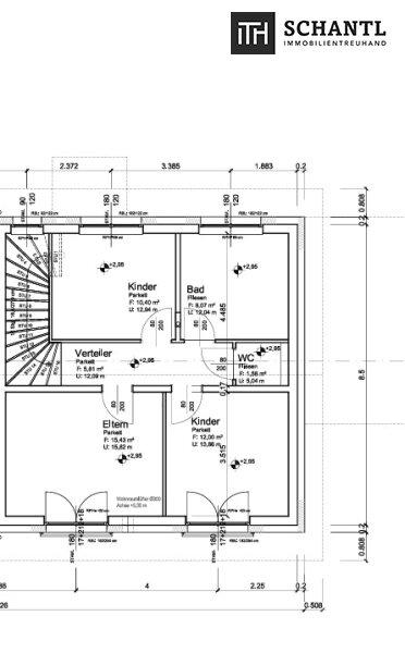
Im Obergeschoss mit (ca. 60m²),  erwarten Sie helle Zimmer mit vielseitigen Nutzungsmöglichkeiten. Fast alle Zimmer verfügen über Internetanschlüsse, nur ein Raum im Obergeschoss bildet die Ausnahme. Ein besonderes Highlight ist die beeindruckend große Dusche, die mit ihrer großzügigen Gestaltung ein luxuriöses Wellnessgefühl vermittelt.

Zwei separate WC Einheiten in beiden Stockwerken, jeweils mit Fenster und Handwaschbecken, sorgen für zusätzlichen Wohnkomfort.

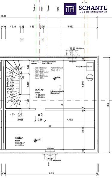
Ein weiteres herausragendes Merkmal dieser Immobilie ist der große Keller mit (ca. 56m²), der weit mehr ist als nur Stauraum. Die Fläche eröffnet vielfältige Möglichkeiten, von einer stilvollen Wellness Oase mit Sauna, Fitnessbereich oder Ruhezone bis hin zu einer richtig coolen Werkstatt für handwerkliche Projekte, Technikliebhaber oder kreative Hobbys. Der vorhandene Starkstromanschluss unterstützt zusätzliche Nutzungsmöglichkeiten und macht diesen Bereich zu einem besonderen Mehrwert des Hauses.

Technisch präsentiert sich das Haus auf einem beeindruckenden Niveau, die moderne BWT Anlage zur Wasseraufbereitung ist bereits installiert, und eine zusätzliche Leerverrohrung ermöglicht zukünftige Erweiterungen, z.B. für eine PV Anlage. Im Keller steht ein Starkstromanschluss zur Verfügung ideal für Werkstatt, E-Mobilität oder technische Geräte. 

Ein großes Carport für 2 PKWs direkt am Haus komplettiert das Gesamtbild.

Die Lage dieses Hauses bietet eine einzigartige Mischung aus Ruhe, Natur und perfekter Anbindung. Werndorf liegt im Grazer Becken, etwa 15 Kilometer südlich von Graz, direkt an der Mur. Diese Lage macht die Doppelhaushälfte nicht nur zu einem Zuhause, sondern zu einem Ort, an dem man gerne lebt, wächst, genießt und ankommt.

 

Highlights der DHH:

  • Ruhe & Natur direkt vor der Tür
  • schnelle Wege in die Stadt
  • eine freundliche, wachsende Gemeinde mit Zukunft und supernetten Nachbarn
  • hohe Lebensqualität für Familien, Paare und Menschen, die das Besondere suchen
  • eine hochwertige Nolte Designküche mit Siemens Geräten, modern, edel und ein echter Blickfang
  • komplett überdachte Terrasse mit Sonnenschutz, ideal für ganzjähriges Outdoor Living
  • ein wunderschön angelegter Kleingarten inkl. Holzgartenhaus und Hochbeeten, sehr pflegeleicht und praktisch 
  • großzügige Wohnfläche mit 120 m² auf zwei Ebenen, lichtdurchflutet, stilvoll und perfekt geschnitten
  • imposante XL Dusche im Bad  mit Fenster, ein luxuriöses Wellnessgefühl im Alltag
  • 56 m² großer, vielseitig nutzbarer Keller, ideal für einen Wellnessbereich, Fitnessstudio oder eine coole Werkstatt (Starkstrom vorhanden!)
  • elektrische Rollläden & Insektenschutz,  hoher Komfort und ein Plus an Lebensqualität
  • moderne BWT Anlage zur Wasseraufbereitung und Leerverrohrung für eine zukunftssichere, nachhaltige PV Technik
  • umfassende Internetverkabelung im gesamten Haus, optimal für Homeoffice, Streaming & Smart Home
  • zwei große Carports direkt vor dem Haus, komfortabel und wettergeschützt

 

Transparenzhinweis: Einige der verwendeten Fotos wurden mithilfe künstlicher Intelligenz optimiert, um Lichtverhältnisse und Raumwirkung bestmöglich darzustellen.

 

Worauf noch warten

Vereinbaren Sie noch heute eine Besichtigung mit uns!
Sie wollen Ihre Immobilie verkaufen Dann sind Sie bei uns goldrichtig!
Wir sind gerne für Sie da und unterstützen Sie unverbindlich bei der Bewertung Ihrer Immobilie. Mit viel Sorgfalt stellen wir Ihnen alle wichtigen Informationen und Unterlagen zusammen, damit Sie die besten Entscheidungen treffen können.
In Kooperation mit unserer SFI Vermögenstreuhand begleiten wir Sie bei der Verwirklichung Ihres Traumobjekts und unterstützen Sie beim nachhaltigen Vermögensaufbau. Mit unseren erfahrenen Experten sorgen wir dafür, dass Sie die
besten Konditionen erhalten damit Ihre Träume Wirklichkeit werden!

www.schantl-ith.at in Kooperation mit sfi-invest.com

Die Angaben über das angebotene Objekt erfolgen mit der Sorgfalt eines ordentlichen Immobilienmaklers; für die Richtigkeit solcher Angaben, die auf Informationen der über das Objekt Verfügungsberechtigten beruhen, wird keine Gewähr geleistet!

   

 

 

Wir weisen darauf hin, dass zwischen dem Vermittler und dem zu vermittelnden Dritten ein familiäres oder wirtschaftliches Naheverhältnis besteht.

Der Vermittler ist als Doppelmakler tätig.


Infrastruktur / Entfernungen

Gesundheit
Arzt <500m
Apotheke <1.000m

Kinder & Schulen
Schule <3.000m
Kindergarten <1.000m

Nahversorgung
Supermarkt <500m
Bäckerei <5.000m

Sonstige
Geldautomat <500m
Bank <500m
Post <500m
Polizei <5.000m

Verkehr
Bus <500m
Autobahnanschluss <2.000m
Bahnhof <500m
Flughafen <8.500m

Angaben Entfernung Luftlinie / Quelle: OpenStreetMap

Provision: 3% des Kaufpreises zzgl. 20% USt.


Alle Details anzeigen

KONTAKT






 

Lasse dich kostenlos vom Anbieter dieser Immobilie zurückrufen.







 


 
Schantl ITH Immobilientreuhand GmbH
Jacqueline Fellner, MBA
Telefonnummer anzeigen Handy Bearbeiter: +436505159115
 
Bitte dem Makler die FindMyHome.at - ID bekanntgeben: 5632187

Bewertungen dieses Anbieters
Qualitätsmakler
Qualitätsmakler:
2015, 2016, 2018, 2019, 2020, 2021, 2023 , 2024, 2025,
Netiquette
Freundlichkeit
80 %

BEWERTUNGEN DIESES ANBIETERS

 
Qualit�tsmakler
Qualitätsmakler
2015, 2016, 2018, 2019, 2020, 2021, 22/23, 2024, 2025
Antwortzeit
ø 48h ANTWORT
Weiterempfehlung
WIRD GERNE

Freundlichkeit
BESONDERS
FREUNDLICH
Netiquette
FINDMYHOME
NETIQUETTE
Auch du kannst bewerten! 7 Tage nach deiner Anfrage erhältst du dafür von uns ein Bewertungsmail.
Alle Infos zu unseren Auszeichnungen und dem FINDMYHOME.AT Qualitätsprogramm findest du hier: Übersicht anzeigen

FINANZIERUNG
?>

Du willst wissen, wie viel dein Umzug kosten wird?

Mach gleich den kostenlosen Preisvergleich und schau, welche seriösen Anbieter in deiner Region günstig deinen Umzug organisieren


ZUM UMZUGS-VERGLEICH
-->

MYHOME BLOG
SuchAgentin auf FindMyHome.at
Unterschiedlichen Rechtsthemen, köstliche Rezepte, neueste Design-Highlights, sowie aktuelle Technik-Tools für Ihr Eigenheim.


FINDMYHOME.AT SUCHAGENTIN
SuchAgentin auf FindMyHome.at
Hallo, soll ich dir ähnliche Immobilien kostenfrei per E-Mail schicken?


ÄHNLICHE IMMOBILIEN
Aehnliche Immobilie - Vorschaubild 1

Architektur, die inspiriert - Wohnqualität neu gedacht in Ka... - Objektnr. 5631246

110,00 m² - 6.0 Zimmer
499762 €
PLZ: 8401

Mehr anzeigen

Aehnliche Immobilie - Vorschaubild 2

VILLA AQUA - Massiv gebaut. Stilvoll gewohnt. Perfekt gelege... - Objektnr. 5631242

110,00 m² - 6.0 Zimmer
499762 €
PLZ: 8401

Mehr anzeigen

Aehnliche Immobilie - Vorschaubild 3

Atemberaubendes 4-Zimmer-Maisonette mit gemütlichem Eigengar... - Objektnr. 5631223

117,15 m² - 4.0 Zimmer
499900 €
PLZ: 8401

Mehr anzeigen

Durch die Nutzung unserer Seite erklären Sie sich mit der Verwendung von Cookies zur Verbesserung Ihres Online-Erlebnisses einverstanden. Detaillierte Informationen zu diesem und weiteren Themen erhalten Sie in unserer Datenschutzerklärung.