MEIN ERGEBNIS ANPASSEN

Moderne Neubauwohnung mit großem Süd-Balkon (4.OG!) RUHIG! - Objektnr. 5631988

  • Schlafzimmer
  • großes Bad mit Dusche und WC
  • große Küche mit Vollausstattung
  • Außenjalousien
  • Fotos-folgen-bewohnt2
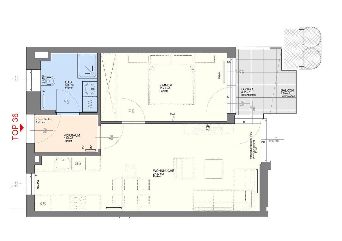
  • Grundriss 36
  • IMMY Preisträger
1030
Ort
€ 1.149,98
Gesamtkosten
50,00 m²
Fläche
2.0
Zimmer

ECKDATEN
FindMyHome.at // Externe Immobilien-ID5631988 // 3610/8309
ImmobilienartWohnung - Miete
Anschrift1030 Wien
Baujahr2016
NäheRennweg, Asperngasse
HeizungZentralheizung mit Fernwärme
Liftja
KellerJa
Beziehbar ab01.05.2026
Mietdauer5.0
Fläche50,00 m²
Balkon1 (6,00 m²)
Zimmer2.0
Bad1
WC1
Kaution:€ 3.450,00
sonstige Kosten (inkl. MwSt):€ 118,82
Mehrwertsteuer:€ 1.148,98
Monatliche Gesamtkosten:€ 1.149,98




BESCHREIBUNG

Moderne Neubauwohnung mit großem Süd-Balkon (4.OG!) RUHIG!

Zur Vermietung gelangt diese neuwertige 2-Zimmer Wohnung mit großem Süd-Balkon im 3. Bezirk in der Aspangstraße.
Tolle Infrastruktur: BILLA+-Supermarkt und Geschäfte (Post, dm,..) für den täglichen Bedarf in unmittelbarer Nähe.
Der Rennweg kann ebenfalls direkt durch das Gebäude erreicht werden.

Die Wohnung liegt im 4. Obergeschoß und ist barrierefrei mit dem Lift erreichbar. Ein KFZ-Stellplatz in der Tiefgarage kann separat angemietet werden.
Infrastruktur und öffentliche Verkehrsanbindung können als sehr gut beschrieben werden. Die Straßenbahn-Haltestelle "St. Marx" ist nur eine Station entfernt, wo es auch eine Autobus- und Schnellbahnanbindung gibt.


RAUMAUFTEILUNG IN STICHWORTEN
? Vorraum
? Wohnzimmer mit offener Küche
? Schlafzimmer
? Bad mit Dusche, Waschtisch, WC und Waschmaschinenanschluss
? Süd-West Balkon
? Kellerabteil

BESONDERHEITEN DES OBJEKTS
? absolut neuwertig
? moderne, hochwertige Ausstattung
? elektrische Außenjalousien
? fantastische Infrastruktur
? sonniger Balkon
? Garagenstellplatz direkt im Haus kann je nach Verfügbarkeit sperat angemietet werden
? Geschäfte für den täglichen Bedarf in unmittelbarer Nähe

SEHR GUTE ÖFFENTLICHE VERKEHRSANBINDUNG
? Schnellbahn St. Marx
? Straßenbahnlinie 71 (Oberzellergasse)
? Autobuslinie 74A (St. Marx)
? U3 (Schlachthausgasse)

Weitere monatliche Kosten
? Wasser, Heizung und Strom - werden direkt nach Verbrauch abgerechnet
? ggf. TV/Internet, GIS, Haushaltsversicherung, o.Ä.

ERSTZAHLUNG
? Kaution: 3 Monatsmieten
? erste Monatsmiete

VERTRAGSBEDINGUNGEN
? Befristung: 5 Jahre (Verlängerung möglich - kein Eigenbedarf)
? Kündigungsverzicht: 12 Monate (mieterseitig)
? Kündigungsfrist: 3 Monate
? Das Nettoeinkommen (Haushalt) sollte mindestens € 2875,-- betragen


___Angaben gemäß gesetzlichem Erfordernis:
Miete €937,42 zzgl 10% USt.Betriebskosten €108,02 zzgl 10% USt.Umsatzsteuer €104,54------------------------------------------------------------------Gesamtbetrag €1149,98------------------------------------------------------------------Heizwärmebedarf:28.94 kWh/(m²a)Klasse Heizwärmebedarf:B


Alle Details anzeigen

KONTAKT






 

Lasse dich kostenlos vom Anbieter dieser Immobilie zurückrufen.







 


 
Hubner Immobilien GmbH
Robert Fried
Telefonnummer anzeigen Telefon Allgemein: +4366488296010
 
Bitte dem Makler die FindMyHome.at - ID bekanntgeben: 5631988

Bewertungen dieses Anbieters
Qualitätsmakler
Qualitätsmakler:
2014, 2015, 2016, 2018, 2019, 2020, 2021 , 2025,
Netiquette
Freundlichkeit
84 %

BEWERTUNGEN DIESES ANBIETERS

 
Qualit�tsmakler
Qualitätsmakler
2014, 2015, 2016, 2018, 2019, 2020, 2021 2025
Weiterempfehlung
WIRD GERNE

Freundlichkeit
BESONDERS
FREUNDLICH
Netiquette
FINDMYHOME
NETIQUETTE
Auch du kannst bewerten! 7 Tage nach deiner Anfrage erhältst du dafür von uns ein Bewertungsmail.
Alle Infos zu unseren Auszeichnungen und dem FINDMYHOME.AT Qualitätsprogramm findest du hier: Übersicht anzeigen


Du willst wissen, wie viel dein Umzug kosten wird?

Mach gleich den kostenlosen Preisvergleich und schau, welche seriösen Anbieter in deiner Region günstig deinen Umzug organisieren


ZUM UMZUGS-VERGLEICH
-->

MYHOME BLOG
SuchAgentin auf FindMyHome.at
Unterschiedlichen Rechtsthemen, köstliche Rezepte, neueste Design-Highlights, sowie aktuelle Technik-Tools für Ihr Eigenheim.


FINDMYHOME.AT SUCHAGENTIN
SuchAgentin auf FindMyHome.at
Hallo, soll ich dir ähnliche Immobilien kostenfrei per E-Mail schicken?


ÄHNLICHE IMMOBILIEN
Aehnliche Immobilie - Vorschaubild 1

Wohnung in Top-Lage des 03. Bezirks! Anfragen und Besichtigu... - Objektnr. 5632392

59,67 m² - 3.0 Zimmer
1299 €
PLZ: 1030

Mehr anzeigen

Aehnliche Immobilie - Vorschaubild 2

Sonnige 1+ Zimmer Neubauwohnung mit großer SÜD-Loggia - AB J... - Objektnr. 5632537

47,00 m² - 1.5 Zimmer
999.99 €
PLZ: 1030

Mehr anzeigen

Aehnliche Immobilie - Vorschaubild 3

Charmante 2 Zimmerwohnung mit Balkon Nahe Rennweg... - Objektnr. 5631408

51,02 m² - 2.0 Zimmer
1075 €
PLZ: 1030

Mehr anzeigen

Durch die Nutzung unserer Seite erklären Sie sich mit der Verwendung von Cookies zur Verbesserung Ihres Online-Erlebnisses einverstanden. Detaillierte Informationen zu diesem und weiteren Themen erhalten Sie in unserer Datenschutzerklärung.