MEIN ERGEBNIS ANPASSEN

| IN STRASSGANG | SÜDBALKON | 2-ZIMMER - Objektnr. 5631899


ökologisch beheizt
8053
Ort
€ 800,84
Gesamtkosten
57,10 m²
Fläche
2.0
Zimmer

ECKDATEN
FindMyHome.at // Externe Immobilien-ID5631899 // 1152447
ImmobilienartWohnung - Miete
AnschriftUlmgasse
8053 Graz
Baujahr2017
Befeuerung
Fernwärme
Stock3
Geschosse6
Mietdauer5
Zimmer2.0
Bad1
WC1
 Abstellraum
Brutto-Miete:€ 800,84
Betriebskosten (inkl. MwSt):€ 109,93
Mehrwertsteuer:€ 72,80
Monatliche Gesamtkosten:€ 800,84
Provision:




BESCHREIBUNG

| IN STRASSGANG | SÜDBALKON | 2-ZIMMER

 

Das schöne Projekt umfasst insgesamt 4 Wohngebäude (Haus 19a, Haus 19b, Haus 19c, Haus 21) mit 1 - 4 Obergeschossen und ausgefeilten Grundrissen für 2-4 Zimmer-Wohnungen. Die Wohnungsgrößen liegen zwischen 50 m² und 90 m².

Die Mietzinse verstehen sich inklusive der Betriebskosten und der Umsatzsteuer!

Aufgrund der guten Aufteilung der Gebäude bietet Ihnen der Ulmenhof besonders viel Grünfläche.

Genießen Sie den umfassenden Lebenskomfort sowie die ruhige und familienfreundliche Wohnhausanlage.
 

Im Erdgeschoss vor jedem Wohngebäude haben Sie die Möglichkeit Ihr Fahrrad abzustellen und abzusperren.

In der hauseigenen Tiefgarage sind 80 PKW Stellplätze vorhanden. Ihr Kennzeichen wird automatisch erkannt und das Tor öffnet sich selbständig. Ein Stellplatz in der Tiefgarage kann zusätzlich angemietet werden (je nach Verfügbarkeit).

Die Besucher haben die Möglichkeit ihren PKW auf dem Besucherparkplatz abzustellen.
 

In den Gebäuden 19b, 19c und 21 ist ein Personenaufzug vorhanden, so gelangen Sie bequem direkt von der Garage und dem Erdgeschoss zu Ihrer Wohnung.
Ihre Gäste können Sie mit der integrierten Freisprechanlage empfangen.

Jeder Wohnung ist ein Kellerraum mit Steckdose zugeordnet!

 

 

Informationen zum Objekt und zur Ausstattung 

Das Objekt wird mittels Fernwärme beheizt und die Regelung in den einzelnen Wohnungen erfolgt über Thermostatventile an den Heizkörpern. Es gibt eine zentrale Heizungs- und Warmwasseranlage zur Wärmeversorgung und zur Warmwasseraufbereitung.

In den einzelnen Wohneinheiten finden Sie hochwertige Küchen samt Kühl-/Gefrierkombinationen, Kochfeldern, Backrohren, Umluft-Dunstabzugshauben sowie Geschirrspülern vor.

Im Badezimmer besteht die Möglichkeit, eine Waschmaschine anzuschließen. Die vorausgesetzten Anschlüsse sind vorhanden!

 

 

 

Lage

Das Wohnbauprojekt ULMENHOF besticht durch seine Lage in einer ruhigen Seitenstraße im schönen Graz-Straßgang.

In dieser Lage sind Sie bestens an den öffentlichen- und Individualverkehr angebunden.

Über den nur wenige Minuten entfernten Verteilerkreis Webling gelangen Sie rasch auf die Autobahn A2.

Weiters bringt Sie die Buslinie 32 (Anbindung an den S-Bahnhof Don Bosco und den Jakominiplatz) rasch in die Grazer Innenstadt sowie zur Shoppingcity Seiersberg. Die Bushaltestelle liegt ca. 400 m entfernt.

Freizeitmöglichkeiten in der Umgebung sind das beliebte Freibad Straßgang und das Bildungshaus Schloss St. Martin

Der Supermarkt Spar und mehrere Gasthäuser befinden sich in der näheren Umgebung. Das Center West und die Shoppingcity Seiersberg erreichen Sie in nur wenigen Fahrminuten.

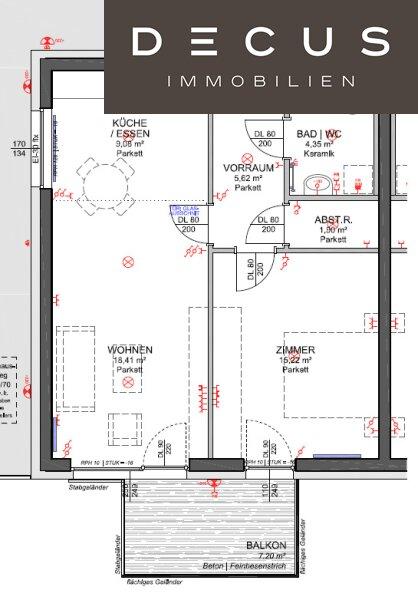
Raumaufteilung:

- Wohnzimmer mit voll ausgestatteter Küche

- Südbalkon

- 1 Schlafzimmer

- Vorzimmer

- Abstellraum

- Badezimmer mit Dusche und Fenster

- Kellerabteil mit Strom

Wir weisen darauf hin, dass zwischen dem Vermittler und dem zu vermittelnden Dritten ein familiäres oder wirtschaftliches Naheverhältnis besteht.

Der Vermittler ist als Doppelmakler tätig.

DECUS Immobilien GmbH Wir beleben Räume

Für weitere Informationen und Besichtigungen steht Ihnen gerne Frau  Michaela Samt unter der Mobilnummer +43 660 31 35 274 und per E-Mail unter samt@decus.at persönlich zur Verfügung.

www.decus.at | office@decus.at 

 

Wichtige Informationen

Bitte beachten Sie, dass per 13.06.2014 eine neue Richtlinie für Fernabsatz- und Auswärtsgeschäfte in Kraft getreten ist.

Ab 1.4.2024 entfallen die Grundbuchs- und Pfandrechtseintragungsgebühren vorübergehend für Eigenheime bis zu einer Bemessungsgrundlage von EUR 500.000,-. Voraussetzung ist das dringende Wohnbedürfnis, ausgenommen davon sind vererbte oder geschenkte Immobilien. Die Befreiung ist jedoch für den Einzelfall zu prüfen, DECUS Immobilien übernimmt hierzu keine Haftung.

Ab 01.07.2023 gilt das Erstauftraggeber-Prinzip bei Wohnungsmietverträgen, ausgenommen davon sind Dienst-/Natural-/Werkswohnungen. Wir dürfen gem. § 17 Maklergesetz darauf hinweisen, dass wir auf die Doppelmaklertätigkeit gem. § 5 Maklergesetz bei Wohnungsmietverträgen verzichten und nur noch einseitig tätig sind (bei den restlichen Vermittlungsarten nicht) und ein wirtschaftliches Naheverhältnis zu unseren Auftraggebern besteht. 

Im Falle eines Abschlusses mit Ihnen oder einem von Ihnen namhaft gemachten Dritten bzw. bei beidseitiger Willensübereinstimmung beträgt unser Honorar (lt. Honorarverordnung für Immobilienmakler) 2 Bruttomonatsmieten (BMM) bei Dienst-/Natural-/Werkwohnungen sowie Suchaufträgen, 3 BMM bei Gewerbe-, PKW-, Keller- und Lagermietverträgen sowie bei Kaufobjekten 3 % des Kaufpreises, zuzüglich der gesetzlichen Umsatzsteuer.

Dieses Objekt wird Ihnen unverbindlich und freibleibend angeboten. Oben angeführte Angaben basieren auf Informationen und Unterlagen des Eigentümers und sind unsererseits ohne Gewähr.

Nähere Informationen sowie unsere AGBs und die Nebenkostenübersichtsblatt finden Sie auf unserer Homepage www.decus.at unter "Service" - "Rechtliches zum FAGG" sowie im Anhang der zugesendeten Objekt-Exposés!


Infrastruktur / Entfernungen

Gesundheit
Arzt <250m
Apotheke <500m
Klinik <2.500m
Krankenhaus <750m

Kinder & Schulen
Schule <250m
Kindergarten <750m
Universität <3.000m
Höhere Schule <3.000m

Nahversorgung
Supermarkt <250m
Bäckerei <750m
Einkaufszentrum <1.250m

Sonstige
Geldautomat <500m
Bank <500m
Post <2.250m
Polizei <500m

Verkehr
Bus <250m
Straßenbahn <1.250m
Autobahnanschluss <1.500m
Bahnhof <1.500m
Flughafen <6.500m

Angaben Entfernung Luftlinie / Quelle: OpenStreetMap

Kabel/SAT/TV: JA
Barrierefrei: JA
Provision:


Alle Details anzeigen

KONTAKT






 

Lasse dich kostenlos vom Anbieter dieser Immobilie zurückrufen.







 


 
DECUS Immobilien GmbH
Michaela Samt
Telefonnummer anzeigen Telefon Allgemein: +436603135274
Handy Bearbeiter: +436603135274
 
Bitte dem Makler die FindMyHome.at - ID bekanntgeben: 5631899

Bewertungen dieses Anbieters
Qualitätsmakler
Qualitätsmakler:
2019, 2020, 2021, 2023, 2024, 2025, 2026 ,
Netiquette
Freundlichkeit
83 %

BEWERTUNGEN DIESES ANBIETERS

 
Qualitätsmakler
UNSERE HALL OF FAME DER BESTEN ANBIETER
Qualit�tsmakler
Qualitätsmakler
2019, 2020, 2021, 22/23, 2024, 2025, 2026
Weiterempfehlung
WIRD GERNE

Freundlichkeit
BESONDERS
FREUNDLICH
Netiquette
FINDMYHOME
NETIQUETTE
Auch du kannst bewerten! 7 Tage nach deiner Anfrage erhältst du dafür von uns ein Bewertungsmail.
Alle Infos zu unseren Auszeichnungen und dem FINDMYHOME.AT Qualitätsprogramm findest du hier: Übersicht anzeigen


Du willst wissen, wie viel dein Umzug kosten wird?

Mach gleich den kostenlosen Preisvergleich und schau, welche seriösen Anbieter in deiner Region günstig deinen Umzug organisieren


ZUM UMZUGS-VERGLEICH
-->

MYHOME BLOG
SuchAgentin auf FindMyHome.at
Unterschiedlichen Rechtsthemen, köstliche Rezepte, neueste Design-Highlights, sowie aktuelle Technik-Tools für Ihr Eigenheim.


FINDMYHOME.AT SUCHAGENTIN
SuchAgentin auf FindMyHome.at
Hallo, soll ich dir ähnliche Immobilien kostenfrei per E-Mail schicken?


ÄHNLICHE IMMOBILIEN
Aehnliche Immobilie - Vorschaubild 1

Erstbezug 01.10.2026: Geförderte 4 Zimmer Wohnung mit Eigeng... - Objektnr. 5660135

77,92 m² - 4.0 Zimmer
797.98 €
PLZ: 8055

Mehr anzeigen

Aehnliche Immobilie - Vorschaubild 2

| 3_ZIMMER-FAMILIENWOHNUNG | IN PUNTIGAM | RUHELAGE... - Objektnr. 5626627

0,00 m² - 3.0 Zimmer
934.58 €
PLZ: 8055

Mehr anzeigen

Aehnliche Immobilie - Vorschaubild 3

Erstbezug 01.10.2026: Geförderte 4 Zimmer Wohnung mit 2 Balk... - Objektnr. 5660134

77,92 m² - 4.0 Zimmer
797.98 €
PLZ: 8055

Mehr anzeigen

Durch die Nutzung unserer Seite erklären Sie sich mit der Verwendung von Cookies zur Verbesserung Ihres Online-Erlebnisses einverstanden. Detaillierte Informationen zu diesem und weiteren Themen erhalten Sie in unserer Datenschutzerklärung.