MEIN ERGEBNIS ANPASSEN

Moderne 4-Zimmer-DG-Wohnung mit hofseitigem Balkon - Objektnr. 5631491

virtuell besichtigen
  • Plan
1030
Ort
€ 2.999,02
Gesamtkosten
115,00 m²
Fläche
4.0
Zimmer
WEITERE MEDIEN

ECKDATEN
FindMyHome.at // Externe Immobilien-ID5631491 // 3982
ImmobilienartWohnung - Miete
Anschrift1030 Wien
Baujahr2020
Beziehbar ab2026-01-01
Mietdauer5
Zimmer4.0
Bad1
WC2
 Abstellraum
Kaution:€ 9.100,00
Brutto-Miete:€ 2.999,02
Betriebskosten (inkl. MwSt):€ 192,83
Mehrwertsteuer:€ 272,64
Monatliche Gesamtkosten:€ 2.999,02
Provision: Gemäß Erstauftraggeberprinzip bezahlt der Abgeber die Provision.




BESCHREIBUNG

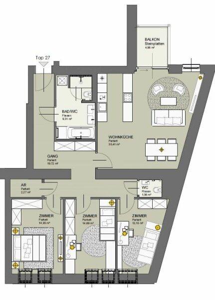
Moderne 4-Zimmer-DG-Wohnung mit hofseitigem Balkon

Vermietet wird hier eine 4-Zimmer-Dachgeschoss-Wohnung mit hofseitigem Balkon und Top-Ausstattung!

 

Diese stilvolle Dachgeschosswohnung mit ca. 115 m² Nutzfläche vereint großzügiges Wohnen, hochwertige Ausstattung und durchdachte Raumaufteilung auf hohem Niveau. Ergänzt wird das Wohnangebot durch einen ca. 5 m² großen, hofseitig ausgerichteten Balkon.

Bereits beim Betreten der Wohnung empfängt Sie ein großzügiger, länglicher Vorraum, der den eleganten Charakter der Wohnung widerspiegelt. Zur linken Seite befindet sich das hochwertig ausgestattete Badezimmer mit Dusche, Badewanne, Doppelwaschbecken sowie Waschmaschinenanschluss. Das WC ist hier dezent durch eine Wand abgetrennt und fügt sich harmonisch in das Gesamtbild des Badezimmers ein.

Geradeaus öffnet sich der repräsentative Wohnbereich mit großzügiger Wohnküche und fließendem Übergang ins Wohnzimmer. Die moderne Küche mit Kochinsel bildet das Herzstück dieses Bereichs. Von hier aus gelangen Sie außerdem direkt auf den Balkon mit hofseitiger Ausrichtung.

Vom Vorraum aus, rechterhand, erschließt sich der weitere Wohnbereich. Hier befinden sich ein praktischer Abstellraum, ein zusätzliches separates WC mit Handwaschbecken sowie drei helle Zimmer mit Fenstern, die sich flexibel als Schlafzimmer, Büro, Ankleide- oder Gästezimmer nutzen lassen.

Für höchsten Wohnkomfort sorgen eine angenehme Fußbodenheizung in allen Räumen sowie installierte Klimageräte, die auch an warmen Tagen ein optimales Raumklima gewährleisten. Sämtliche Räume der Wohnung sind zentral angeordnet und separat begehbar, was eine klare Struktur und hohen Wohnkomfort gewährleistet. Hochwertige Parkettböden in den Wohnräumen sowie edle Feinsteinzeugfliesen im Sanitärbereich sorgen für ein stilvolles Wohnambiente. Mit dem Lift gelangen Sie bequem in das erste Dachgeschoss. Für Sicherheit sorgen eine hochwertige Sicherheitstüre sowie eine Gegensprechanlage. Elektrische Außenbeschattung und elektrisch bedienbare Velux-Fenster unterstreichen den modernen Ausstattungsstandard. Der Wohnung ist ein Kellerabteil mit ca. 2,5 m² zugeordnet. 

Garagenstellplätze können bei Bedarf und Verfügbarkeit zusätzlich angemietet werden.

 

Hinweis: neue Bilder folgen bald!

 

Lage und Anbindung:

Die Lage könnte nicht besser sein: in nur wenigen Gehminuten erreichen Sie die Urania / Schwedenplatz / Bundesministerium für Finanzen / Stubenring etc.

Perfekte Anbindung dank der U-Bahn (U1 / U4), aber auch Straßenbahnen (Linie 1, O, N37, etc.)

In der Nähe befindet sich der Prater, der Donaukanal, und der Radetzkyplatz. Es ist also für Naherholung, als auch für eine sehr gute Versorgung und Anbindung gesorgt.

Die Schnellbahnstation Landstraße Wien Mitte mit zahlreichen Zugverbindungen, Flughafen (CAT) ist in nur 5 min mit der Straßenbahn erreichbar. Zum Prater ist es auch nur ein Katzensprung. Donaukanal, Hundertwasserhaus, Urania befinden sich in Gehweite.

 

Konditionen:

Vermietet wird ab sofort auf 5 Jahre; 

Miete: € 2.999,02 (inkl. Steuern, BK, Wasser & Liftkosten)

Kaution: € 9.100,-  // Vertragserrichtungskosten: € 360,-

Gas und Strom werden separat abgerechnet und auf den/die Mieter*in umgemeldet. 

Kündigungsverzicht: 12 Monate, Kündigungsfrist: 3 Monate;

 

 

Kontakt:

Bitte beachten Sie, dass wir aufgrund der Nachweispflicht gegenüber dem Eigentümer nur Anfragen mit vollständiger Angabe der Anschrift bearbeiten können.

Anfragen bitte daher mit vollständiger Angabe der personenbezogenen Daten: (Name, Nachname, Anschrift, E-Mail und Telefonnummer) an: stifter@pr-immobilien.at

Ihre möglichen Terminvorschläge wären sehr hilfreich! 

 

Weitere Informationen und alle Objekte finden Sie unter: www.pr-immobilien.at

Noch nichts gefunden Wir informieren Sie über geeignete Immobilienangebote noch vor allen anderen.
Legen Sie jetzt Ihren individuellen Suchagenten unter folgendem Link an. Wir schicken Ihnen passende Immobilien exklusiv vorab zu.
Suchagent anlegen - https://pr-immobilien-real-estate.service.immo/registrieren/de

Der Immobilienmakler erklärt, dass er entgegen dem in der Immobilienwirtschaft üblichen Geschäftsgebrauch des Doppelmaklers einseitig nur für den Vermieter tätig ist.


Infrastruktur / Entfernungen

Gesundheit
Arzt <500m
Apotheke <500m
Klinik <1.000m
Krankenhaus <1.000m

Kinder & Schulen
Schule <500m
Kindergarten <500m
Universität <500m
Höhere Schule <1.500m

Nahversorgung
Supermarkt <500m
Bäckerei <500m
Einkaufszentrum <1.000m

Sonstige
Geldautomat <500m
Bank <500m
Post <500m
Polizei <500m

Verkehr
Bus <500m
U-Bahn <500m
Straßenbahn <500m
Bahnhof <500m
Autobahnanschluss <3.000m

Angaben Entfernung Luftlinie / Quelle: OpenStreetMap

Objekt ist für eine Wohngemeinschaft geeignet
Klimaanlage: JA
Kabel/SAT/TV: JA
Rollstuhlgerecht: JA
Barrierefrei: JA
Provision: Gemäß Erstauftraggeberprinzip bezahlt der Abgeber die Provision.


Alle Details anzeigen

KONTAKT






 

Lasse dich kostenlos vom Anbieter dieser Immobilie zurückrufen.







 


 
PR-IMMOBILIEN / REAL ESTATE
Marissa Stifter
Telefonnummer anzeigen Telefon Allgemein: +436765900280
Handy Bearbeiter: +436765900280
 
Bitte dem Makler die FindMyHome.at - ID bekanntgeben: 5631491

Bewertungen dieses Anbieters
Netiquette
Freundlichkeit
80 %

BEWERTUNGEN DIESES ANBIETERS

 
Antwortzeit
ø 48h ANTWORT
Weiterempfehlung
WIRD GERNE

Freundlichkeit
BESONDERS
FREUNDLICH
Netiquette
FINDMYHOME
NETIQUETTE
Auch du kannst bewerten! 7 Tage nach deiner Anfrage erhältst du dafür von uns ein Bewertungsmail.
Alle Infos zu unseren Auszeichnungen und dem FINDMYHOME.AT Qualitätsprogramm findest du hier: Übersicht anzeigen


Du willst wissen, wie viel dein Umzug kosten wird?

Mach gleich den kostenlosen Preisvergleich und schau, welche seriösen Anbieter in deiner Region günstig deinen Umzug organisieren


ZUM UMZUGS-VERGLEICH
-->

MYHOME BLOG
SuchAgentin auf FindMyHome.at
Unterschiedlichen Rechtsthemen, köstliche Rezepte, neueste Design-Highlights, sowie aktuelle Technik-Tools für Ihr Eigenheim.


FINDMYHOME.AT SUCHAGENTIN
SuchAgentin auf FindMyHome.at
Hallo, soll ich dir ähnliche Immobilien kostenfrei per E-Mail schicken?


ÄHNLICHE IMMOBILIEN
Aehnliche Immobilie - Vorschaubild 1

TOP-DACHTERRASSEN-WOHNUNG NÄHE SCHWEDENPLATZ/URANIA -- RUHEL... - Objektnr. 5630712

101,12 m² - 3.0 Zimmer
2921.93 €
PLZ: 1030

Mehr anzeigen

Aehnliche Immobilie - Vorschaubild 2

DACHTERRASSENMIETE - Objektnr. 5625908


105,00 m² - 3.0 Zimmer
2896.97 €
PLZ: 1030

Mehr anzeigen

Aehnliche Immobilie - Vorschaubild 3

DACHGESCHOSSMIETE MIT BALKON - Objektnr. 5597245


110,00 m² - 4.0 Zimmer
2999.02 €
PLZ: 1030

Mehr anzeigen

Durch die Nutzung unserer Seite erklären Sie sich mit der Verwendung von Cookies zur Verbesserung Ihres Online-Erlebnisses einverstanden. Detaillierte Informationen zu diesem und weiteren Themen erhalten Sie in unserer Datenschutzerklärung.