MEIN ERGEBNIS ANPASSEN

NEU ERSTBEZUG NÄHE U6 HAUS MIT GARTEN TERRASSE PKW-STELLPLATZ KÜCHE EIGENTUMSGRUND 1230 WIEN - Objektnr. 5631175

1230
Ort
125,00 m²
Fläche
5.0
Zimmer

ECKDATEN
FindMyHome.at // Externe Immobilien-ID5631175 // 28447
ImmobilienartHaus - Eigentum
Anschrift/1
1230 Wien
Baujahr2024
Geschosse3
Fläche125,00 m²
Terrassen2 (24,00 m²)
Zimmer5.0
Bad2
WC3
Kaufpreis:€ 699.000,00
Ratenzahlung:Finanzierungsmöglichkeiten für diese Immobilie anzeigen
Provision: 3% des Kaufpreises zzgl. 20% USt.







BESCHREIBUNG

NEU ERSTBEZUG NÄHE U6 HAUS MIT GARTEN TERRASSE PKW-STELLPLATZ KÜCHE EIGENTUMSGRUND 1230 WIEN

  • HAUS:

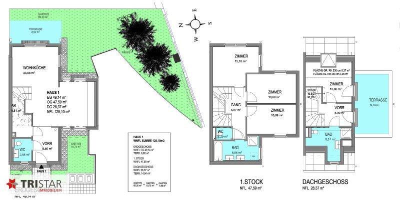
Zum Verkauf gelangt ein wunderschönes Haus mit Garten und PKW-Stellplatz in Südlage in 1230 Wien, das bereits fertiggestellt wurde und somit ab sofort bezugsfertig ist.

Das Haus ist ost-, süd- und westseitig ausgerichtet und verfügt über ca. 125 m² Wohnfläche, einen Garten mit ca. 73 m² sowie zwei Terrassen mit insgesamt ca. 24 m².

Das Haus bietet 5 Zimmer und gliedert sich wie folgt:

  • Erdgeschoss:

Wohnküche (eine neue Küche wurde soeben eingebaut und ist im Kaufpreis inkludiert), Technikraum, Toilette, Terrasse sowie eine eigene Gartenfläche.

  • 1. Obergeschoss:

3 Schlafzimmer, Badezimmer mit Badewanne, Fenster und Waschmaschinenanschluss sowie eine getrennte Toilette.

  • Dachgeschoss:

Zimmer, Badezimmer mit Dusche, Fenster und Toilette sowie eine Terrasse mit schönem Weitblick.

  • ÖFFENTLICH UNTERWEGS:

Die Lage ist so gut positioniert, dass man in ca. 510 Minuten zu Fuß jede Menge öffentliche Verkehrsanbindungen erreichen kann: U6, Badner Bahn sowie diverse Bus- und Straßenbahnstationen ermöglichen es endlich, ein Haus zu besitzen, ohne unbedingt zwei Autos haben zu müssen!

Somit kann man in der Früh oder am Nachmittag, während andere im Stau stecken, entspannt und schnell die Schule oder den Kindergarten erreichen, umweltfreundlich zum Arbeitsplatz fahren oder am Abend auch ohne Taxi nach Hause kommen.

  • AUSSTATTUNG:

Das Haus wird über eine eigene Luftwärmepumpe beheizt, die durch eine Photovoltaikanlage am Dach unterstützt wird. Die Beheizung erfolgt mittels Fußbodenheizung, über die im Sommer auch eine Kühlung möglich ist.

Alle Zimmer, der Vorraum sowie die Treppen sind mit hochwertigem Echtholzparkettboden (Eiche, Landhausdiele)ausgestattet. Der Vorraum, der Technikraum sowie die Badezimmer und Toiletten wurden mit modernen, hochwertigen Fliesen ausgestattet.

Die Fenster und Terrassentüren sind dreifach verglast und verfügen über eine Außenbeschattung.

Eine maßgefertigte Tischlerküche wurde bereits eingebaut und ist mit sämtlichen Geräten ausgestattet.

Ein PKW-Stellplatz ist ebenfalls im Kaufpreis inkludiert.

  • KEIN BAURECHT / KEINE PACHT:

Das Haus wurde auf Eigengrund errichtet. Es fallen daher keine Baurechts- oder Pachtgebühren an.

  • Top Lage:

DETAILLIERTES LAGEEXPOSÉ (68 Seiten!) vorhanden und erfolgt umgehend nach Anfrage.

  • Moderne und maßgeschneiderte Finanzierung:

Hausbank war gestern!

Heutzutage haben wir für Sie online und sofortigen Zugang zu den besten und neuesten Finanzprodukten von über 120 Kreditinstituten in Österreich und Deutschland.

Genau wie beim Immobilienvergleich, ermöglichen wir Ihnen, alle relevante Bankangebote zu vergleichen, um das beste für Sie zu finden!

Auch Angebote ohne Eigenmittel, mit festen Zinssätzen und einer beeindruckenden Laufzeit von bis zu 45 Jahren sind verfügbar!

So sparen Sie Zeit, Geld und Nerven!

 

NEU ERSTBEZUG NÄHE U6 HAUS MIT GARTEN TERRASSE PKW-STELLPLATZ KÜCHE EIGENTUMSGRUND 1230 WIEN

Wir weisen darauf hin, dass zwischen dem Vermittler und dem zu vermittelnden Dritten ein familiäres oder wirtschaftliches Naheverhältnis besteht.

Der Vermittler ist als Doppelmakler tätig.

Objekt ist für eine Wohngemeinschaft geeignet
Provision: 3% des Kaufpreises zzgl. 20% USt.


Alle Details anzeigen

KONTAKT






 

Lasse dich kostenlos vom Anbieter dieser Immobilie zurückrufen.







 


 
TRISTAR Immobilien
TRISTAR Immobilien
Telefonnummer anzeigen Handy Bearbeiter: +436769017374
 
Bitte dem Makler die FindMyHome.at - ID bekanntgeben: 5631175

Bewertungen dieses Anbieters
Qualitätsmakler
Qualitätsmakler:
2017, 2019, 2020, 2021,
Netiquette
Freundlichkeit

BEWERTUNGEN DIESES ANBIETERS

 
Qualit�tsmakler
Qualitätsmakler
2017, 2019, 2020, 2021
Freundlichkeit
BESONDERS
FREUNDLICH
Netiquette
FINDMYHOME
NETIQUETTE
Auch du kannst bewerten! 7 Tage nach deiner Anfrage erhältst du dafür von uns ein Bewertungsmail.
Alle Infos zu unseren Auszeichnungen und dem FINDMYHOME.AT Qualitätsprogramm findest du hier: Übersicht anzeigen

FINANZIERUNG
?>

Du willst wissen, wie viel dein Umzug kosten wird?

Mach gleich den kostenlosen Preisvergleich und schau, welche seriösen Anbieter in deiner Region günstig deinen Umzug organisieren


ZUM UMZUGS-VERGLEICH
-->

MYHOME BLOG
SuchAgentin auf FindMyHome.at
Unterschiedlichen Rechtsthemen, köstliche Rezepte, neueste Design-Highlights, sowie aktuelle Technik-Tools für Ihr Eigenheim.


FINDMYHOME.AT SUCHAGENTIN
SuchAgentin auf FindMyHome.at
Hallo, soll ich dir ähnliche Immobilien kostenfrei per E-Mail schicken?


ÄHNLICHE IMMOBILIEN
Aehnliche Immobilie - Vorschaubild 1

NEU NÄHE U6 1230 WIEN 5 ZIMMER GARTEN 2 TERRASSEN KÜCH... - Objektnr. 5619220

125,10 m² - 5.0 Zimmer
699000 €
PLZ: 1230

Mehr anzeigen

Aehnliche Immobilie - Vorschaubild 2

Doppelhaus-Neubau mit Garten, Terrasse & Dachterrasse ? Schl... - Objektnr. 5598488

126,71 m² - 5 Zimmer
679000 €
PLZ: 1230

Mehr anzeigen

Aehnliche Immobilie - Vorschaubild 3

Exklusives Doppelhausflair als Investment: Ihr Traumhaus im ... - Objektnr. 5627416

105,51 m² - 4.0 Zimmer
719100 €
PLZ: 1230

Mehr anzeigen

Durch die Nutzung unserer Seite erklären Sie sich mit der Verwendung von Cookies zur Verbesserung Ihres Online-Erlebnisses einverstanden. Detaillierte Informationen zu diesem und weiteren Themen erhalten Sie in unserer Datenschutzerklärung.