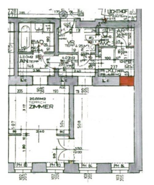
DISSLERGASSE, 66 m2 Altbau, 2 Zimmer, Küche, Wannenbad, Parketten, WG-geeignet, Wien-Mitte-Nähe - Objektnr. 5630615
ECKDATEN
BESCHREIBUNG
KONTAKT
Lasse dich kostenlos vom Anbieter dieser Immobilie zurückrufen.
ROS REALITÄTEN OG
Alexander Ros
Alexander Ros
Telefonnummer anzeigen
Handy Bearbeiter: +436644665202
Bitte dem Makler die FindMyHome.at - ID bekanntgeben: 5630615
Bitte dem Makler die FindMyHome.at - ID bekanntgeben: 5630615
Bewertungen dieses Anbieters
Qualitätsmakler:
2014, 2016, 2017, 2018, 2021, 2025,
2014, 2016, 2017, 2018, 2021, 2025,
BEWERTUNGEN DIESES ANBIETERS
Qualitätsmakler
2014, 2016, 2017, 2018, 2021, 2025
2014, 2016, 2017, 2018, 2021, 2025
BESONDERS
FREUNDLICH
FREUNDLICH
FINDMYHOME.AT
NETIQUETTE
NETIQUETTE
Auch du kannst bewerten! 7 Tage nach deiner Anfrage erhältst du dafür von uns ein Bewertungsmail.
Alle Infos zu unseren Auszeichnungen und dem FINDMYHOME.AT Qualitätsprogramm findest du hier: Übersicht anzeigen
Alle Infos zu unseren Auszeichnungen und dem FINDMYHOME.AT Qualitätsprogramm findest du hier: Übersicht anzeigen
Du willst wissen, wie viel dein Umzug kosten wird?
Mach gleich den kostenlosen Preisvergleich und schau, welche seriösen Anbieter in deiner Region günstig deinen Umzug organisieren
ZUM UMZUGS-VERGLEICH




























