MEIN ERGEBNIS ANPASSEN

Großzügige 2,5 Zimmer-Altbauwohnung in ruhiger Lage des 9. Bezirks! Nähe Liechtensteinpark - Objektnr. 5630595

  • Sanierungsbedürftige Garconniere in ruhiger Lage des 9. Bezi
  • Sanierungsbedürftige Garconniere in ruhiger Lage des 9. Bezi
  • Sanierungsbedürftige Garconniere in ruhiger Lage des 9. Bezi
  • Sanierungsbedürftige Garconniere in ruhiger Lage des 9. Bezi
  • Sanierungsbedürftige Garconniere in ruhiger Lage des 9. Bezi
  • Sanierungsbedürftige Garconniere in ruhiger Lage des 9. Bezi
  • Sanierungsbedürftige Garconniere in ruhiger Lage des 9. Bezi
  • Sanierungsbedürftige Garconniere in ruhiger Lage des 9. Bezi
  • Sanierungsbedürftige Garconniere in ruhiger Lage des 9. Bezi
1090
Ort
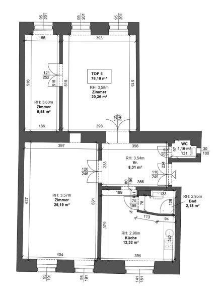
79,10 m²
Fläche
2.5
Zimmer

ECKDATEN
FindMyHome.at // Externe Immobilien-ID5630595 // 5238
ImmobilienartEigentum
Anschrift1090 Wien
Baujahr1898
Stock1
Fläche79,10 m²
Zimmer2.5
Bad1
WC1
Kaufpreis:€ 480.000,00
Ratenzahlung:Finanzierungsmöglichkeiten für diese Immobilie anzeigen
Provision: 3% des Kaufpreises zzgl. 20% USt.







BESCHREIBUNG

Großzügige 2,5 Zimmer-Altbauwohnung in ruhiger Lage des 9. Bezirks! Nähe Liechtensteinpark

Im Falle der Notwendigkeit einer Fremdfinanzierung Ihrer Wunschimmobilie ermittelt unser Wohnbau-Finanzierungsexperte gerne die optimale Finanzierungslösung und findet das passende Zins- und Konditionsangebot für Sie. Er vergleicht die aktuellen Angebote aller relevanten Banken und Bausparkassen. Der Angebotsvergleich kann aus einem Portfolio von über 120 Banken erfolgen. Das Erstgespräch ist für Sie kostenfrei und unverbindlich, gerne auch bei Ihnen vor Ort. So sparen Sie Ihre wertvolle Zeit und erhalten eine professionelle und unabhängige Finanzierungslösung vom Spezialisten. Sprechen Sie uns wegen eines Termins gerne an!

 

Zum Verkauf gelangt eine großzügig geschnitte 2,5-Zimmer-Wohnung in guter Lage im 9. Wiener Gemeindebezirk. 

Die Wohnung befindet sich im 1. Stock, in einem repräsentativen Altbau und erstreckt sich über eine Fläche von ca. 79 m². Diese Wohnung überzeugt mit typischem Albaucharakter, mit grosszügiger Raumhöhe von ca. 3,60 m, Parkettböden und Flügeltüren. Die typsichen Proportionen eines Altbaus schaffen eine wohnliche und angenehme Atmosphäre. Die Wohnung verfügt über 2 Zimmer, ein Kabinett, eine separate Küche, ein Badezimmer, ein getrenntes WC sowie einen zentralen Vorraum.

Vom zentralen Eingangsbereich mit Vorraum befindet sich auf der linken Seite die Küche sowie ein Badezimmer mit Dusche, vom Vorraum rechts, das separate WC. Geradeaus durch den Vorraum befindet sich das Wohn/-esszimmer, rechts vom Vorzimmer ein weiteres Zimmer, gefolgt vom nachfolgenden Kabinett, welches als Schlafzimmer oder Kinderzimmer genutzt werden kann. Der großzügige Wohnraum bietet ausreichend Platz für eine gemütlche Sofalandschaft sowie Essbereich. 

Die Lage der Immobilie ist sowohl von der Wohnatmosphäre als auch von der Infrastruktur ausgezeichnet, eine Immobilie mit Entwicklungspotential in Toplage des 9. Bezirks, einer der gefragtesten innerstädtischen Bezirke. Das stilvolle Gründerzeithaus mit Altbaucharakter befindet sich in einer ruhigen Wohngegend. In unmittelbarer Umgebung befinden sich viele repräsentative Altbauten, gepflegte Wohnhäuser sowie eine perfekte Infrastruktur mit Nahversorgung und vielen Restaurants, Cafés, Bars, sowie Geschäfte des täglichen Bedarfs sind in unmittelbarer Nähe und fußläufig erreichbar. Auch für Bildung (Universitäten, Schulen und Kindergärten) und Kultur ist gesorgt. Die Volksoper und das WIFI sind in knapp 5 Minuten zu Fuß erreichbar. Ebenso sind U-Bahnen (U6), Autobusse und Straßenbahnen (Linien 37,38,40,41,42) nur wenige Gehminuten entfernt. Zur Erholung bietet sich der nahe gelegene Liechtensteinpark, aber auch der weitläufige Währinger Park an. Für nähere Informationen zur Infrastruktur, fordern Sie bitte unser Exposé an.

Bei den beigefügten Bildern handelt es sich um Symbolfotos einer anderen Wohnung im gleichen Haus.

Überzeugen Sie sich selbst von dieser großartigen Immobilie.

Gerne lassen wir Ihnen bei ernsthaftem Interesse - vor Kaufanbotlegung - weitere vertraulichen Dokumente zu dieser Liegenschaft zukommen, welche nicht veröffentlicht werden dürfen.

Für Besichtigungen und nähere Informationen stehen wir Ihnen gerne zur Verfügung!

Mag. Viola Wasmuth
national - Tel: 0670 4039361
international - Tel: +43 670 4039361
e-mail:

 

Wir weisen darauf hin, dass zwischen dem Vermittler und dem zu vermittelnden Dritten ein familiäres oder wirtschaftliches Naheverhältnis besteht.

Der Vermittler ist als Doppelmakler tätig.

 

 


Infrastruktur / Entfernungen

Gesundheit
Arzt <500m
Apotheke <500m
Klinik <500m
Krankenhaus <500m

Kinder & Schulen
Schule <500m
Kindergarten <500m
Universität <500m
Höhere Schule <500m

Nahversorgung
Supermarkt <500m
Bäckerei <500m
Einkaufszentrum <2.000m

Sonstige
Geldautomat <500m
Bank <500m
Post <500m
Polizei <500m

Verkehr
Bus <500m
U-Bahn <500m
Straßenbahn <500m
Bahnhof <500m
Autobahnanschluss <2.000m

Angaben Entfernung Luftlinie / Quelle: OpenStreetMap

Provision: 3% des Kaufpreises zzgl. 20% USt.


Alle Details anzeigen

KONTAKT






 

Lasse dich kostenlos vom Anbieter dieser Immobilie zurückrufen.







 


 
IM Lifestyle Properties GmbH
Viola Wasmuth
Telefonnummer anzeigen Telefon Allgemein: +4315121484
Handy Bearbeiter: +436704039361
 
Bitte dem Makler die FindMyHome.at - ID bekanntgeben: 5630595

Bewertungen dieses Anbieters
Qualitätsmakler
Qualitätsmakler:
2019, 2023,
Netiquette
Freundlichkeit

BEWERTUNGEN DIESES ANBIETERS

 
Qualit�tsmakler
Qualitätsmakler
2019, 22/23
Freundlichkeit
BESONDERS
FREUNDLICH
Netiquette
FINDMYHOME
NETIQUETTE
Auch du kannst bewerten! 7 Tage nach deiner Anfrage erhältst du dafür von uns ein Bewertungsmail.
Alle Infos zu unseren Auszeichnungen und dem FINDMYHOME.AT Qualitätsprogramm findest du hier: Übersicht anzeigen

FINANZIERUNG
?>

Du willst wissen, wie viel dein Umzug kosten wird?

Mach gleich den kostenlosen Preisvergleich und schau, welche seriösen Anbieter in deiner Region günstig deinen Umzug organisieren


ZUM UMZUGS-VERGLEICH
-->

MYHOME BLOG
SuchAgentin auf FindMyHome.at
Unterschiedlichen Rechtsthemen, köstliche Rezepte, neueste Design-Highlights, sowie aktuelle Technik-Tools für Ihr Eigenheim.


FINDMYHOME.AT SUCHAGENTIN
SuchAgentin auf FindMyHome.at
Hallo, soll ich dir ähnliche Immobilien kostenfrei per E-Mail schicken?


Durch die Nutzung unserer Seite erklären Sie sich mit der Verwendung von Cookies zur Verbesserung Ihres Online-Erlebnisses einverstanden. Detaillierte Informationen zu diesem und weiteren Themen erhalten Sie in unserer Datenschutzerklärung.