MEIN ERGEBNIS ANPASSEN

Sanierungsbedürftige Garconniere in ruhiger Lage des 9. Bezirks! Nähe Liechtensteinpark - Objektnr. 5630592

1090
Ort
38,72 m²
Fläche
1.0
Zimmer

ECKDATEN
FindMyHome.at // Externe Immobilien-ID5630592 // 5234
ImmobilienartEigentum
Anschrift1090 Wien
Baujahr1898
Befeuerung
Stock3
Fläche38,72 m²
Zimmer1.0
Bad1
WC1
Kaufpreis:€ 235.000,00
Ratenzahlung:Finanzierungsmöglichkeiten für diese Immobilie anzeigen
Provision: 3% des Kaufpreises zzgl. 20% USt.







BESCHREIBUNG

Sanierungsbedürftige Garconniere in ruhiger Lage des 9. Bezirks! Nähe Liechtensteinpark

Im Falle der Notwendigkeit einer Fremdfinanzierung Ihrer Wunschimmobilie ermittelt unser Wohnbau-Finanzierungsexperte gerne die optimale Finanzierungslösung und findet das passende Zins- und Konditionsangebot für Sie. Er vergleicht die aktuellen Angebote aller relevanten Banken und Bausparkassen. Der Angebotsvergleich kann aus einem Portfolio von über 120 Banken erfolgen. Das Erstgespräch ist für Sie kostenfrei und unverbindlich, gerne auch bei Ihnen vor Ort. So sparen Sie Ihre wertvolle Zeit und erhalten eine professionelle und unabhängige Finanzierungslösung vom Spezialisten. Sprechen Sie uns wegen eines Termins gerne an!

 

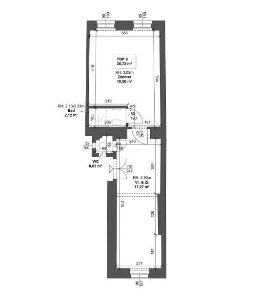
Zum Verkauf gelangt eine sanierungsbedürftige 1-Zimmer-Wohnung in guter Lage im 9. Wiener Gemeindebezirk in einem repräsentativen Altbau. 

Die Wohnung befindet sich im 3. Stock und erstreckt sich über eine Fläche von ca. 39 m². Die Wohnung vereint typischen Albaucharakter mit ca. 3 m hohen Decken. Die Wohnung teilt sich auf in einen großen Wohn-Schlafraum, separatem Vorraum mit Küche sowie separatem Bad inkl. Dusche und separatem WC. Die Wohnung befindet sich in einem sanierungsbedürftigen Zustand, und bietet Raum für individuelle Modernisierungsmöglichkeiten. Insbesondere Installationen,  Bad, WC, Böden sind erneuerungsbedürftig. 

Sie betreten die Immobilie, rechter Hand befindet sich die Küche inkl. Vorraum, die Kücheninstallationen müssen erneuert werden. Links neben der Eingangstür befindet sich ein separates WC, über das Vorzimmer gelangen Sie in ein großes Wohn/Esszimmer, über welches Sie zum Bad inkl. Dusche gelangen. 

Die Lage der Immobilie ist sowohl von der Wohnatmosphäre als auch von der Infrastruktur ausgezeichnet, eine Immobilie mit Entwicklungspotential in Toplage des 9. Bezirks. Das stilvolle Gründerzeithaus mit Altbaucharakter befindet sich in einer ruhigen Wohngegend. In unmittelbarer Umgebung befinden sich viele repräsentative Altbauten, gepflegte Wohnhäuser sowie eine perfekte Infrastruktur mit Nahversorgung und vielen Restaurants, Cafés, Bars, sowie Geschäfte des täglichen Bedarfs sind in unmittelbarer Nähe und fußläufig erreichbar. Auch ist für Bildung (Universitäten, Schulen und Kindergärten) auch Kultur gesorgt. Die Volksoper und das WIFI sind in knapp 5 Minuten zu Fuß erreichbar. Ebenso sind U-Bahnen (U6), Autobusse und Straßenbahnen (Linien 37,38,40,41,42) nur wenige Gehminuten entfernt. Zur Erholung bietet sich der nahe gelegene Liechtensteinpark, aber auch der weitläufige Währinger Park an. Für nähere Informationen zur Infrastruktur, fordern Sie bitte unser Exposé an.

Überzeugen Sie sich selbst von dieser großartigen Immobilie.

Bei den beigefügten Bildern handelt es sich um Symbolfotos einer anderen Wohnung im gleichen Haus.

Gerne lassen wir Ihnen bei ernsthaftem Interesse - vor Kaufanbotlegung - weitere vertraulichen Dokumente zu dieser Liegenschaft zukommen, welche nicht veröffentlicht werden dürfen.

Für Besichtigungen und nähere Informationen stehen wir Ihnen gerne zur Verfügung!

Mag. Viola Wasmuth
national - Tel: 0670 4039361
international - Tel: +43 670 4039361
e-mail:

 

Wir weisen darauf hin, dass zwischen dem Vermittler und dem zu vermittelnden Dritten ein familiäres oder wirtschaftliches Naheverhältnis besteht.

Der Vermittler ist als Doppelmakler tätig.

 

 


Infrastruktur / Entfernungen

Gesundheit
Arzt <500m
Apotheke <500m
Klinik <500m
Krankenhaus <500m

Kinder & Schulen
Schule <500m
Kindergarten <500m
Universität <500m
Höhere Schule <500m

Nahversorgung
Supermarkt <500m
Bäckerei <500m
Einkaufszentrum <2.000m

Sonstige
Geldautomat <500m
Bank <500m
Post <500m
Polizei <500m

Verkehr
Bus <500m
U-Bahn <500m
Straßenbahn <500m
Bahnhof <500m
Autobahnanschluss <2.000m

Angaben Entfernung Luftlinie / Quelle: OpenStreetMap

Provision: 3% des Kaufpreises zzgl. 20% USt.


Alle Details anzeigen

KONTAKT






 

Lasse dich kostenlos vom Anbieter dieser Immobilie zurückrufen.







 


 
IM Lifestyle Properties GmbH
Viola Wasmuth
Telefonnummer anzeigen Telefon Allgemein: +4315121484
Handy Bearbeiter: +436704039361
 
Bitte dem Makler die FindMyHome.at - ID bekanntgeben: 5630592

Bewertungen dieses Anbieters
Qualitätsmakler
Qualitätsmakler:
2019, 2023,
Netiquette
Freundlichkeit

BEWERTUNGEN DIESES ANBIETERS

 
Qualit�tsmakler
Qualitätsmakler
2019, 22/23
Freundlichkeit
BESONDERS
FREUNDLICH
Netiquette
FINDMYHOME
NETIQUETTE
Auch du kannst bewerten! 7 Tage nach deiner Anfrage erhältst du dafür von uns ein Bewertungsmail.
Alle Infos zu unseren Auszeichnungen und dem FINDMYHOME.AT Qualitätsprogramm findest du hier: Übersicht anzeigen

FINANZIERUNG
?>

Du willst wissen, wie viel dein Umzug kosten wird?

Mach gleich den kostenlosen Preisvergleich und schau, welche seriösen Anbieter in deiner Region günstig deinen Umzug organisieren


ZUM UMZUGS-VERGLEICH
-->

MYHOME BLOG
SuchAgentin auf FindMyHome.at
Unterschiedlichen Rechtsthemen, köstliche Rezepte, neueste Design-Highlights, sowie aktuelle Technik-Tools für Ihr Eigenheim.


FINDMYHOME.AT SUCHAGENTIN
SuchAgentin auf FindMyHome.at
Hallo, soll ich dir ähnliche Immobilien kostenfrei per E-Mail schicken?


Durch die Nutzung unserer Seite erklären Sie sich mit der Verwendung von Cookies zur Verbesserung Ihres Online-Erlebnisses einverstanden. Detaillierte Informationen zu diesem und weiteren Themen erhalten Sie in unserer Datenschutzerklärung.