MEIN ERGEBNIS ANPASSEN

Exklusiver Wohnkomfort in Döbling: Die perfekte Symbiose aus Natur und City! - Objektnr. 5630201

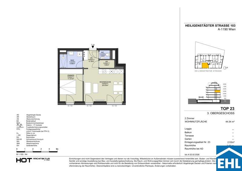
1190
Ort
44,59 m²
Fläche
2.0
Zimmer
WEITERE MEDIEN

ECKDATEN
FindMyHome.at // Externe Immobilien-ID5630201 // 83629
ImmobilienartWohnung - Eigentum
AnschriftHeiligenstädter Straße/23
1190 Wien
Baujahr2025
Stock3
Geschosse7
Fläche44,59 m²
Zimmer2.0
Bad1
WC1
Kaufpreis:€ 361.800,00
Ratenzahlung:Finanzierungsmöglichkeiten für diese Immobilie anzeigen
Provision: Provisionsfrei für den Käufer







BESCHREIBUNG

Exklusiver Wohnkomfort in Döbling: Die perfekte Symbiose aus Natur und City!

Wohnen am Puls der Stadt Erstbezug in Döblinger Bestlage!

Im lebendigen 19. Bezirk Wiens, nur einen Katzensprung von der Innenstadt entfernt, entsteht ein exklusives Wohnprojekt, das 39 moderne Eigentumswohnungen und 4 Atriumwohnungen umfasst.

Mit großzügigen Raumkonzepten von 2 bis 4 Zimmern und Größen zwischen 44 und 120 m² bietet es Platz für individuelles Wohnen in einer der begehrtesten Lagen der Stadt.

Heiligenstadt kombiniert das lebendige Stadtleben mit der Ruhe der Natur. Die Nußdorfer Heurigen sowie die Nähe zu Kahlenberg und Cobenzl bieten perfekte Möglichkeiten für entspannte Spaziergänge und vielfältige Freizeitaktivitäten. Das nahegelegene Q19 Einkaufsquartier sorgt zudem für ein abwechslungsreiches Shopping-Erlebnis. Ein Ort, an dem Urbanität und Natur in perfekter Harmonie verschmelzen.

Das Projekt:

  • 39 Eigentumswohnungen
  • 4 Atriumwohnungen im Erdgeschoß
  • 2 bis 4 Zimmerwohnungen mit Größen von 44 bis 120 m²
  • Hauseigene Tiefgarage mit 20 Stellplätzen
  • Ein Kellerabteil zu jeder Wohnung
  • Fahrrad- und Kinderwagenabstellraum
  • Kleinkinderspielplatz im Innenhof der Anlage

Die Ausstattung:

  • Fußbodenheizung über Fernwärme mit Einzelraumregelung
  • Klimaanlagen in allen Wohnungen des 1. DG und 2. DG
  • Kunststofffenster mit 3-fach Verglasung
  • Außenbeschattung bei allen Fenstern in Form von Rollläden (EG und 1. OG) bzw. Raffstores (ab dem 2. OG)
  • Videogegensprechanlage
  • Vorbereitungen in der Tiefgarage zur Nachrüstung von E-Ladestationen

Die Lage & Infrastruktur:

Bahnhof Wien Heiligenstadt 5 Gehminuten entfernt mit folgenden Anbindungen:

  • U4-Station Heiligenstadt
  • Buslinien 10A, 11A und 39A
  • S-Bahn-Linie S45 sowie Regionalzüge
  • Straßenbahnlinie D 3 Gehminuten entfernt

 

Ein Stellplatz in der Tiefgarage kann zusätzlich um EUR 38.000,- erworben werden (nur für Käufer der 3-4 Zimmerwohnungen).

Der Verkauf erfolgt provisionsfrei für den Käufer!

Fertigstellung geplant: voraussichtlich Mai 2027

Ein detaillierten Überblick finden Sie auf unserer  EHL-Projekthomepage

Visualisierung (Symbolbild) © JamJam

Wir weisen darauf hin, dass zwischen dem Vermittler und dem zu vermittelnden Dritten ein familiäres oder wirtschaftliches Naheverhältnis besteht.

Der Vermittler ist als Doppelmakler tätig.


Infrastruktur / Entfernungen

Gesundheit
Arzt <250m
Apotheke <250m
Klinik <1.000m
Krankenhaus <1.250m

Kinder & Schulen
Schule <750m
Kindergarten <250m
Universität <500m
Höhere Schule <750m

Nahversorgung
Supermarkt <250m
Bäckerei <500m
Einkaufszentrum <1.000m

Sonstige
Geldautomat <250m
Bank <250m
Post <500m
Polizei <500m

Verkehr
Bus <250m
U-Bahn <250m
Straßenbahn <250m
Bahnhof <500m
Autobahnanschluss <1.000m

Angaben Entfernung Luftlinie / Quelle: OpenStreetMap

Provision: Provisionsfrei für den Käufer


Alle Details anzeigen

KONTAKT






 

Lasse dich kostenlos vom Anbieter dieser Immobilie zurückrufen.







 


 
EHL Wohnen GmbH
Julie Wittrich
Telefonnummer anzeigen Telefon Allgemein: +4315127690405
Handy Bearbeiter: +4366478015358
 
Bitte dem Makler die FindMyHome.at - ID bekanntgeben: 5630201

Bewertungen dieses Anbieters
Qualitätsmakler
Qualitätsmakler:
Netiquette
Freundlichkeit
82 %

BEWERTUNGEN DIESES ANBIETERS

 
Qualitätsmakler
UNSERE HALL OF FAME DER BESTEN ANBIETER
Qualit�tsmakler
Qualitätsmakler
2012, 2013, 2014, 2015, 2016, 2017, 2018, 2019, 2020, 2021, 22/23, 2024, 2025
Weiterempfehlung
WIRD GERNE

Freundlichkeit
BESONDERS
FREUNDLICH
Netiquette
FINDMYHOME
NETIQUETTE
Auch du kannst bewerten! 7 Tage nach deiner Anfrage erhältst du dafür von uns ein Bewertungsmail.
Alle Infos zu unseren Auszeichnungen und dem FINDMYHOME.AT Qualitätsprogramm findest du hier: Übersicht anzeigen

FINANZIERUNG
?>

Du willst wissen, wie viel dein Umzug kosten wird?

Mach gleich den kostenlosen Preisvergleich und schau, welche seriösen Anbieter in deiner Region günstig deinen Umzug organisieren


ZUM UMZUGS-VERGLEICH
-->

MYHOME BLOG
SuchAgentin auf FindMyHome.at
Unterschiedlichen Rechtsthemen, köstliche Rezepte, neueste Design-Highlights, sowie aktuelle Technik-Tools für Ihr Eigenheim.


FINDMYHOME.AT SUCHAGENTIN
SuchAgentin auf FindMyHome.at
Hallo, soll ich dir ähnliche Immobilien kostenfrei per E-Mail schicken?


ÄHNLICHE IMMOBILIEN
Aehnliche Immobilie - Vorschaubild 1

Provisionsfrei: Elegante Erstbezugswohnungen an der Hohen Wa... - Objektnr. 5630204

48,27 m² - 2.0 Zimmer
383500 €
PLZ: 1190

Mehr anzeigen

Aehnliche Immobilie - Vorschaubild 2

PROVISIONSFREI - Urban Homes 170 - Ihr Zuhause für höchste L... - Objektnr. 5483285

39,72 m² - 2.0 Zimmer
355500 €
PLZ: 1190

Mehr anzeigen

Aehnliche Immobilie - Vorschaubild 3

Neubaujuwel in Döbling: Exklusive Erstbezugswohnungen mit op... - Objektnr. 5630200

48,27 m² - 2.0 Zimmer
391600 €
PLZ: 1190

Mehr anzeigen

Durch die Nutzung unserer Seite erklären Sie sich mit der Verwendung von Cookies zur Verbesserung Ihres Online-Erlebnisses einverstanden. Detaillierte Informationen zu diesem und weiteren Themen erhalten Sie in unserer Datenschutzerklärung.