MEIN ERGEBNIS ANPASSEN

Modernes Wohnen in hochwertiger Holzriegelbauweise - Objektnr. 5629962

3380
Ort
154,02 m²
Fläche
5.0
Zimmer

ECKDATEN
FindMyHome.at // Externe Immobilien-ID5629962 // 960/74725
ImmobilienartHaus - Eigentum
Anschrift3380 Pöchlarn
Baujahr2010
Geschosse2
Fläche154,02 m²
Grundfläche971,00 m²
Terrassen1
Zimmer5.0
Bad2
WC2
Kaufpreis:€ 469.000,00
Ratenzahlung:Finanzierungsmöglichkeiten für diese Immobilie anzeigen
Provision: 3% des Kaufpreises zzgl. 20% USt.







BESCHREIBUNG

Modernes Wohnen in hochwertiger Holzriegelbauweise

Zum Verkauf steht ein gepflegtes Einfamilienhaus in ruhiger Lage von Pöchlarn mit durchdachter Raumaufteilung, moderner Haustechnik und großzügigem Grundstück.

Eckdaten:

  • Wohnfläche: ca. 154 m²
  • Grundfläche: ca. 971 m²
  • Baujahr: 2010
  • Bauweise: Holzriegelbauweise
  • Fassade: Lärchenfassade, waagrechte Verschalung
  • Fenster: 3-fach verglaste Holz-Alu-Fenster
  • Beschattung: Südseitig Raffstore, übrige Fenster mit Rollläden

Raum & Ausstattung:

Das Haus überzeugt durch helle, freundliche Wohnräume und eine familiengerechte Raumaufteilung. Die hochwertige Holzriegelbauweise sorgt für ein angenehmes Raumklima und hervorragende Dämmwerte.

  • Wohnraumlüftung (ohne Kühlung) für kontrollierten Luftaustausch
  • Angebauter Abstellraum
  • Überdachter Abstellplatz (Carport)
  • Gartenhaus mit zusätzlichem Stauraum

Raumaufteilung:
Erdgeschoss:

  • Vorraum
  • Technikraum
  • Büro
  • offene Küche mit Wohn- und Essbereich und Ausgang zur südseitigen Terrasse
  • Bad/WC

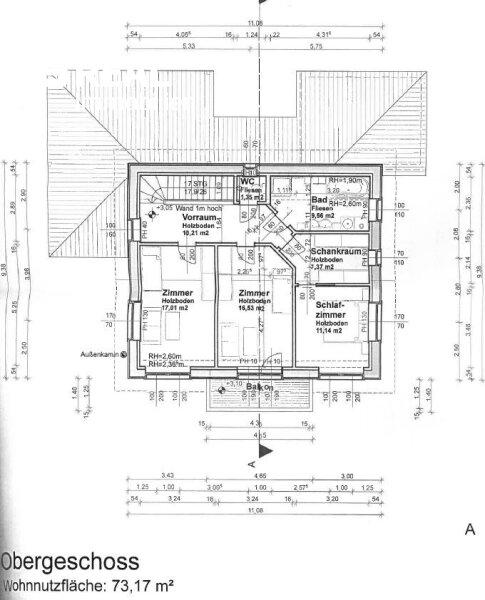
Obergeschoss:

  • Vorraum
  • 3 Zimmer
  • Schrankraum
  • Bad
  • WC
  • Balkon

Energie & Technik

Das Haus ist mit moderner und nachhaltiger Haustechnik ausgestattet:

  • Erdwärmeheizung mittels Flächenkollektoren
  • Solaranlage mit ca. 10 m²
  • Energieeffiziente 3-fach-Verglasung
  • Kabelplus-Anschluss vorhanden

Die Kombination aus Erdwärme und Solaranlage sorgt für niedrige Betriebskosten und zukunftssichere Energieversorgung.

Außenbereich

Das großzügige Grundstück mit ca. 971 m² bietet viel Platz für Gartenliebhaber, Familien oder individuelle Gestaltungsmöglichkeiten. Der gepflegte Garten sowie das separate Gartenhaus runden das attraktive Gesamtbild dieser Immobilie ab.

Dieses Einfamilienhaus vereint nachhaltige Bauweise, moderne Technik und großzügiges Wohnen in angenehmer Lage von Pöchlarn. Ideal für Familien oder Paare, die Wert auf Qualität, Energieeffizienz und ein ruhiges Wohnumfeld legen.


Infrastruktur / Entfernungen

Gesundheit
Arzt <500m
Apotheke <500m
Krankenhaus <10.000m

Kinder & Schulen
Schule <500m
Kindergarten <500m
Universität <9.500m

Nahversorgung
Supermarkt <500m
Bäckerei <500m
Einkaufszentrum <4.000m

Sonstige
Bank <500m
Geldautomat <500m
Post <500m
Polizei <500m

Verkehr
Bus <500m
Autobahnanschluss <2.000m
Bahnhof <1.000m

Angaben Entfernung Luftlinie / Quelle: OpenStreetMap

Provision: 3% des Kaufpreises zzgl. 20% USt.


Alle Details anzeigen

KONTAKT






 

Lasse dich kostenlos vom Anbieter dieser Immobilie zurückrufen.







 


 
s REAL Immobilienvermittlung GmbH
Andres SCHATZ
Telefonnummer anzeigen Telefon Allgemein: +436765635992
Handy Bearbeiter: +436765635992
 
Bitte dem Makler die FindMyHome.at - ID bekanntgeben: 5629962

Bewertungen dieses Anbieters
Qualitätsmakler
Qualitätsmakler:
2015, 2016, 2017, 2018, 2019, 2020, 2021 , 2025,
Netiquette
Freundlichkeit
80 %

BEWERTUNGEN DIESES ANBIETERS

 
Qualit�tsmakler
Qualitätsmakler
2015, 2016, 2017, 2018, 2019, 2020, 2021 2025
Weiterempfehlung
WIRD GERNE

Freundlichkeit
BESONDERS
FREUNDLICH
Netiquette
FINDMYHOME
NETIQUETTE
Auch du kannst bewerten! 7 Tage nach deiner Anfrage erhältst du dafür von uns ein Bewertungsmail.
Alle Infos zu unseren Auszeichnungen und dem FINDMYHOME.AT Qualitätsprogramm findest du hier: Übersicht anzeigen

FINANZIERUNG
?>

Du willst wissen, wie viel dein Umzug kosten wird?

Mach gleich den kostenlosen Preisvergleich und schau, welche seriösen Anbieter in deiner Region günstig deinen Umzug organisieren


ZUM UMZUGS-VERGLEICH
-->

MYHOME BLOG
SuchAgentin auf FindMyHome.at
Unterschiedlichen Rechtsthemen, köstliche Rezepte, neueste Design-Highlights, sowie aktuelle Technik-Tools für Ihr Eigenheim.


FINDMYHOME.AT SUCHAGENTIN
SuchAgentin auf FindMyHome.at
Hallo, soll ich dir ähnliche Immobilien kostenfrei per E-Mail schicken?


Durch die Nutzung unserer Seite erklären Sie sich mit der Verwendung von Cookies zur Verbesserung Ihres Online-Erlebnisses einverstanden. Detaillierte Informationen zu diesem und weiteren Themen erhalten Sie in unserer Datenschutzerklärung.