SPITZEN Grundstück vollerschlossen mit hoher Bebauungsdichte - ca. 330m² Wohnfläche in Oisnitz / St. Josef - Nähe Lannach - Objektnr. 5629881
ECKDATEN
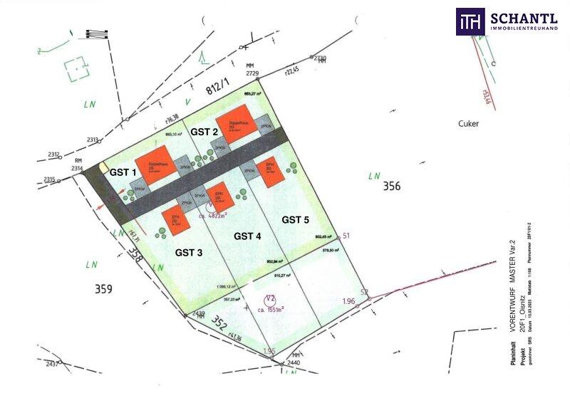
BESCHREIBUNG
KONTAKT
Lasse dich kostenlos vom Anbieter dieser Immobilie zurückrufen.
Schantl ITH Immobilientreuhand GmbH
Jacqueline Fellner, MBA
Jacqueline Fellner, MBA
Telefonnummer anzeigen
Handy Bearbeiter: +436505159115
Bitte dem Makler die FindMyHome.at - ID bekanntgeben: 5629881
Bitte dem Makler die FindMyHome.at - ID bekanntgeben: 5629881
Bewertungen dieses Anbieters
Qualitätsmakler:
2015, 2016, 2018, 2019, 2020, 2021, 2023 , 2024, 2025, 2026,
2015, 2016, 2018, 2019, 2020, 2021, 2023 , 2024, 2025, 2026,
80
%
BEWERTUNGEN DIESES ANBIETERS
UNSERE HALL OF FAME DER BESTEN ANBIETER
Qualitätsmakler
2015, 2016, 2018, 2019, 2020, 2021, 22/23, 2024, 2025, 2026
2015, 2016, 2018, 2019, 2020, 2021, 22/23, 2024, 2025, 2026
ø 48h ANTWORT
WIRD GERNE
WEITEREMPFOHLEN
WEITEREMPFOHLEN
BESONDERS
FREUNDLICH
FREUNDLICH
FINDMYHOME.AT
NETIQUETTE
NETIQUETTE
Auch du kannst bewerten! 7 Tage nach deiner Anfrage erhältst du dafür von uns ein Bewertungsmail.
Alle Infos zu unseren Auszeichnungen und dem FINDMYHOME.AT Qualitätsprogramm findest du hier: Übersicht anzeigen
Alle Infos zu unseren Auszeichnungen und dem FINDMYHOME.AT Qualitätsprogramm findest du hier: Übersicht anzeigen
FINANZIERUNG
Du willst wissen, wie viel dein Umzug kosten wird?
Mach gleich den kostenlosen Preisvergleich und schau, welche seriösen Anbieter in deiner Region günstig deinen Umzug organisieren
ZUM UMZUGS-VERGLEICH






































