MEIN ERGEBNIS ANPASSEN

Herrliches Penthouse in Toplage A\ - Objektnr. 5629366

1040
Ort
194,93 m²
Fläche
5.0
Zimmer

ECKDATEN
FindMyHome.at // Externe Immobilien-ID5629366 // 65566
ImmobilienartWohnung - Eigentum
AnschriftKarolinengasse/27
1040 Wien
Baujahr2025
Stock6
Geschosse7
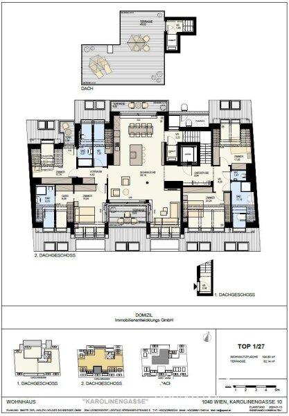
Fläche194,93 m²
Terrassen4 (62,00 m²)
Zimmer5.0
Bad3
WC3
Kaufpreis:€ 3.690.000,00
Ratenzahlung:Finanzierungsmöglichkeiten für diese Immobilie anzeigen
Provision: 3% des Kaufpreises zzgl. 20% USt.







BESCHREIBUNG

Herrliches Penthouse in Toplage A\

Für eine noch größere Auswahl an Immobilien besuchen Sie www.akkadia.at.

Das exklusive Neubauprojekt umfasst insgesamt 34 Wohneinheiten und teilt sich in einen siebengeschossigen Straßentrakt sowie einen dreigeschossigen Hoftrakt, die durch eine gemeinsame Tiefgarage verbunden sind.

Das moderne Architektur- und Wohnkonzept spricht Menschen mit hohen Ansprüchen an, die Abwechslung und individuellen Freiraum schätzen.
Besondere Sorgfalt wurde auf eine hochwertige Ausstattung sowie eine optimale Raumaufteilung gelegt.

Die Fertigstellung des gesamten Projekts ist für Ende 2025 geplant.
Zusätzlich besteht die Möglichkeit, die Wohnungen zu Anlegerpreisen zu erwerben.

Dieses traumhafte Penthouse, erreichbar über Ihren privaten Lift, lässt keine Wünsche offen.

Von einem einladenden Vorzimmer aus betreten Sie die rund 195 m² große Wohnung, die Ihnen erstklassigen Wohnkomfort bietet.

Zur Verfügung stehen Ihnen ein geräumiges Vorzimmer, eine Garderobe, ein großzügiger Wohn- und Küchenbereich mit einer vorgelagerten Südterrasse, ein Masterbedroom mit eigenem Schrankraum und Badezimmer, drei weitere Schlafzimmer, zwei moderne Badezimmer, eine separate Toilette sowie ein praktischer Abstellraum.

Alles Badezimmer verfügen über ein Fenster.

Über eine Innentreppe gelangen Sie auf die beeindruckende Dachterrasse, die Ihnen einen Rundumblick auf die Umgebung ermöglicht.

Selbstverständlich gehört auch ein Kellerabteil zu dieser außergewöhnlichen Immobilie.

 

Auf Grund der EU-Richtlinien zum Fernabsatz- und Auswärtsgeschäfte-Gesetz bitten wir um Ihr Verständnis, dass wir Ihnen seit 13. Juni 2014 die Objekt-Unterlagen erst nach Ihrer Bestätigung, dass Sie unser Tätigwerden wünschen und über Ihre Rücktrittsrechte aufgeklärt wurden, zusenden können. Bevor Sie die Unterlagen zugesendet bekommen, erhalten Sie eine Mail in der Sie diese beiden Punkte bestätigen müssen. Vielen Dank für Ihr Vertrauen!


Infrastruktur / Entfernungen

Gesundheit
Arzt <250m
Apotheke <500m
Klinik <750m
Krankenhaus <1.250m

Kinder & Schulen
Schule <250m
Kindergarten <250m
Universität <750m
Höhere Schule <750m

Nahversorgung
Supermarkt <250m
Bäckerei <500m
Einkaufszentrum <1.000m

Sonstige
Geldautomat <500m
Bank <500m
Post <750m
Polizei <750m

Verkehr
Bus <250m
U-Bahn <750m
Straßenbahn <250m
Bahnhof <500m
Autobahnanschluss <2.250m

Angaben Entfernung Luftlinie / Quelle: OpenStreetMap

Klimaanlage: JA
Barrierefrei: JA
Provision: 3% des Kaufpreises zzgl. 20% USt.


Alle Details anzeigen

KONTAKT






 

Lasse dich kostenlos vom Anbieter dieser Immobilie zurückrufen.







 


 
AKKADIA Immobilienvermittlung GmbH
Michael Schlaffer
Telefonnummer anzeigen Telefon Allgemein: +431512908554
Handy Bearbeiter: +436645225073
 
Bitte dem Makler die FindMyHome.at - ID bekanntgeben: 5629366

Bewertungen dieses Anbieters
Netiquette
Freundlichkeit

BEWERTUNGEN DIESES ANBIETERS

 
Freundlichkeit
BESONDERS
FREUNDLICH
Netiquette
FINDMYHOME
NETIQUETTE
Auch du kannst bewerten! 7 Tage nach deiner Anfrage erhältst du dafür von uns ein Bewertungsmail.
Alle Infos zu unseren Auszeichnungen und dem FINDMYHOME.AT Qualitätsprogramm findest du hier: Übersicht anzeigen

FINANZIERUNG
?>

Du willst wissen, wie viel dein Umzug kosten wird?

Mach gleich den kostenlosen Preisvergleich und schau, welche seriösen Anbieter in deiner Region günstig deinen Umzug organisieren


ZUM UMZUGS-VERGLEICH
-->

MYHOME BLOG
SuchAgentin auf FindMyHome.at
Unterschiedlichen Rechtsthemen, köstliche Rezepte, neueste Design-Highlights, sowie aktuelle Technik-Tools für Ihr Eigenheim.


FINDMYHOME.AT SUCHAGENTIN
SuchAgentin auf FindMyHome.at
Hallo, soll ich dir ähnliche Immobilien kostenfrei per E-Mail schicken?


ÄHNLICHE IMMOBILIEN
Aehnliche Immobilie - Vorschaubild 1

Exklusives Penthouse im Herzen von Wieden - Objektnr. 5562318


220,19 m²
4290000 €
PLZ: 1040

Mehr anzeigen

Aehnliche Immobilie - Vorschaubild 2

Exklusive Dachgeschoßwohnung mit Blick über Wien!... - Objektnr. 5560398

220,19 m² - 4.0 Zimmer
4290000 €
PLZ: 1040

Mehr anzeigen

Durch die Nutzung unserer Seite erklären Sie sich mit der Verwendung von Cookies zur Verbesserung Ihres Online-Erlebnisses einverstanden. Detaillierte Informationen zu diesem und weiteren Themen erhalten Sie in unserer Datenschutzerklärung.