MEIN ERGEBNIS ANPASSEN

Nahe Wilhelminenberg: Wohnen mit Stil und Freiraum - Objektnr. 5628866

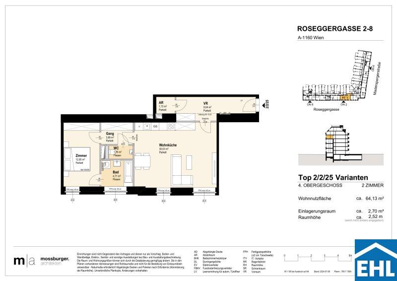
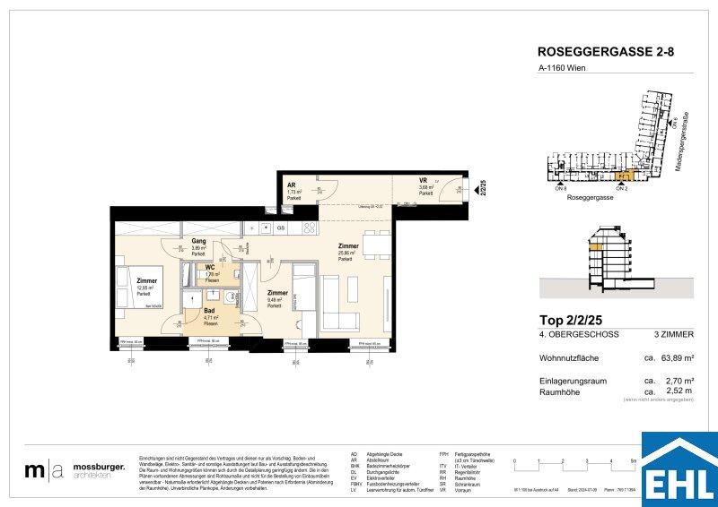
1160
Ort
64,00 m²
Fläche
3.0
Zimmer
WEITERE MEDIEN

ECKDATEN
FindMyHome.at // Externe Immobilien-ID5628866 // 77596
ImmobilienartWohnung - Eigentum
AnschriftRoseggergasse/25
1160 Wien
Stock4
Fläche64,00 m²
Zimmer3.0
Bad1
WC1
 Abstellraum
Kaufpreis:€ 424.200,00
Ratenzahlung:Finanzierungsmöglichkeiten für diese Immobilie anzeigen
Provision: 3% des Kaufpreises zzgl. 20% USt.







BESCHREIBUNG

Nahe Wilhelminenberg: Wohnen mit Stil und Freiraum

Grand Garden: Modernes Wohnen nahe Wilhelminenberg

In der Roseggergasse 28, unweit des Wilhelminenbergs, entstehen 124 hochwertige Eigentumswohnungen. Die Wohnflächen reichen von ca. 39 m² bis 245 m² und bieten Grundrisse mit zwei bis sechs Zimmern ideal für unterschiedlichste Wohnbedürfnisse.

Großzügige private Freiflächen wie Eigengärten, Balkone, Terrassen, Loggien sowie beeindruckende Dachterrassen mit Panoramablick schaffen ein einzigartiges Wohngefühl.

Das Herzstück des Projekts ist der knapp 1.000 m² große Innenhof, der den Bewohnern exklusiv zur Verfügung steht und u.a. zum Verweilen und Urban Gardening einlädt. Eine Ruheoase und Rückzugsort, der seinesgleichen sucht und das direkt vor Ihrer Wohnungstür.

Das Projekt wurde bereits mit dem DGNB-Vorzertifikat in Gold (Deutsche Gesellschaft für Nachhaltiges Bauen) ausgezeichnet und überzeugt durch besonders energieeffiziente Bauweise, einen geringen CO-Fußabdruck sowie durchdachte Konzepte für Luftqualität, Akustik und Tageslichtnutzung.

Die ausgezeichnete Lage nur wenige Gehminuten zu den U3-Stationen Ottakring und Kendlerstraße bietet weiters eine optimale Anbindung an das Stadtzentrum und verbindet entspanntes Wohnen mit urbanem Komfort.

Fertigstellung: voraussichtlich 2028

Der Verkauf erfolgt mit einer Vermittlungsprovision in Höhe von 3% vom Kaufpreis.

 

Das Projekt:

  • 124 Eigentums- und Vorsorgewohnungen
  • Wohnungsgrößen von 39 m² bis 245 m²
  • Tiefgarage mit 28 Stellplätzen
    • Sämtliche Stellplätze sind mit einer E-Mobilitäts-Anschlussstelle ausgestattet
  • Gemeinschaftsgarten in absoluter Innenhof-Ruhelage mit Urban Gardening-Bereichen
  • Großzügige Raumhöhen im Altbau
  • Private Freiflächen in Form von Gärten, Balkonen, Loggien oder Terrassen

Die Ausstattung:

  • Fußbodenheizung mittels Fernwärme
  • Photovoltaikanlage
  • Hochwertige Eichenparkettböden
  • Elegante Verfliesung in den Nassräumen
  • Beschattungen:
    • hofseitige Regelgeschoße: außenliegender, elektrisch betriebene Raffstores
    • straßenseitige Regelgeschoße: innenliegender, textiler Sonnenschutz
    • Dachgeschoße: außenliegende, elektrisch betriebene Rollläden bzw. Raffstores
    • Dachflächenfenster: Rollläden oder textile Markisetten
    • hofseitiges Garten- und Erdgeschoß: Rollläden oder textile Markisetten
  • Videogegensprechanlage
  • Klimaanlagen in den Dachgeschoßwohnungen
  • Smarte Hausverwaltungsapp
  • Paketboxenanlage

Kaufpreise Stellplätze: zwischen EUR 33.700,- und EUR 48.000,-

Die Lage & Infrastruktur:

Profitieren Sie von der idealen Lage, nur wenige Gehminuten von den U3-Stationen Ottakring und Kendlerstraße entfernt, die eine direkte Verbindung in das Stadtzentrum ermöglicht.

Die Umgebung bietet neben der erstklassigen Verkehrsanbindung weiters eine ausgezeichnete Infrastruktur mit zahlreichen Einkaufsmöglichkeiten, Schulen, Krankenhäusern (z.B. Klinik Ottakring), Cafés und auch traditionellen Wiener Heurige. Optimal ergänzt wird die Lage durch naheliegende Freizeit- und Erholungsgebiete wie die Steinhofgründe, der Flötzersteig und der Wilhelminenberg ideal für entspannte Spaziergänge und sportliche Aktivitäten.

Folgende Stationen der öffentlichen Verkehrsmittel erreicht man nach wenigen Gehminuten:

  • U3-Stationen Ottakring und Kendlerstraße
  • S-Bahn-Station Ottakring
  • Straßenbahnlinien 10 & 49
  • Buslinie 48A

 

Wir weisen darauf hin, dass zwischen dem Vermittler und dem zu vermittelnden Dritten ein familiäres oder wirtschaftliches Naheverhältnis besteht.

Der Vermittler ist als Doppelmakler tätig.


Infrastruktur / Entfernungen

Gesundheit
Arzt <250m
Apotheke <500m
Klinik <500m
Krankenhaus <750m

Kinder & Schulen
Schule <250m
Kindergarten <500m
Universität <1.000m
Höhere Schule <1.000m

Nahversorgung
Supermarkt <250m
Bäckerei <500m
Einkaufszentrum <1.500m

Sonstige
Geldautomat <500m
Bank <500m
Post <750m
Polizei <1.000m

Verkehr
Bus <250m
U-Bahn <250m
Straßenbahn <250m
Bahnhof <500m
Autobahnanschluss <5.500m

Angaben Entfernung Luftlinie / Quelle: OpenStreetMap

Provision: 3% des Kaufpreises zzgl. 20% USt.


Alle Details anzeigen

KONTAKT






 

Lasse dich kostenlos vom Anbieter dieser Immobilie zurückrufen.







 


 
EHL Wohnen GmbH
Julie Wittrich
Telefonnummer anzeigen Telefon Allgemein: +4315127690405
Handy Bearbeiter: +4366478015358
 
Bitte dem Makler die FindMyHome.at - ID bekanntgeben: 5628866

Bewertungen dieses Anbieters
Qualitätsmakler
Qualitätsmakler:
Netiquette
Freundlichkeit
82 %

BEWERTUNGEN DIESES ANBIETERS

 
Qualitätsmakler
UNSERE HALL OF FAME DER BESTEN ANBIETER
Qualit�tsmakler
Qualitätsmakler
2012, 2013, 2014, 2015, 2016, 2017, 2018, 2019, 2020, 2021, 22/23, 2024, 2025
Weiterempfehlung
WIRD GERNE

Freundlichkeit
BESONDERS
FREUNDLICH
Netiquette
FINDMYHOME
NETIQUETTE
Auch du kannst bewerten! 7 Tage nach deiner Anfrage erhältst du dafür von uns ein Bewertungsmail.
Alle Infos zu unseren Auszeichnungen und dem FINDMYHOME.AT Qualitätsprogramm findest du hier: Übersicht anzeigen

FINANZIERUNG
?>

Du willst wissen, wie viel dein Umzug kosten wird?

Mach gleich den kostenlosen Preisvergleich und schau, welche seriösen Anbieter in deiner Region günstig deinen Umzug organisieren


ZUM UMZUGS-VERGLEICH
-->

MYHOME BLOG
SuchAgentin auf FindMyHome.at
Unterschiedlichen Rechtsthemen, köstliche Rezepte, neueste Design-Highlights, sowie aktuelle Technik-Tools für Ihr Eigenheim.


FINDMYHOME.AT SUCHAGENTIN
SuchAgentin auf FindMyHome.at
Hallo, soll ich dir ähnliche Immobilien kostenfrei per E-Mail schicken?


ÄHNLICHE IMMOBILIEN
Aehnliche Immobilie - Vorschaubild 1

Nahe Wilhelminenberg: Wohnen mit Stil und Freiraum... - Objektnr. 5628876

64,00 m² - 3.0 Zimmer
383700 €
PLZ: 1160

Mehr anzeigen

Aehnliche Immobilie - Vorschaubild 2

GRAND GARDEN | NATUR GENIESSEN. STADT ERLEBEN. - Objektnr. 5429042

59,84 m² - 2.0 Zimmer
378500 €
PLZ: 1160

Mehr anzeigen

Aehnliche Immobilie - Vorschaubild 3

Grand Garden: Modernes Wohnen nahe Wilhelminenberg... - Objektnr. 5628862

55,10 m² - 2.0 Zimmer
388600 €
PLZ: 1160

Mehr anzeigen

Durch die Nutzung unserer Seite erklären Sie sich mit der Verwendung von Cookies zur Verbesserung Ihres Online-Erlebnisses einverstanden. Detaillierte Informationen zu diesem und weiteren Themen erhalten Sie in unserer Datenschutzerklärung.