MEIN ERGEBNIS ANPASSEN

Nachhaltiges Wohnen am Park - Ihr neues Zuhause - Objektnr. 5627955

1140
Ort
€ 2.635,26
Gesamtkosten
141,76 m²
Fläche
4.5
Zimmer
WEITERE MEDIEN

ECKDATEN
FindMyHome.at // Externe Immobilien-ID5627955 // 91388
ImmobilienartWohnung - Miete
AnschriftLinzer Straße
1140 Wien
Baujahr2024
Geschosse6
Mietdauer5
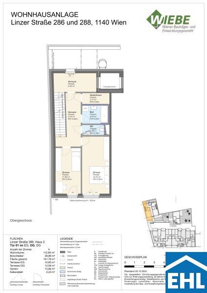
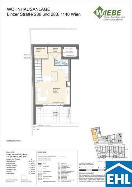
Fläche141,76 m²
Terrassen2 (25,00 m²)
Zimmer4.5
Bad2
WC3
 Abstellraum
Kaution:€ 7.905,78
Brutto-Miete:€ 2.635,26
Betriebskosten (inkl. MwSt):€ 323,19
Mehrwertsteuer:€ 239,57
Monatliche Gesamtkosten:€ 2.635,26
Provision: Gemäß Erstauftraggeberprinzip bezahlt der Abgeber die Provision.




BESCHREIBUNG

Nachhaltiges Wohnen am Park - Ihr neues Zuhause

Nachhaltiges Wohnen am Park Ihr neues Zuhause

In der Linzer Straße entstand eine moderne Wohnhausanlage mit hochwertigen Mietwohnungen zwischen 51,64 und 95,76 m2. Die Anlage verfügt über eine hauseigene Tiefgarage mit Stellplätzen für die zukünftigen Mieter. Das Wohnungsangebot umfasst 2- bis 3-Zimmer-Wohnungen und ist ideal für Singles, Paare sowie Familien. Jede Wohnung bietet einen privaten Außenbereich wie eine Loggia, Terrasse oder einen Garten, um zusätzlichen Freiraum zu schaffen.

Alle Wohnungen verfügen über ein eigenes Kellerabteil. Im Haus befinden sich zudem ein Kinderwagen- und Fahrradabstellraum sowie ein Spielplatz in der Anlage. Sämtliche Mietwohnungen sind vom Keller bis zur jeweiligen Etage über einen Aufzug erreichbar. Alle Einheiten werden modern und bezugsfertig übergeben und erfüllen höchste Wohnansprüche.

Die Wohnanlage wurde in Niedrigenergiebauweise errichtet, was für niedrige Heiz- und Warmwasserkosten sorgt. Das Gebäude zeichnet sich durch Deckenheizung und -Kühlung aus, die über eine Wärmepumpenanlage und Sonnenkollektoren betrieben wird. Geothermie durch Tiefenbohrungen ergänzt das nachhaltige Energiekonzept.

Die Ausstattung:

  • Hochwertige Materialien
  • Parkettböden in den Wohnräumen
  • vollausgestattete Küchen (werden nach Anmietung eingebaut)
  • Fliesen in den Nassräumen
  • Außenliegender Sonnenschutz mit Fernsteuerung
  • Großzügige Freiflächen wie Balkone oder Loggien
  • Private Kellerabteile
  • Gemeinschaftlicher Fahrradraum

Die Lage:

Das Projekt bietet eine hervorragende Infrastruktur. In der Umgebung befinden sich zahlreiche Nahversorger und Geschäfte entlang der Hütteldorfer Straße sowie das Auhofcenter mit einer großen Auswahl an Einkaufsmöglichkeiten, Gastronomie und Unterhaltung. Schulen, wie die Volksschule in der Hochsatzengasse, sind fußläufig erreichbar, während weiterführende Schulen gut an den öffentlichen Nahverkehr angebunden sind. Zudem liegt die A1-Autobahnauffahrt in unmittelbarer Nähe.

Öffentliche Verkehrsmittel:

 

  • Buslinie 47A mit Anbindung an die U4 (Ober St. Veit)
  • Straßenbahnlinie 52 (Hochsatzengasse) , 49 (Hochsatzengasse/Hütteldorfer Straße)

Befristung: 5 Jahre, 1 Jahr Kündigungsverzicht, 3 Monate Kündigungsfrist

Ein Parkplatz kann ab € 134,- brutto angemietet werden.
Strom, Heizung und Warm-/Wasser werden nach Verbrauch abgerechnet. 

zzgl. 1 €/m² netto Akonto Heizung und Warmwasser

Nebenkosten 
3 BMM Kaution

 

Wir weisen darauf hin, dass zwischen dem Vermittler und dem zu vermittelnden Dritten ein familiäres oder wirtschaftliches Naheverhältnis besteht.

Der Immobilienmakler erklärt, dass er entgegen dem in der Immobilienwirtschaft üblichen Geschäftsgebrauch des Doppelmaklers einseitig nur für den Vermieter tätig ist.


Infrastruktur / Entfernungen

Gesundheit
Arzt <250m
Apotheke <500m
Klinik <1.750m
Krankenhaus <1.250m

Kinder & Schulen
Schule <250m
Kindergarten <250m
Universität <1.750m
Höhere Schule <3.500m

Nahversorgung
Supermarkt <500m
Bäckerei <500m
Einkaufszentrum <3.250m

Sonstige
Geldautomat <500m
Bank <500m
Post <500m
Polizei <1.000m

Verkehr
Bus <250m
U-Bahn <750m
Straßenbahn <250m
Bahnhof <750m
Autobahnanschluss <4.250m

Angaben Entfernung Luftlinie / Quelle: OpenStreetMap

Klimaanlage: JA
Provision: Gemäß Erstauftraggeberprinzip bezahlt der Abgeber die Provision.


Alle Details anzeigen

KONTAKT






 

Lasse dich kostenlos vom Anbieter dieser Immobilie zurückrufen.







 


 
EHL Wohnen GmbH
Egon-Adrian Toth, BA
Telefonnummer anzeigen Telefon Allgemein: +4315127690404
 
Bitte dem Makler die FindMyHome.at - ID bekanntgeben: 5627955

Bewertungen dieses Anbieters
Qualitätsmakler
Qualitätsmakler:
Netiquette
Freundlichkeit
82 %

BEWERTUNGEN DIESES ANBIETERS

 
Qualitätsmakler
UNSERE HALL OF FAME DER BESTEN ANBIETER
Qualit�tsmakler
Qualitätsmakler
2012, 2013, 2014, 2015, 2016, 2017, 2018, 2019, 2020, 2021, 22/23, 2024, 2025
Weiterempfehlung
WIRD GERNE

Freundlichkeit
BESONDERS
FREUNDLICH
Netiquette
FINDMYHOME
NETIQUETTE
Auch du kannst bewerten! 7 Tage nach deiner Anfrage erhältst du dafür von uns ein Bewertungsmail.
Alle Infos zu unseren Auszeichnungen und dem FINDMYHOME.AT Qualitätsprogramm findest du hier: Übersicht anzeigen


Du willst wissen, wie viel dein Umzug kosten wird?

Mach gleich den kostenlosen Preisvergleich und schau, welche seriösen Anbieter in deiner Region günstig deinen Umzug organisieren


ZUM UMZUGS-VERGLEICH
-->

MYHOME BLOG
SuchAgentin auf FindMyHome.at
Unterschiedlichen Rechtsthemen, köstliche Rezepte, neueste Design-Highlights, sowie aktuelle Technik-Tools für Ihr Eigenheim.


FINDMYHOME.AT SUCHAGENTIN
SuchAgentin auf FindMyHome.at
Hallo, soll ich dir ähnliche Immobilien kostenfrei per E-Mail schicken?


ÄHNLICHE IMMOBILIEN
Aehnliche Immobilie - Vorschaubild 1

SONNIGE MAISNONETTEWOHNUNG MIT HERRLICHEM AUSBLICK ÜBER 1140... - Objektnr. 5625728

138,90 m² - 4.0 Zimmer
2909.96 €
PLZ: 1140

Mehr anzeigen

Durch die Nutzung unserer Seite erklären Sie sich mit der Verwendung von Cookies zur Verbesserung Ihres Online-Erlebnisses einverstanden. Detaillierte Informationen zu diesem und weiteren Themen erhalten Sie in unserer Datenschutzerklärung.