MEIN ERGEBNIS ANPASSEN

Altbau-Sanierungsobjekt mit Entwicklungspotenzial - Objektnr. 5627701

  • 1
  • 2
  • 3
  • 4
  • 5
  • 6
  • 7
  • 8
  • öblichgasse 9_70dpi
  • Löblhgasse 9_70dpi
  • Löblichgae 9_70dpi
  • Löble 9_70dpi
  • Löblichgass 9_70dpi
  • Löblichgasse 9_
  • Löblichgasse 9_70dpi
  • Lse 9_70dpi
  • asse 9_70dpi
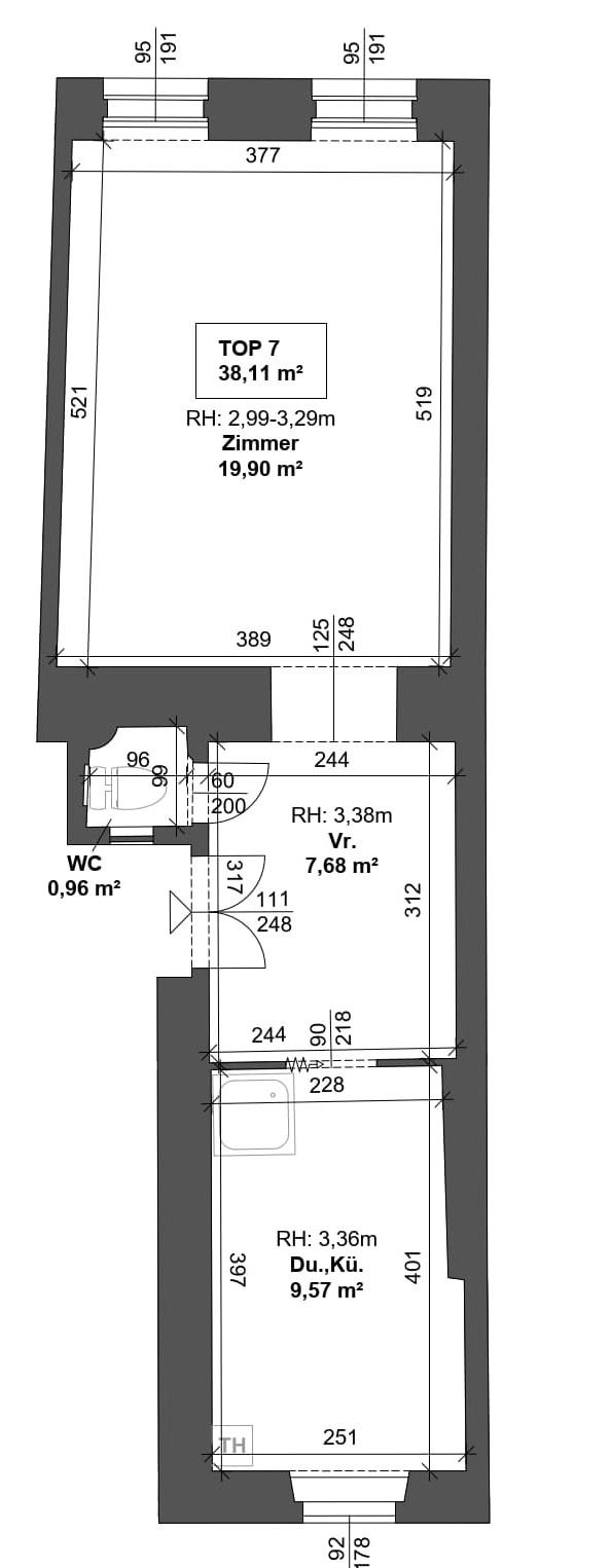
  • Plan Top 7
1090
Ort
38,11 m²
Fläche
1
Zimmer

ECKDATEN
FindMyHome.at // Externe Immobilien-ID5627701 // 101/18651
ImmobilienartWohnung - Eigentum
AnschriftLöblichgasse
1090 Wien
Alt- oder NeubauAltbau
NäheWähringer Straße
Stock2
Beziehbar absofort
Fläche38,11 m²
Zimmer1
Bad1
WC1
Kaufpreis:€ 219.000,00
Ratenzahlung:Finanzierungsmöglichkeiten für diese Immobilie anzeigen
sonstige Kosten (inkl. MwSt):€ 107,48
Mehrwertsteuer:€ 2.888,00
Provision: 3%







BESCHREIBUNG

Altbau-Sanierungsobjekt mit Entwicklungspotenzial

Diese kompakte Altbauwohnung im 1. Obergeschoss verfügt über ein Zimmer, einen Vorraum, eine separate Küche mit Duschmöglichkeit sowie ein WC.
Die Raumhöhen von bis zu über 3 Metern unterstreichen den klassischen Wiener Altbaucharakter.
Die Wohnung befindet sich in vollständig sanierungsbedürftigem Zustand. Sämtliche Oberflächen, Installationen, Sanitär- und Küchenausstattung sind erneuerungsbedürftig. Eine umfassende Generalsanierung ist einzuplanen.
Aufgrund der klaren, funktionalen Grundstruktur bietet die Einheit eine solide Basis für eine vollständige Neugestaltung nach eigenen Vorstellungen.
Ein klassisches Sanierungsobjekt mit Entwicklungspotenzial in gefragter Lage des 9. Bezirks.

Ihre Highlights auf einen Blick:
- Stilvolles Gründerzeithaus mit Altbaucharakter
- Teilweise saniert – teilweise mit Entwicklungspotenzial
- Top-Lage im 9. Bezirk
- U-Bahn und Nahversorgung in unmittelbarer Nähe

Lage
Die Liegenschaft in der Löblichgasse 9 befindet sich in ausgezeichneter Lage des 9. Wiener Gemeindebezirks (Alsergrund), einem der gefragtesten innerstädtischen Wohnbezirke Wiens. Die Umgebung ist geprägt von repräsentativen Altbauten, gepflegten Wohnhäusern und einer gewachsenen städtischen Infrastruktur.
Die Nahversorgung ist umfassend gesichert: Supermärkte, Bäckereien, Apotheken sowie diverse Fachgeschäfte befinden sich in fußläufiger Distanz. Darüber hinaus bietet die nahegelegene Nußdorfer Straße eine Vielzahl an Gastronomiebetrieben, Cafés und Dienstleistungsangeboten. Durch die Nähe zur Innenstadt profitieren Bewohner von einem urbanen Umfeld mit hoher Lebensqualität.
Die öffentliche Verkehrsanbindung ist sehr gut. Mehrere Straßenbahnlinien (u. a. 37, 38, 40, 41, 42) sowie Busverbindungen sind rasch erreichbar und gewährleisten eine schnelle Anbindung an das Stadtzentrum sowie an weitere Bezirke. Die U-Bahn-Stationen der Linien U6 (Währinger Straße/Volksoper bzw. Nußdorfer Straße) befinden sich in komfortabler Reichweite.
Erholungs- und Freizeitmöglichkeiten sind ebenfalls gegeben: Der nahegelegene Liechtensteinpark sowie der Donaukanal bieten Grünflächen und Möglichkeiten zur Freizeitgestaltung im Freien. Bildungseinrichtungen, darunter Universitäten, Schulen und Kindergärten, befinden sich im direkten Umfeld, was die Lage zusätzlich attraktiv macht.

Ansprechpartner
Frau Doris Kurzweil || +43 699 17 55 66 16 || dk@jpi.at
Herr Iman Ajdari || +43 699 17 55 66 68 || ia@jpi.at

Wir weisen darauf hin, dass wir mit dem Abgeber in ständiger Geschäftsbeziehung stehen und schon aus diesem Grund ein wirtschaftliches Naheverhältnis vorliegt.Provision: 3%


Alle Details anzeigen

KONTAKT






 

Lasse dich kostenlos vom Anbieter dieser Immobilie zurückrufen.







 


 
JP Immobilien
Iman Ajdari
Telefonnummer anzeigen Telefon Allgemein: +4315966020668
Handy Bearbeiter: +4369917556668
 
Bitte dem Makler die FindMyHome.at - ID bekanntgeben: 5627701

Bewertungen dieses Anbieters
Qualitätsmakler
Qualitätsmakler:
2021,

BEWERTUNGEN DIESES ANBIETERS

 
Qualit�tsmakler
Qualitätsmakler
2021
Auch du kannst bewerten! 7 Tage nach deiner Anfrage erhältst du dafür von uns ein Bewertungsmail.
Alle Infos zu unseren Auszeichnungen und dem FINDMYHOME.AT Qualitätsprogramm findest du hier: Übersicht anzeigen

FINANZIERUNG
?>

Du willst wissen, wie viel dein Umzug kosten wird?

Mach gleich den kostenlosen Preisvergleich und schau, welche seriösen Anbieter in deiner Region günstig deinen Umzug organisieren


ZUM UMZUGS-VERGLEICH
-->

MYHOME BLOG
SuchAgentin auf FindMyHome.at
Unterschiedlichen Rechtsthemen, köstliche Rezepte, neueste Design-Highlights, sowie aktuelle Technik-Tools für Ihr Eigenheim.


FINDMYHOME.AT SUCHAGENTIN
SuchAgentin auf FindMyHome.at
Hallo, soll ich dir ähnliche Immobilien kostenfrei per E-Mail schicken?


ÄHNLICHE IMMOBILIEN
Aehnliche Immobilie - Vorschaubild 1

#SQ - GEMÜTLICHE 2-ZIMMER-ALTBAUWOHNUNG ZU VERKAUFEN... - Objektnr. 5592647

37,90 m² - 2.0 Zimmer
199000 €
PLZ: 1090

Mehr anzeigen

Aehnliche Immobilie - Vorschaubild 2

Sanierungsbedürftige Altbauwohnung mit guter Raumstruktur... - Objektnr. 5627702

38,72 m² - 1 Zimmer
235000 €
PLZ: 1090

Mehr anzeigen

Durch die Nutzung unserer Seite erklären Sie sich mit der Verwendung von Cookies zur Verbesserung Ihres Online-Erlebnisses einverstanden. Detaillierte Informationen zu diesem und weiteren Themen erhalten Sie in unserer Datenschutzerklärung.