MEIN ERGEBNIS ANPASSEN

** Tolle 2-Zimmer-Wohnung direkt am Stadtplatz 6 - Top 8 - Objektnr. 5627679

  • Stadtplatz 6
4600
Ort
€ 788,42
Gesamtkosten
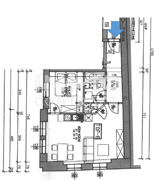
59,30 m²
Fläche
2.0
Zimmer

ECKDATEN
FindMyHome.at // Externe Immobilien-ID5627679 // 1939/215109
ImmobilienartWohnung - Miete
Anschrift4600 Wels
Mietdauer5
Fläche59,30 m²
Terrassen1
Zimmer2.0
Kaution:€ 2.365,26
Brutto-Miete:€ 788,42
Betriebskosten (inkl. MwSt):€ 206,58
Mehrwertsteuer:€ 76,22
Monatliche Gesamtkosten:€ 788,42
Provision: Gemäß Erstauftraggeberprinzip bezahlt der Abgeber die Provision.




BESCHREIBUNG

** Tolle 2-Zimmer-Wohnung direkt am Stadtplatz 6 - Top 8

Diese sonnige 2-Zimmer-Wohnung befindet sich im 3. Obergeschoss, ohne Lift. Das Objekt ist mit hellen Parkettböden und einer ablösefreien Küche ausgestattet. Die großen Fenster lassen viel Tageslicht in die Wohnung und ermöglichen einen tollen Blick auf das Welser Innenstadtleben!

Raumaufteilung: Vorraum, Abstellraum, Bad/WC, Wohnküche, Schlafzimmer.

***Die Anmeldung des Hauptwohnsitzes ist erforderlich.

Der Immobilienmakler erklärt, dass er entgegen dem in der Immobilienwirtschaft üblichen Geschäftsgebrauch des Doppelmaklers einseitig nur für den Vermieter tätig ist.


Infrastruktur / Entfernungen

Gesundheit
Arzt <500m
Apotheke <500m
Klinik <1.000m
Krankenhaus <2.000m

Kinder & Schulen
Schule <500m
Kindergarten <1.000m
Universität <500m

Nahversorgung
Supermarkt <500m
Bäckerei <500m
Einkaufszentrum <3.000m

Sonstige
Bank <500m
Geldautomat <500m
Post <500m
Polizei <500m

Verkehr
Bus <500m
Autobahnanschluss <3.500m
Bahnhof <1.000m
Flughafen <3.000m

Angaben Entfernung Luftlinie / Quelle: OpenStreetMap

Kabel/SAT/TV: JA
Provision: Gemäß Erstauftraggeberprinzip bezahlt der Abgeber die Provision.


Alle Details anzeigen

KONTAKT






 

Lasse dich kostenlos vom Anbieter dieser Immobilie zurückrufen.







 


 
IMMOcontract Immobilien Vermittlung GmbH
Anna Valentina Blecha
Telefonnummer anzeigen Handy Bearbeiter: +43676841420465
 
Bitte dem Makler die FindMyHome.at - ID bekanntgeben: 5627679

Bewertungen dieses Anbieters
Netiquette

BEWERTUNGEN DIESES ANBIETERS

 
Netiquette
FINDMYHOME.AT
NETIQUETTE
Auch du kannst bewerten! 7 Tage nach deiner Anfrage erhältst du dafür von uns ein Bewertungsmail.
Alle Infos zu unseren Auszeichnungen und dem FINDMYHOME.AT Qualitätsprogramm findest du hier: Übersicht anzeigen


Du willst wissen, wie viel dein Umzug kosten wird?

Mach gleich den kostenlosen Preisvergleich und schau, welche seriösen Anbieter in deiner Region günstig deinen Umzug organisieren


ZUM UMZUGS-VERGLEICH
-->

MYHOME BLOG
SuchAgentin auf FindMyHome.at
Unterschiedlichen Rechtsthemen, köstliche Rezepte, neueste Design-Highlights, sowie aktuelle Technik-Tools für Ihr Eigenheim.


FINDMYHOME.AT SUCHAGENTIN
SuchAgentin auf FindMyHome.at
Hallo, soll ich dir ähnliche Immobilien kostenfrei per E-Mail schicken?


ÄHNLICHE IMMOBILIEN
Aehnliche Immobilie - Vorschaubild 1

Wohntraum in Wels: Großzügige Räume & viel Tageslicht in Cit... - Objektnr. 5606345

55,48 m² - 3.0 Zimmer
715.21 €
PLZ: 4600

Mehr anzeigen

Aehnliche Immobilie - Vorschaubild 2

** Tolle 2-Zimmer-Wohnung direkt am Stadtplatz 6 - Top 6... - Objektnr. 5606425

48,87 m² - 2.0 Zimmer
813.74 €
PLZ: 4600

Mehr anzeigen

Aehnliche Immobilie - Vorschaubild 3

Gemütliche 2-Zimmer Wohnung mit kleiner Terrasse am Stadtpla... - Objektnr. 5612789

70,05 m² - 2.0 Zimmer
916.3 €
PLZ: 4600

Mehr anzeigen

Durch die Nutzung unserer Seite erklären Sie sich mit der Verwendung von Cookies zur Verbesserung Ihres Online-Erlebnisses einverstanden. Detaillierte Informationen zu diesem und weiteren Themen erhalten Sie in unserer Datenschutzerklärung.