MEIN ERGEBNIS ANPASSEN

Am Langen Felde 52, 1220 Wien - Objektnr. 5626823

1220
Ort
€ 829,00
Gesamtkosten
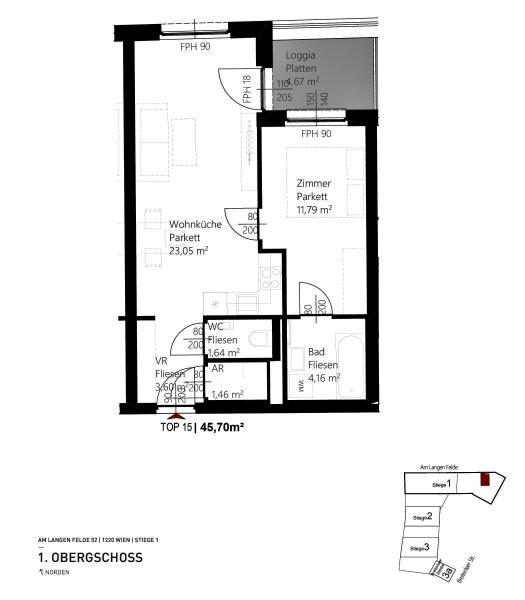
45,70 m²
Fläche
2.0
Zimmer

ECKDATEN
FindMyHome.at // Externe Immobilien-ID5626823 // 1240/233638
ImmobilienartWohnung - Miete
AnschriftAm langen Felde 52/1-15
1220 Wien
Stock1
Mietdauer5
Fläche45,70 m²
Zimmer2.0
Kaution:€ 2.490,00
Brutto-Miete:€ 829,00
Betriebskosten (inkl. MwSt):€ 123,56
Mehrwertsteuer:€ 75,36
Monatliche Gesamtkosten:€ 829,00
Provision: Gemäß Erstauftraggeberprinzip bezahlt der Abgeber die Provision.




BESCHREIBUNG

Am Langen Felde 52, 1220 Wien

Wohnbauprojekt Am Langen Felde 52 mit 88 1- bis 3-Zimmer-Wohnungen

 

Zur Anmietung stehen 1- bis 3-Zimmer-Wohnungen mit privaten Außenflächen Garten, Balkon, Terrasse und Loggia. Die insgesamt 88 Wohnungen zeichnen sich durch sehr viele unterschiedliche, durchdachte Grundrisse aus, so dass sowohl Singles als auch größere Familien geeigneten Raum zum Leben finden können. Die Wohnungsgrundrisse sind von kompakt bis großzügig geplant. 

Hier können Sie einen Rundgang durch die Musterwohnung unternehmen.

Jede Wohnung wird bezugsfertig mit einer hochwertigen Komplettküche mit Zanussi-Geräten inkl. Geschirrspüler und Mikrowelle übergeben. Die Küchen sind für jede Wohnung vorgegeben (bereits bestellt) und ersichtlich in der Visualisierung. Die Wohnungen in den obersten Geschoßen (immer letztes Geschoß) sind für eine optionale Kühlmöglichkeit vorbereitet, Rohinstallation vorhanden. Die Innen- und Außenteile samt Einreichung können durch den Mieter über eine Fachfirma fertig ausgebaut werden. Bitte beachten Sie die eingezeichneten Dachschrägen in den oberen Geschoßen auf den beigefügten Wohnungsplänen.

Jeder Wohnung ist im Kellergeschoß ein Kellerabteil zugeordnet. Das Stiegenhaus sowie alle Erschließungsflächen von den Haushaupteingängen bis zu den Dachgeschossen sind barrierefrei und natürlich belichtet. Kinderwagenraum und Müllraum befinden sich in unmittelbarer Nähe zum Hauptzugang, somit direkt an den Alltagswegen der Bewohner. 

In der Umgebung befindet sich eine große Anzahl an Geschäften des täglichen Bedarfs - z.B. das Einkaufszentrum K1 und auch Einkaufszentrum am Rennbahnweg -, Kindergarten, Schulen und zahlreiche Arztordinationen. Für eine öffentliche Anbindung sorgt die Straßenbahnlinie 26 nur wenige Meter entfernt, ebenso wie die Autobuslinien 22A und 24A. Beide stellen die direkte Verbindung zur U1 Station Kagraner Platz dar, welche man alternativ auch in 8 Gehminuten erreicht. 

Der Park an der Westseite des Projektgebiets HRACHOWINA NORD wird als Aktivitätszone für Alt- und Neu-Kagraner gestaltet und macht Spuren der alten Flusslandschaft lesbar 

Im Kellergeschoß befindet sich eine Tiefgarage mit insgesamt 45 PKW-Stellplätzen.

Bonitätsvorgabe: Die Gesamtmiete darf 40% Ihres Netto-Einkommens nicht übersteigen. Grundvoraussetzung sind ein aktives Arbeitsverhältnis (nachweislich mit Gehaltszetteln), Einkommensbescheide aus dem Vorjahr oder Nachweis zum Pensionsbezug.


Alle verfügbaren Mietwohnungen und Gewerbeflächen der Haring Group finden Sie auf unserer Immobilienseite unter www.haring-group.at 

Wir bitten bei Zusendung einer Anfrage um Angabe Ihrer Telefonnummer zur schnelleren Kontaktaufnahme durch unser Büro.

Wir weisen darauf hin, dass zwischen dem Vermittler und dem zu vermittelnden Dritten ein familiäres oder wirtschaftliches Naheverhältnis besteht.

Der Immobilienmakler erklärt, dass er entgegen dem in der Immobilienwirtschaft üblichen Geschäftsgebrauch des Doppelmaklers einseitig nur für den Vermieter tätig ist.


Infrastruktur / Entfernungen

Gesundheit
Arzt <400m
Apotheke <125m
Klinik <1.900m
Krankenhaus <3.375m

Kinder & Schulen
Schule <350m
Kindergarten <425m
Universität <1.775m
Höhere Schule <850m

Nahversorgung
Supermarkt <125m
Bäckerei <625m
Einkaufszentrum <800m

Sonstige
Geldautomat <650m
Bank <650m
Post <700m
Polizei <1.250m

Verkehr
Bus <100m
U-Bahn <775m
Straßenbahn <250m
Bahnhof <775m
Autobahnanschluss <950m

Angaben Entfernung Luftlinie / Quelle: OpenStreetMap

Barrierefrei: JA
Provision: Gemäß Erstauftraggeberprinzip bezahlt der Abgeber die Provision.


Alle Details anzeigen

KONTAKT






 

Lasse dich kostenlos vom Anbieter dieser Immobilie zurückrufen.







 


 
Haring Group Bauträger GmbH
Haring Immobilien Treuhand GmbH
Telefonnummer anzeigen Telefon Allgemein: +4312035700
 
Bitte dem Makler die FindMyHome.at - ID bekanntgeben: 5626823

Bewertungen dieses Anbieters
Netiquette
Freundlichkeit
77 %

BEWERTUNGEN DIESES ANBIETERS

 
Weiterempfehlung
WIRD GERNE

Freundlichkeit
BESONDERS
FREUNDLICH
Netiquette
FINDMYHOME
NETIQUETTE
Auch du kannst bewerten! 7 Tage nach deiner Anfrage erhältst du dafür von uns ein Bewertungsmail.
Alle Infos zu unseren Auszeichnungen und dem FINDMYHOME.AT Qualitätsprogramm findest du hier: Übersicht anzeigen


Du willst wissen, wie viel dein Umzug kosten wird?

Mach gleich den kostenlosen Preisvergleich und schau, welche seriösen Anbieter in deiner Region günstig deinen Umzug organisieren


ZUM UMZUGS-VERGLEICH
-->

MYHOME BLOG
SuchAgentin auf FindMyHome.at
Unterschiedlichen Rechtsthemen, köstliche Rezepte, neueste Design-Highlights, sowie aktuelle Technik-Tools für Ihr Eigenheim.


FINDMYHOME.AT SUCHAGENTIN
SuchAgentin auf FindMyHome.at
Hallo, soll ich dir ähnliche Immobilien kostenfrei per E-Mail schicken?


ÄHNLICHE IMMOBILIEN
Aehnliche Immobilie - Vorschaubild 1

Am Langen Felde 52, 1220 Wien - Objektnr. 5602028


50,03 m² - 1.0 Zimmer
949 €
PLZ: 1220

Mehr anzeigen

Aehnliche Immobilie - Vorschaubild 2

2-Zimmer-Dachterrassenwohnung inkl Komplettküche und Kellera... - Objektnr. 5620946

42,28 m² - 2.0 Zimmer
889 €
PLZ: 1220

Mehr anzeigen

Aehnliche Immobilie - Vorschaubild 3

Bertha-von-Suttner-Gasse 6, 1220 Wien / I3 - Objektnr. 5625955


44,45 m² - 2.0 Zimmer
899 €
PLZ: 1220

Mehr anzeigen

Durch die Nutzung unserer Seite erklären Sie sich mit der Verwendung von Cookies zur Verbesserung Ihres Online-Erlebnisses einverstanden. Detaillierte Informationen zu diesem und weiteren Themen erhalten Sie in unserer Datenschutzerklärung.