Licht, Luft & Lebensqualität Traumhafte 3-Zimmer-Wohnung mit Terrasse!
Urbaner Lifestyle trifft grüne Ruhe Ihr neues Zuhause mit Wow-Faktor. In einem exklusiven Wohnhaus mit nur vier Einheiten erwartet Sie diese traumhafte 3-Zimmer-Wohnung im 1. Obergeschoss, ein echtes Design-Highlight mit sonniger Terrasse, cleverer Raumaufteilung und herrlichem Grünblick. Mit 72 m² Wohnfläche, einer großzügigen Terrasse und zwei privaten Parkplätzen bietet diese Wohnung alles, was modernes Wohnen heute ausmacht, Komfort, Stil und Lebensqualität.
DIE WOHNUNG wird vom Verkäufer noch komplett gestrichen und die Möbel sind bereits entfernt!
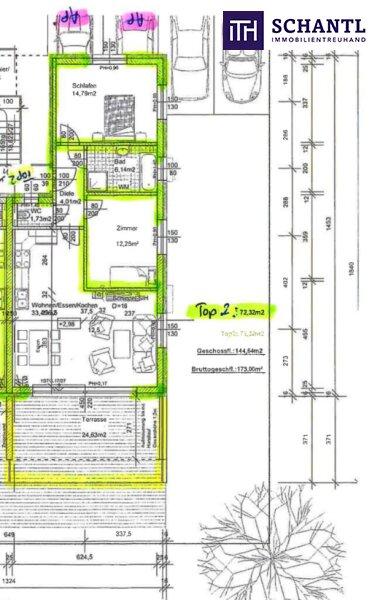
Fakten der Top 2:
- WFL von 72,32m²
- Hauptschlafzimmer mit 14,79 m²
- weiteres Schlafzimmer mit 12,25 m²
- helles Badezimmer mit Fenster, Dusche, Badewanne & Waschmaschinenanschluss
- separates WC mit Handwaschbecken
- einladende Diele mit 4,01 m²
- KFZ-Abstellplatz Nr.07 & Nr.11
- ein großzügiges Kellerabteil mit 14,25 m² bietet praktischen Stauraum. Für Ihren Komfort sind zwei KFZ-Abstellplätze (Nr. 07 & 11) im Eigentum inkludiert
- die monatlichen Kosten belaufen sich auf ca. € 370,00 netto inklusive Betriebs-, Heiz- und Warmwasserkosten sowie Rücklage
- Provision 3% zuzüglich UST
Highlights zur Wohnung Top 2:
- die Wohnung wurde bereits ausgeräumt und frisch gestrichen :-)
-
perfekte Raumaufteilung und großzügige Wohnfläche
-
die 72,32m² dieser Wohnung sind optimal aufgeteilt, was ein besonders komfortables und großzügiges Wohnen ermöglicht, der durchdachte Grundriss sorgt für helle und gut nutzbare Räume, die eine einladende Atmosphäre schaffen
-
ein Highlight der Wohnung ist die großzügige Terrasse, mit ungefähr 25 m² sie bietet genug Platz für gemütliche Abende im Freien, BBQs mit Freunden oder entspannte Stunden mit Blick ins Grüne, der ungestörte, idyllische Ausblick auf die umliegende Natur ist eine wahre Oase der Ruhe
-
das Badezimmer lässt keine Wünsche offen, es ist mit einer modernen Badewanne und einer separaten Dusche ausgestattet, was den Alltag komfortabel gestaltet und Ihnen die Möglichkeit bietet, nach einem langen Tag sowohl Entspannung als auch Funktionalität zu genießen
- die in der gesamten Wohnung installierte Fußbodenheizung sorgt für eine angenehme und gleichmäßige Wärme, besonders in den kühleren Monaten, sie verleiht dem Zuhause nicht nur ein gemütliches Wohngefühl, sondern bietet auch modernen Wohnkomfort auf höchstem Niveau
- zwei private Abstellplätze sind im KP inkludiert!
- ein weiterer Vorteil dieser Immobilie sind die zwei zur Wohnung gehörenden KFZ-Abstellplätze, sie bieten Ihnen und Ihren Gästen jederzeit bequeme Parkmöglichkeiten direkt vor der Haustür eine absolute Seltenheit in der heutigen Zeit
- zur Wohnung gehört außerdem ein außergewöhnlich großes Kellerabteil, extra viel Stauraum - mit 14,25m², hier finden Sie ausreichend Platz für Fahrräder, saisonale Gegenstände oder Hobbyzubehör, dieser großzügige Stauraum sorgt dafür, dass Ihr Wohnraum frei und offen bleibt, während Sie dennoch alles griffbereit haben
- die Lage der Wohnung kombiniert das Beste aus Stadt und Land, Sie wohnen ruhig und im Grünen, sind aber in wenigen Minuten in Graz oder beim beliebten Shoppingcenter Seiersberg, öffentliche Verkehrsmittel, Schulen, Kindergärten und Einkaufsmöglichkeiten sind alle in unmittelbarer Nähe und schnell erreichbar.
- die moderne Bauweise und die energieeffiziente Ausstattung machen die Wohnung nicht nur kostensparend, sondern auch zukunftssicher, niedrige Betriebskosten und ein nachhaltiger Umgang mit Ressourcen sind hier garantiert
- ideal für Paare, kleine Familien, oder als Investment
- diese Wohnung ist perfekt für Paare oder kleine Familien, die modernen Komfort schätzen und das Leben im Grünen suchen, aber auch für Investoren, die in eine gefragte Lage investieren möchten, die Kombination aus großzügiger Terrasse, moderner Ausstattung und hervorragender Anbindung an Graz macht diese Wohnung zu einem attraktiven Gesamtpaket
Worauf noch warten
Vereinbaren Sie noch heute eine Besichtigung oder mit uns! Sie wollen Ihre Immobilie verkaufen Dann sind Sie bei uns goldrichtig Wir sind gerne für Sie da und unterstützen Sie unverbindlich bei der Bewertung Ihrer Immobilie. Mit viel Sorgfalt stellen wir Ihnen alle wichtigen Informationen und Unterlagen zusammen, damit Sie die besten Entscheidungen treffen können. In Kooperation mit unserer SFI Vermögenstreuhand begleiten wir Sie bei der Verwirklichung Ihres Traumobjekts und unterstützen Sie beim nachhaltigen Vermögensaufbau. Mit unseren erfahrenen Experten sorgen wir dafür, dass Sie die besten Konditionen erhalten damit Ihre Träume Wirklichkeit werden!
www.schantl-ith.at in Kooperation mit sfi-invest.com
Die Angaben über das angebotene Objekt erfolgen mit der Sorgfalt eines ordentlichen Immobilienmaklers; für die Richtigkeit solcher Angaben, die auf Informationen der über das Objekt Verfügungsberechtigten beruhen, wird keine Gewähr geleistet!
Wir weisen darauf hin, dass zwischen dem Vermittler und dem zu vermittelnden Dritten ein familiäres oder wirtschaftliches Naheverhältnis besteht.
Der Vermittler ist als Doppelmakler tätig.
Infrastruktur / Entfernungen
Gesundheit
Arzt <1.000m
Apotheke <2.750m
Klinik <8.750m
Krankenhaus <6.500m
Kinder & Schulen
Schule <1.000m
Kindergarten <1.000m
Universität <7.750m
Höhere Schule <8.500m
Nahversorgung
Supermarkt <250m
Bäckerei <2.500m
Einkaufszentrum <4.500m
Sonstige
Geldautomat <1.500m
Bank <1.500m
Polizei <1.250m
Post <3.000m
Verkehr
Bus <250m
Straßenbahn <5.250m
Autobahnanschluss <2.750m
Bahnhof <1.250m
Flughafen <1.500m
Angaben Entfernung Luftlinie / Quelle: OpenStreetMap
Kabel/SAT/TV: JA
Provision: 3% des Kaufpreises zzgl. 20% USt.