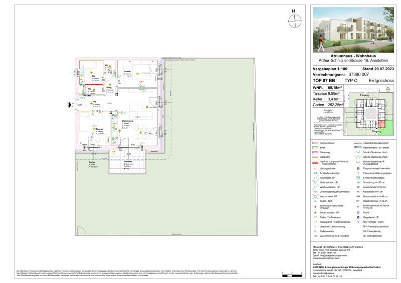
3-Zimmer-Wohnung mit Terrasse und Garten, Top 7 - Objektnr. 5626070
ECKDATEN
BESCHREIBUNG
KONTAKT
Lasse dich kostenlos vom Anbieter dieser Immobilie zurückrufen.
EGW Erste gemeinnützige Wohnungsgesellschaft mbH
Ana Newekla
Ana Newekla
Telefonnummer anzeigen
Telefon Allgemein: +4315451567124
Bitte dem Makler die FindMyHome.at - ID bekanntgeben: 5626070
Bitte dem Makler die FindMyHome.at - ID bekanntgeben: 5626070
BEWERTUNGEN DIESES ANBIETERS
Qualitätsmakler
2015, 2020
2015, 2020
ø 24h ANTWORT
WIRD SEHR GERNE
WEITEREMPFOHLEN
WEITEREMPFOHLEN
BESONDERS
FREUNDLICH
FREUNDLICH
FINDMYHOME.AT
NETIQUETTE
NETIQUETTE
Auch du kannst bewerten! 7 Tage nach deiner Anfrage erhältst du dafür von uns ein Bewertungsmail.
Alle Infos zu unseren Auszeichnungen und dem FINDMYHOME.AT Qualitätsprogramm findest du hier: Übersicht anzeigen
Alle Infos zu unseren Auszeichnungen und dem FINDMYHOME.AT Qualitätsprogramm findest du hier: Übersicht anzeigen
Du willst wissen, wie viel dein Umzug kosten wird?
Mach gleich den kostenlosen Preisvergleich und schau, welche seriösen Anbieter in deiner Region günstig deinen Umzug organisieren
ZUM UMZUGS-VERGLEICH












