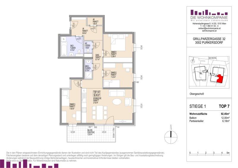
3 Zimmer und 4 Zimmer Wohnungen mit Terrasse / Garten BEZUGSFERTIG und PROVISIONSFREI in sonniger Waldrand Ruhelage - Objektnr. 5626029
WEITERE MEDIEN
ECKDATEN
BESCHREIBUNG
KONTAKT
Lasse dich kostenlos vom Anbieter dieser Immobilie zurückrufen.
DWK Die Wohnkompanie
Andrea Eggenberger-Wengust
Andrea Eggenberger-Wengust
Telefonnummer anzeigen
Telefon Allgemein: +431890510450
Handy Bearbeiter: +4366488165135
Bitte dem Makler die FindMyHome.at - ID bekanntgeben: 5626029
Handy Bearbeiter: +4366488165135
Bitte dem Makler die FindMyHome.at - ID bekanntgeben: 5626029
BEWERTUNGEN DIESES ANBIETERS
ø 24h ANTWORT
WIRD SEHR GERNE
WEITEREMPFOHLEN
WEITEREMPFOHLEN
BESONDERS
FREUNDLICH
FREUNDLICH
Auch du kannst bewerten! 7 Tage nach deiner Anfrage erhältst du dafür von uns ein Bewertungsmail.
Alle Infos zu unseren Auszeichnungen und dem FINDMYHOME.AT Qualitätsprogramm findest du hier: Übersicht anzeigen
Alle Infos zu unseren Auszeichnungen und dem FINDMYHOME.AT Qualitätsprogramm findest du hier: Übersicht anzeigen
FINANZIERUNG
Du willst wissen, wie viel dein Umzug kosten wird?
Mach gleich den kostenlosen Preisvergleich und schau, welche seriösen Anbieter in deiner Region günstig deinen Umzug organisieren
ZUM UMZUGS-VERGLEICH




































