Zum Verkauf gelangt hier ein Einfamilienhaus mit 7 Zimmern in einer ruhigen Gegend von Gablitz!
Das Haus wurde im Jahre 1968 fertiggestellt und ist noch gut im Schuss, bräuchte aber eine Modernisierung.
Die Wohnraumaufteilung ist gut gelungen, da alles zentral begehbar ist. Insgesamt stehen Ihnen 7 Zimmer zur Verfügung.
Die Wohnräume sind mit Parkett verlegt, die Sanitärrräume verfliest. Zum Teil sind auch Kunststoffböden verlegt an den Gängen.
Das Einfamilienhaus ist auf drei Ebenen gebaut(Erdgeschoss, Kellergeschoss, Obergeschoss) und hat ca. 160 m2 an Wohnfläche oder 219 m2 Nutzfläche (inkl. Keller / Wohnkeller).
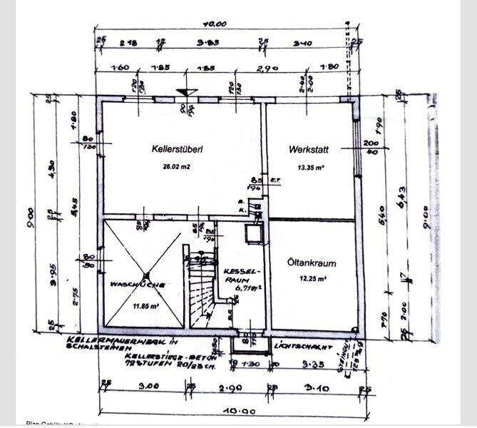
Die unterste Ebene (Gartengeschoss) ist zum Garten gelegen und hat auch einen Zugang über den Garten. Hier befindet sich die geplante Waschküche (ideal als Sauna) mit Wasseranschlüssen für ein Bad, weiters der Öltankraum und ein Kesselraum, Kellerstüberl, und eine Werkstatt.
Im Erdgeschoss befindet sich die separat angelegte Küche, ein separates WC gleich beim Eingang, ein großes Wohnzimmer mit Zugang zum Balkon der in der herrlichen Garten blickt, ein Schlafzimmer, ein Windfang und das Vorzimmer, sowie eine schöne Holztreppe, welche nach oben und unten führt. Die Küche beinhaltet alle Geräte des täglichen bedarfs, ist jedoch schon eine ältere. Die Fenster sind zweifach verglast. Im Kellergeschoss sind Gitter an den Fenstern angebracht.
Im oberen Bereich befinden sich drei weitere Schlafzimmer, eines mit Einbauschrank, sowie ein Badezimmer mit Badewanne und WC und ein weiterer Abstellraum.
Es wurden immer wieder Investitionen getätigt zur Instandhaltung und Sanierung.
Zuletzt wurde ein neuer Gasbrennwertkessel im Jahre 2020 installiert. Früher wurde auf Öl geheizt.
Der Garten ist sehr gepflegt und mit Altbaumbestand. Man kann links vom Haus entlang auch zum Garten kommen. Der Garten ist eben und fast uneinsichtig und hell.
Vor dem Haus ist ein Vorgarten und man hat ein paar Stufen zum Haus zu gehen. Beim Eingang wurde in praktischer Windfang dazugebaut.
Rechts vom Haus befintet sich die Garage. Garage mit Vorratskeller.
Das Dach hat Ausbaupotential. Hier könnten Sie zusätzliche 50 m2 an Nutzfläche schaffen.
Ausstattungsbeschreibung:
Baujahr ca. 1968, voll unterkellert, Garage mit Vorratskeller, Grundstücksgröße: ca. 655 m²
Nutzfläche: ca. 210 m²: 7 Zimmer, separate Küche, separates WC, ein weiteres Bad mit WC, ein Bad mit Dusche, 2 Vorräume, 2 Abstellräume, eine Werkstatt
Parkettboden verklebt auf Estrich mit Trittschalldämmung.
Bad, Dusche, WC: keramischer Fliesenbelag auf Estrich mit Trittschalldämmung.
Balkone: Estrich bemalt.
Terrassen: Steinplatten.
Fenster und Balkontüren: Holz. 2-fachverglasung. Die Balkontüren sind als Drehtüren ausgeführt mit umlaufender Gummidichtung. Innenjalousien.
Hauseingangstüre: AT200 Aluminiumtür, schokoladebraun, Mehrfachverriegelung, 2-fach 24mm besch. Strukturglas, 3-Kammer-Rahmenprofil und Schaumisolierkern für sehr hohe Wärmedämmung.
Innentüren: Zargen braun Naturholz, Vollbautürblatt beidseitig Naturholz, teilweise mit Glas.
Sämtliche Beschläge in eloxierter Ausführung.
Warmwasserversorgung und Heizung: zentral, Gasbrennwertkessel (BJ 2020).
Dunstabzugshaube in der Küche. Sanitärinstallation und Küche
Bad: Emaillierte Einbaubadewanne, Ab- und Überlaufgarnitur und Mischbatterie sowie Handbrause mit Brausestange. Waschtischanlage aus Kristallporzellan.
Dusche: Duschtasse mit Duschwänden, Waschtisch aus Kristallporzellan.
WC: Flachspülklosett mit Spülkasten, Sitzbrett mit Deckel.
Küche: E-Herd, Ceranfeld, Dunstabzugshaube, Kühlschrank mit Tiefkühlfach, Mikrowelle, Spülbecken.
Schwachstrominstallation: Klingelanlage mit elektrischem Türöffner, Telefonverkabelung inkl. Telefondose im Wohnzimmer, Anschluss an Kabelfernsehen für TV und Radio.
Lage und Anbindung:
Die Anbindung ist sehr gut. Auch mit dem Auto gelangen Sie schnell auf die Autobahn in Richtung St. Pölten bzw. nach Wien über die Wiener Straße.
Erholung ist hier groß angesagt, da Ihnen der Wienerwald zu Füssen steht. In nur wenigen Gehminuten sind Sie im Grünen und genießen die Natur.
Konditionen:
Kaufpreis: € 575.000,
Provision: 3 % vom Kaufpreis + 20 % MwSt.
Grundbuchseintragungskosten: 1,1 %
Grunderwerbssteuer: 3,5 %
Kaufvertragserrichtung inkl. Treuhand: i.d.R.: 1,2 % + 20 % MwSt. + Barauslagen + Beglaubigungen
Kontakt:
Bitte beachten Sie, dass wir aufgrund der Nachweispflicht gegenüber dem Eigentümer nur Anfragen mit vollständiger Angabe der Anschrift bearbeiten können.
Wir senden Ihnen gerne weitere und detaillierte Beschreibungen, sowie Besichtigungstermine zu, sobald wir Ihre Anfrage erhalten haben.
Wir bitten Sie daher um eine Email Anfrage an:
Noch nichts gefunden Wir informieren Sie über geeignete Immobilienangebote noch vor allen anderen.
Legen Sie jetzt Ihren individuellen Suchagenten unter folgendem Link an. Wir schicken Ihnen passende Immobilien exklusiv vorab zu.
Suchagent anlegen - https://pr-immobilien-real-estate.service.immo/registrieren/de
Hinweis gemäß Energieausweisvorlagegesetz: Ein Energieausweis wurde vom Eigentümer bzw. Verkäufer, nach unserer Aufklärung über die generell geltende Vorlagepflicht, sowie Aufforderung zu seiner Erstellung noch nicht vorgelegt. Daher gilt zumindest eine dem Alter und der Art des Gebäudes entsprechende Gesamtenergieeffizienz als vereinbart. Wir übernehmen keinerlei Gewähr oder Haftung für die tatsächliche Energieeffizienz der angebotenen Immobilie.
Der Vermittler ist als Doppelmakler tätig.
Infrastruktur / Entfernungen
Gesundheit
Arzt <2.000m
Apotheke <2.000m
Klinik <9.500m
Kinder & Schulen
Schule <2.000m
Kindergarten <500m
Universität <8.000m
Nahversorgung
Supermarkt <1.000m
Bäckerei <2.500m
Einkaufszentrum <7.000m
Sonstige
Bank <2.500m
Geldautomat <2.500m
Post <2.000m
Polizei <2.000m
Verkehr
Bus <500m
Bahnhof <5.000m
Straßenbahn <10.000m
Autobahnanschluss <7.500m
Flughafen <10.000m
Angaben Entfernung Luftlinie / Quelle: OpenStreetMap
Klimaanlage: JA
Gartennutzung: JA
Kabel/SAT/TV: JA
Provision: 3% des Kaufpreises zzgl. 20% USt.