MEIN ERGEBNIS ANPASSEN

Erstbezugs-Maisonetten-Traum in Währing- mit großzügiger Dachterrasse! - Objektnr. 5625698


ökologisch beheizt
1180
Ort
101,31 m²
Fläche
3.0
Zimmer

ECKDATEN
FindMyHome.at // Externe Immobilien-ID5625698 // 6349
ImmobilienartEigentum
Anschrift1180 Wien
Befeuerung
Fernwärme
Stock2
Geschosse4
Fläche101,31 m²
Terrassen2 (35,00 m²)
Zimmer3.0
Bad1
WC2
 Abstellraum
Kaufpreis:€ 999.000,00
Ratenzahlung:Finanzierungsmöglichkeiten für diese Immobilie anzeigen
Provision: 3% des Kaufpreises zzgl. 20% USt.







BESCHREIBUNG

Erstbezugs-Maisonetten-Traum in Währing- mit großzügiger Dachterrasse!

Maisonetten Traum mit Dachterrasse

In einer der exklusivsten Wohnlagen Währings entsteht ein außergewöhnliches Wohnprojekt, das den zeitlosen Charme eines klassischen Wiener Altbaus mit der klaren Eleganz neu konzipierter Dachgeschoss-Maisonetten vereint. Historische Bausubstanz trifft auf moderne Architektur und schafft ein Ensemble, das höchsten Ansprüchen an Ästhetik, Komfort und Funktionalität gerecht wird.

Die Wohnungen beeindrucken durch eine Ausstattung auf höchstem Niveau: edle Materialien, durchdachte Details und ein Design, das Stil und Wohnqualität harmonisch verbindet. Großzügige Terrassen eröffnen faszinierende Ausblicke über die Dächer Wiens und erweitern den Wohnraum um private Rückzugsorte mit besonderem Flair.

Dieses Projekt richtet sich an Menschen mit Sinn für das Außergewöhnliche an jene, die Tradition und Innovation, Ruhe und Urbanität in perfekter Balance schätzen.

Die hier angebotene Maisonettewohnung besticht durch ihre lichtdurchflutete Architektur und ein offenes Raumkonzept über zwei Ebenen. Bereits beim Betreten entfaltet sich ein Gefühl von Weite und Klarheit ein Zuhause, das moderne Wohnkultur in ihrer schönsten Form verkörpert.

Highlights

  • Maisonettewohnung über zwei Dachgeschosse
  • Großzügige Terrasse
  • Offener Wohn-/Essbereich
  • Hochwertige Materialien
  • Erstbezug
  • Fußbodenheizung & Klimaanlage
  • Lift & Kellerabteil
  • Ein PKW-Stellplatz zum Preis von EUR 60.000
  • Fahrradabstellplatz
  • Hochwertig sanierte Allgemeinflächen
  • Barrierefreier Zugang

 

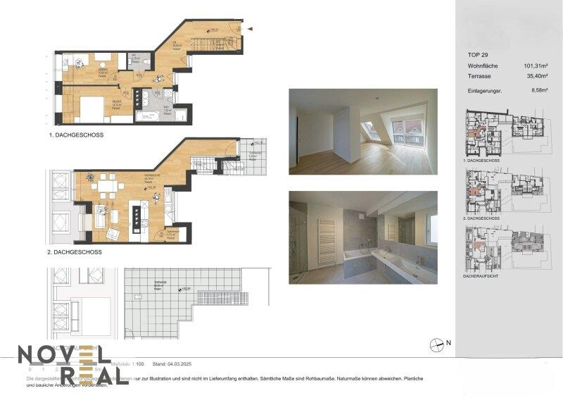
Detaillierte Objektbeschreibung Top 29

3. Dachgeschoss- großzügige Dachterrasse mit Weitblick!

2. Dachgeschoss Wohnbereich mit Terrasse

Wohnbereich

Das Herzstück der Wohnung. Offen gestalteter Wohn-, Ess- und Kochbereich mit großflächigen Dachflächenfenstern, die für viel Tageslicht und ein luftiges Raumgefühl sorgen.

Dachterrasse

Die großzügige Terrasse ist direkt vom Wohnbereich aus zugänglich und bietet einen herrlichen Blick über die Dächer von Währing. Ideal für Lounge-Möbel, Outdoor-Dining oder Begrünung. Ein echtes Highlight für Sonnenliebhaber und Stadtgenießer.

 

Abstellraum

Separat gelegen, bietet der Abstellraum ausreichend Platz für Haushaltsgeräte, Sportausrüstung oder saisonale Gegenstände.

Untere Ebene

1. Dachgeschoss Privater Rückzugsbereich

Vorraum

Zentraler Eingangsbereich mit eleganter Linienführung und Platz für Garderobe oder Einbauschränke.

Zimmer 1  

Ideal als Hauptschlafzimmer. Die ruhige Lage, klare Raumgeometrie und die Dachschräge schaffen eine behagliche Atmosphäre bei voller Nutzbarkeit.

Zimmer 2  

Perfekt als Kinder-, Gäste- oder Arbeitszimmer. Lichtdurchflutet und funktional geschnitten.

Badezimmer  

Hochwertig ausgestattet mit Badewanne, Doppelwaschtisch und stilvollen Fliesen. Großzügig und komfortabel ideal für den täglichen Wellnessmoment.

WC

Separates WC für mehr Komfort

Lage und Infrastruktur:

Das Objekt liegt im 18. Bezirk (Währing) in Wien ein zentraler, beliebter Wohnbezirk im Norden der Stadt. Die Adresse gehört zu einem klassischen Stilaltbauquartier mit typischer Wiener Gründerzeit-Bebauung. Die Umgebung gehört zum Kutschker Markt-Gebiet mit vielen Geschäften, Cafés und Wohnhäusern.

Öffentliche Verkehrsmittel (Wiener Linien & ÖBB):

  • Straßenbahnlinien:40, 41, 42
  • U-Bahn: U6 ist fußläufig erreichbar
  • Bus & S-Bahn: Linien wie 10A, 37A und die Schnellbahn S45 ergänzen das Angebot.

Einkaufen & Versorgung

  • Supermärkte wie BILLA, SPAR, PENNY, Hofer und Drogerien
  • Wochenmarkt Kutschker Markt mit frischen Lebensmitteln
  • Cafés, Bäckereien, Restaurants und kleiner Einzelhandel zu Fuß erreichbar

Bildung & Soziales

  • Kindergärten, Volksschulen und weiterführende Schulen im Bezirk
  • Ärzte, Apotheken und diverse soziale Dienste fußläufig
  • Parkanlagen und Grünflächen

Natur & Entspannung

Türkenschanzpark

  • Einer der schönsten Parks Wiens
  • Große Wiesen, Teiche, Aussichtspunkte, Spielplätze
  • Perfekt für Spaziergänge, Joggen, Picknicks

Pötzleinsdorfer Schlosspark

  • Landschaftspark mit Waldcharakter
  • Ideal für längere Spaziergänge, Laufen, Hunde
  • Großer Spielplatz & Tiergehege

Währinger Park

  • Ruhiger Stadtpark
  • Sitzgelegenheiten, Spielplatz, viel Grün

Kutschkermarkt

  • Regionale Produkte, Blumen, Streetfood

 

Aus rechtlichen Gründen und aufgrund der großen Nachfragen bitten wir um Verständnis, dass wir nur Anfragen per Mail beantworten, wenn Sie uns Ihren vollständigen Namen samt Mailadresse und Mobilnummer bekanntgeben.

Alle Angaben basieren alleinig auf Informationen, die uns von unserem Auftraggeber übermittelt wurden. Trotz aller Sorgfalt können wir für die Richtigkeit, Vollständigkeit und Aktualität dieser Angaben keine Gewähr übernehmen. Jegliche Weitergabe der übermittelten Daten an Dritte ist nicht gestattet. Der Maklervertrag kommt durch schriftliche Vereinbarung oder Inanspruchnahme unserer Maklertätigkeit zustande. Der Makler kann als Doppelmakler tätig werden. Sollte das von uns nachgewiesene Objekt bereits bekannt sein, teilen Sie uns dies bitte unverzüglich mit.

Die Maklergebühr ist ausschließlich bei Zustandekommen eines gültigen Rechtsgeschäfts fällig und vom Mieter/Vermieter an Novel Real Immobilien GmbH zu zahlen. Es wird ausdrücklich auf die Nebenkostenübersicht hingewiesen. Bei den Visualisierungen und Abbildungen der Immobilie (insbesondere von Inneneinrichtungen) kann es sich um Symbolfotos bzw. fototechnisch optimierte Fotos handeln. Hiermit weisen wir auf das Bestehen eines familiären und/oder wirtschaftlichen Naheverhältnisses zum Vermieter/Verkäufer hin. 

Für die Vereinbarung eines Termins kontaktieren Sie Frau Vassilena Valkova telefonisch unter +43 650 58 70 011 oder per E-Mail: vv@novel-real.at.

 

 


Infrastruktur / Entfernungen

Gesundheit
Arzt <500m
Apotheke <500m
Klinik <500m
Krankenhaus <500m

Kinder & Schulen
Schule <500m
Kindergarten <500m
Universität <500m
Höhere Schule <500m

Nahversorgung
Supermarkt <500m
Bäckerei <500m
Einkaufszentrum <1.500m

Sonstige
Geldautomat <500m
Bank <500m
Post <500m
Polizei <1.000m

Verkehr
Bus <500m
U-Bahn <1.000m
Straßenbahn <500m
Bahnhof <1.000m
Autobahnanschluss <2.500m

Angaben Entfernung Luftlinie / Quelle: OpenStreetMap

Klimaanlage: JA
Provision: 3% des Kaufpreises zzgl. 20% USt.


Alle Details anzeigen

KONTAKT






 

Lasse dich kostenlos vom Anbieter dieser Immobilie zurückrufen.







 


 
Novel Real Immobilien GmbH
Vassilena Valkova
Telefonnummer anzeigen Telefon Allgemein: +43136140140
Handy Bearbeiter: +436505870011
 
Bitte dem Makler die FindMyHome.at - ID bekanntgeben: 5625698

Bewertungen dieses Anbieters
Qualitätsmakler
Qualitätsmakler:
2019,
Netiquette
Freundlichkeit
81 %

BEWERTUNGEN DIESES ANBIETERS

 
Qualit�tsmakler
Qualitätsmakler
2019
Antwortzeit
ø 48h ANTWORT
Weiterempfehlung
WIRD GERNE

Freundlichkeit
BESONDERS
FREUNDLICH
Netiquette
FINDMYHOME
NETIQUETTE
Auch du kannst bewerten! 7 Tage nach deiner Anfrage erhältst du dafür von uns ein Bewertungsmail.
Alle Infos zu unseren Auszeichnungen und dem FINDMYHOME.AT Qualitätsprogramm findest du hier: Übersicht anzeigen

FINANZIERUNG
?>

Du willst wissen, wie viel dein Umzug kosten wird?

Mach gleich den kostenlosen Preisvergleich und schau, welche seriösen Anbieter in deiner Region günstig deinen Umzug organisieren


ZUM UMZUGS-VERGLEICH
-->

MYHOME BLOG
SuchAgentin auf FindMyHome.at
Unterschiedlichen Rechtsthemen, köstliche Rezepte, neueste Design-Highlights, sowie aktuelle Technik-Tools für Ihr Eigenheim.


FINDMYHOME.AT SUCHAGENTIN
SuchAgentin auf FindMyHome.at
Hallo, soll ich dir ähnliche Immobilien kostenfrei per E-Mail schicken?


ÄHNLICHE IMMOBILIEN
Aehnliche Immobilie - Vorschaubild 1

Heller 4-Zimmer Erstbezug mit Terrasse, Nähe Kutschkermarkt... - Objektnr. 5591192

106,13 m² - 4.0 Zimmer
943000 €
PLZ: 1180

Mehr anzeigen

Aehnliche Immobilie - Vorschaubild 2

Erstbezugs-Maisonette in Währing - luxuriös wohnen über den ... - Objektnr. 5620744

95,60 m² - 2.0 Zimmer
990000 €
PLZ: 1180

Mehr anzeigen

Aehnliche Immobilie - Vorschaubild 3

Heller 3-Zimmer Erstbezug mit Terrasse, Nähe Kutschkermarkt... - Objektnr. 5560963

95,96 m² - 3.0 Zimmer
825000 €
PLZ: 1180

Mehr anzeigen

Durch die Nutzung unserer Seite erklären Sie sich mit der Verwendung von Cookies zur Verbesserung Ihres Online-Erlebnisses einverstanden. Detaillierte Informationen zu diesem und weiteren Themen erhalten Sie in unserer Datenschutzerklärung.