MEIN ERGEBNIS ANPASSEN

BEIM DONAUUFER: Smarte Investition - 2-Zimmer-Erstbezug in gefragter Lage - Objektnr. 5625096


ökologisch beheizt
1210
Ort
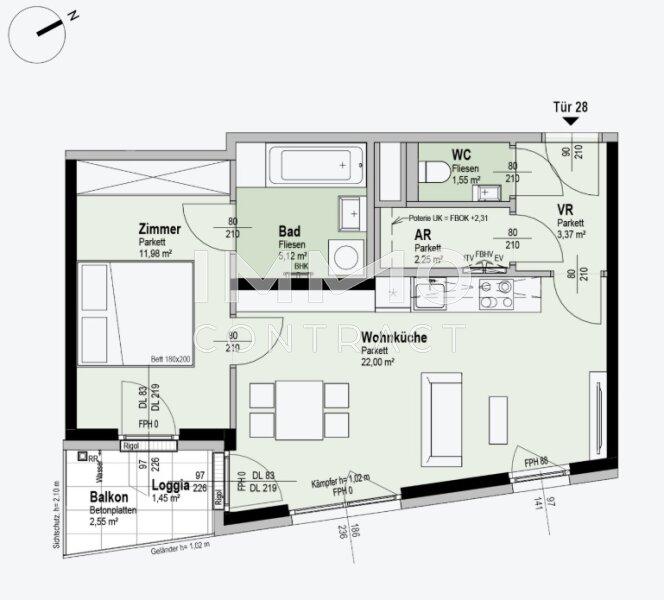
47,72 m²
Fläche
2.0
Zimmer

ECKDATEN
FindMyHome.at // Externe Immobilien-ID5625096 // 1939/216513
ImmobilienartEigentum
Anschrift1210 Wien
Baujahr2023
Befeuerung
Fernwärme
Stock4
Geschosse7
Fläche47,72 m²
Zimmer2.0
Bad1
WC1
 Abstellraum
Kaufpreis:€ 320.200,00
Ratenzahlung:Finanzierungsmöglichkeiten für diese Immobilie anzeigen
Provision: 3% des Kaufpreises zzgl. 20% USt.







BESCHREIBUNG

BEIM DONAUUFER: Smarte Investition - 2-Zimmer-Erstbezug in gefragter Lage

Bezugsfertiges Wohnen nahe der Alten Donau 

Die Vorsorgewohnungen im Projekt BEIM DONAUUFER bieten eine attraktive Möglichkeit, heute schon an morgen zu denken. Investieren Sie in eine zukunftssichere Immobilie in attraktiver Lage und profitieren Sie von unserem sorgenfreien Rundum-Service von der Beratung und Vermittlung über Finanzierung durch Kooperationspartner bis hin zur Vermietung. So sichern Sie sich nicht nur wertbeständigen Wohnraum, sondern auch laufende Mieteinnahmen von Anfang an.

Das Projekt ist bereits fertiggestellt und sofort beziehbar. Nur wenige Gehminuten vom Ufer der Alten Donau entfernt, vereint das Projekt naturnahe Erholung, zeitgemäße Architektur und eine ausgezeichnete Anbindung.

Die 92 hochwertigen Eigentumswohnungen, verteilt auf zwei Stiegen, bieten durchdachte Grundrisse, helle Räume und vielfältige Wohnungsgrößen vom kompakten Studio bis zur großzügigen Vierzimmer-Familienwohnung. Freiflächen wie Loggien, Balkone, Terrassen oder Eigengärten erweitern den Wohnraum ins Freie und bieten private Rückzugsorte mit hoher Lebensqualität. 

BEIM DONAUUFER steht für nachhaltiges Wohnen mit Zukunft. Das Gebäude entspricht der Energieklasse A, gilt damit als Niedrigenergiehaus und wurde DGNB Gold zertifiziert. Die energieeffiziente Bauweise, angenehme Fußbodenheizung mittels Fernwärme, Photovoltaikanlage am Dach sowie langlebige Qualitätsmaterialien aus Österreich sorgen für ein verantwortungsbewusstes Wohnkonzept und langfristige Wertbeständigkeit attraktiv für Eigennutzer ebenso wie für Anleger.

Projekthighlits im Überblick 

  • Erstbezug - bereits fertiggestellt und sofort bezugsbereit
  • Private Freiflächen mit Wasseranschlüssen (Loggia, Balkon, Terrasse oder Eigengarten)
  • Eichenparkettböden aus österreichischer Produktion
  • Hochwertige Feinsteinfliesen und Markensanitäranlagen (Dornbracht, Laufen "pro")
  • Angenehme Fußbodenheizung mittels Fernwärme
  • Photovoltaikanlage für Allgemeinflächen
  • Außenliegender, elektrischer Sonnenschutz
  • Klimatisierung im Dachgeschoß
  • Videogegensprechanlage
  • Paketboxanlage und digitales Schwarzes Brett
  • Zwei Stiegenhäuser mit moderner Aufzugsanlage
  • Hauseigene Tiefgarage mit 41 PKW-Stellplätzen (inkl. Vorbereitung für E-Ladestationen) sowie Motorradabstellplätzen
  • Großzügiger Gemeinschaftsraum mit Garten, Küche, Spiel- und Freizeitbereichen
  • Kinderwagen- und Fahrradraum, Einlagerungsräume zu jeder Wohnung
  • Nachhaltige Bauweise Energieklasse A / Niedrigenergiehaus, DGNB Gold zertifiziert
  • Gerne übernehmen wir für Sie die Erst- und auch Folgevermietung

 

Bei dem angegebenen Kaufpreis handelt es sich um den Anlegerpreis. Der korrespondierende Eigennutzerpreis beträgt EUR 348.100,-.

Bei Interesse oder für die Vereinbarung eines Besichtigungstermins kontaktieren Sie mich jederzeit gerne unter:

Tel: +43 664 8427 202, Mail: 

Wir weisen darauf hin, dass zwischen dem Vermittler und dem zu vermittelnden Dritten ein familiäres oder wirtschaftliches Naheverhältnis besteht.

Der Vermittler ist als Doppelmakler tätig.


Infrastruktur / Entfernungen

Gesundheit
Arzt <500m
Apotheke <500m
Klinik <500m
Krankenhaus <1.500m

Kinder & Schulen
Schule <500m
Kindergarten <500m
Universität <500m
Höhere Schule <500m

Nahversorgung
Supermarkt <500m
Bäckerei <500m
Einkaufszentrum <500m

Sonstige
Geldautomat <500m
Bank <500m
Post <500m
Polizei <1.000m

Verkehr
Bus <500m
U-Bahn <500m
Straßenbahn <500m
Bahnhof <500m
Autobahnanschluss <1.000m

Angaben Entfernung Luftlinie / Quelle: OpenStreetMap

Rollstuhlgerecht: JA
Barrierefrei: JA
Provision: 3% des Kaufpreises zzgl. 20% USt.


Alle Details anzeigen

KONTAKT






 

Lasse dich kostenlos vom Anbieter dieser Immobilie zurückrufen.







 


 
IMMOcontract Immobilien Vermittlung GmbH
Tong Xu, BA
Telefonnummer anzeigen Telefon Allgemein: +436648427202
Handy Bearbeiter: +436648427202
 
Bitte dem Makler die FindMyHome.at - ID bekanntgeben: 5625096

Bewertungen dieses Anbieters
Netiquette

BEWERTUNGEN DIESES ANBIETERS

 
Netiquette
FINDMYHOME.AT
NETIQUETTE
Auch du kannst bewerten! 7 Tage nach deiner Anfrage erhältst du dafür von uns ein Bewertungsmail.
Alle Infos zu unseren Auszeichnungen und dem FINDMYHOME.AT Qualitätsprogramm findest du hier: Übersicht anzeigen

FINANZIERUNG
?>

Du willst wissen, wie viel dein Umzug kosten wird?

Mach gleich den kostenlosen Preisvergleich und schau, welche seriösen Anbieter in deiner Region günstig deinen Umzug organisieren


ZUM UMZUGS-VERGLEICH
-->

MYHOME BLOG
SuchAgentin auf FindMyHome.at
Unterschiedlichen Rechtsthemen, köstliche Rezepte, neueste Design-Highlights, sowie aktuelle Technik-Tools für Ihr Eigenheim.


FINDMYHOME.AT SUCHAGENTIN
SuchAgentin auf FindMyHome.at
Hallo, soll ich dir ähnliche Immobilien kostenfrei per E-Mail schicken?


ÄHNLICHE IMMOBILIEN
Aehnliche Immobilie - Vorschaubild 1

"DONAU PERLE" EINZIGARTIGE 2 ZIMMER MIT LOGGIA, TERRASSE UND... - Objektnr. 5536238

56,44 m² - 2.0 Zimmer
369000 €
PLZ: 1210

Mehr anzeigen

Aehnliche Immobilie - Vorschaubild 2

Großzügige Gartenwohnung I Erstbezug I Fertigstellung Q1 202... - Objektnr. 5613081

41,02 m² - 2.0 Zimmer
349000 €
PLZ: 1210

Mehr anzeigen

Aehnliche Immobilie - Vorschaubild 3

2-Zimmer I Mit Garten I Erstbezug I Fertigstellung Q1 2027 I... - Objektnr. 5613078

44,71 m² - 2.0 Zimmer
259000 €
PLZ: 1210

Mehr anzeigen

Durch die Nutzung unserer Seite erklären Sie sich mit der Verwendung von Cookies zur Verbesserung Ihres Online-Erlebnisses einverstanden. Detaillierte Informationen zu diesem und weiteren Themen erhalten Sie in unserer Datenschutzerklärung.