MEIN ERGEBNIS ANPASSEN

Historischer Flair in exklusiver Lage: 2-Zimmer-Altbau mit Potenzial - Objektnr. 5624905

  • 1
  • 2
  • 3
  • 4
  • 5
  • 6
  • 7
  • 8
  • 9
  • 10
  • Top 6
  • öblichgasse 9_70dpi
  • Löblhgasse 9_70dpi
  • Löblichgae 9_70dpi
  • Löble 9_70dpi
  • Löblichgass 9_70dpi
  • Löblichgasse 9_
  • Lse 9_70dpi
  • asse 9_70dpi
1090
Ort
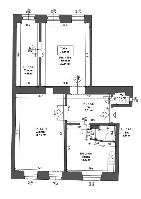
79,10 m²
Fläche
2
Zimmer

ECKDATEN
FindMyHome.at // Externe Immobilien-ID5624905 // 101/18650
ImmobilienartWohnung - Eigentum
AnschriftLöblichgasse
1090 Wien
Alt- oder NeubauAltbau
NäheWähringer Straße
Stock1
Beziehbar absofort
Fläche79,10 m²
Zimmer2
Bad1
WC1
Kaufpreis:€ 480.000,00
Ratenzahlung:Finanzierungsmöglichkeiten für diese Immobilie anzeigen
sonstige Kosten (inkl. MwSt):€ 219,23
Provision: 3%







BESCHREIBUNG

Historischer Flair in exklusiver Lage: 2-Zimmer-Altbau mit Potenzial

In der Löblichgasse 9 im 1. Obergeschoss gelegen, präsentiert sich diese klassische Altbauwohnung mit großzügiger Raumhöhe und gut proportionierter Grundstruktur.
Die Wohnung verfügt über mehrere zentral begehbare Zimmer, eine separate Küche, ein Badezimmer sowie ein getrenntes WC. Die beeindruckenden Raumhöhen von bis zu rund 3,60 m verleihen den Räumen ein offenes, repräsentatives Wohngefühl und unterstreichen den typischen Altbaucharakter.
Der Zustand ist insgesamt ordentlich und gepflegt, jedoch nicht mehr zeitgemäß. Insbesondere Küche und Sanitärbereiche entsprechen funktional einem älteren Standard. Je nach Anspruch empfiehlt sich eine Modernisierung der Oberflächen sowie eine technische Adaptierung, um das volle Potenzial der Wohnung auszuschöpfen.
Die vorhandenen Parkettböden und die klassische Raumaufteilung bilden eine solide Basis für eine stilvolle Revitalisierung. Eine Substanzwohnung mit klarer Struktur und attraktivem Entwicklungspotenzial in gefragter Wiener Lage.

Ihre Highlights auf einen Blick:
- Stilvolles Gründerzeithaus mit Altbaucharakter
- Teilweise saniert – teilweise mit Entwicklungspotenzial
- Top-Lage im 9. Bezirk
- U-Bahn und Nahversorgung in unmittelbarer Nähe

Lage
Die Liegenschaft in der Löblichgasse 9 befindet sich in ausgezeichneter Lage des 9. Wiener Gemeindebezirks (Alsergrund), einem der gefragtesten innerstädtischen Wohnbezirke Wiens. Die Umgebung ist geprägt von repräsentativen Altbauten, gepflegten Wohnhäusern und einer gewachsenen städtischen Infrastruktur.
Die Nahversorgung ist umfassend gesichert: Supermärkte, Bäckereien, Apotheken sowie diverse Fachgeschäfte befinden sich in fußläufiger Distanz. Darüber hinaus bietet die nahegelegene Nußdorfer Straße eine Vielzahl an Gastronomiebetrieben, Cafés und Dienstleistungsangeboten. Durch die Nähe zur Innenstadt profitieren Bewohner von einem urbanen Umfeld mit hoher Lebensqualität.
Die öffentliche Verkehrsanbindung ist sehr gut. Mehrere Straßenbahnlinien (u. a. 37, 38, 40, 41, 42) sowie Busverbindungen sind rasch erreichbar und gewährleisten eine schnelle Anbindung an das Stadtzentrum sowie an weitere Bezirke. Die U-Bahn-Stationen der Linien U6 (Währinger Straße/Volksoper bzw. Nußdorfer Straße) befinden sich in komfortabler Reichweite.
Erholungs- und Freizeitmöglichkeiten sind ebenfalls gegeben: Der nahegelegene Liechtensteinpark sowie der Donaukanal bieten Grünflächen und Möglichkeiten zur Freizeitgestaltung im Freien. Bildungseinrichtungen, darunter Universitäten, Schulen und Kindergärten, befinden sich im direkten Umfeld, was die Lage zusätzlich attraktiv macht.

Ansprechpartner
Frau Doris Kurzweil || +43 699 17 55 66 16 || dk@jpi.at
Herr Iman Ajdari || +43 699 17 55 66 68 || ia@jpi.at

Wir weisen darauf hin, dass wir mit dem Abgeber in ständiger Geschäftsbeziehung stehen und schon aus diesem Grund ein wirtschaftliches Naheverhältnis vorliegt.Provision: 3%


Alle Details anzeigen

KONTAKT






 

Lasse dich kostenlos vom Anbieter dieser Immobilie zurückrufen.







 


 
JP Immobilien
Doris Kurzweil
Telefonnummer anzeigen Telefon Allgemein: +4315966020616
Handy Bearbeiter: +4369917556616
 
Bitte dem Makler die FindMyHome.at - ID bekanntgeben: 5624905

Bewertungen dieses Anbieters
Qualitätsmakler
Qualitätsmakler:
2021,

BEWERTUNGEN DIESES ANBIETERS

 
Qualit�tsmakler
Qualitätsmakler
2021
Auch du kannst bewerten! 7 Tage nach deiner Anfrage erhältst du dafür von uns ein Bewertungsmail.
Alle Infos zu unseren Auszeichnungen und dem FINDMYHOME.AT Qualitätsprogramm findest du hier: Übersicht anzeigen

FINANZIERUNG
?>

Du willst wissen, wie viel dein Umzug kosten wird?

Mach gleich den kostenlosen Preisvergleich und schau, welche seriösen Anbieter in deiner Region günstig deinen Umzug organisieren


ZUM UMZUGS-VERGLEICH
-->

MYHOME BLOG
SuchAgentin auf FindMyHome.at
Unterschiedlichen Rechtsthemen, köstliche Rezepte, neueste Design-Highlights, sowie aktuelle Technik-Tools für Ihr Eigenheim.


FINDMYHOME.AT SUCHAGENTIN
SuchAgentin auf FindMyHome.at
Hallo, soll ich dir ähnliche Immobilien kostenfrei per E-Mail schicken?


ÄHNLICHE IMMOBILIEN
Aehnliche Immobilie - Vorschaubild 1

Großzügige 2,5-Zimmer Wohnung im 9. Bezirk mit viel Potentia... - Objektnr. 5520716

69,88 m² - 2.5 Zimmer
461250 €
PLZ: 1090

Mehr anzeigen

Aehnliche Immobilie - Vorschaubild 2

Wohnung mit Charme & Möglichkeiten - 2,5 Zimmer nahe U-Bahn... - Objektnr. 5565203

69,88 m² - 2.5 Zimmer
461250 €
PLZ: 1090

Mehr anzeigen

Aehnliche Immobilie - Vorschaubild 3

Hofruhelage mit Charakter, nah dem Servitenviertel/Clusiusga... - Objektnr. 5594229

68,47 m² - 3.0 Zimmer
449000 €
PLZ: 1090

Mehr anzeigen

Durch die Nutzung unserer Seite erklären Sie sich mit der Verwendung von Cookies zur Verbesserung Ihres Online-Erlebnisses einverstanden. Detaillierte Informationen zu diesem und weiteren Themen erhalten Sie in unserer Datenschutzerklärung.