MEIN ERGEBNIS ANPASSEN

Erstklassig sanierte 2-Zimmer-Altbauwohnung in begehrter Lage - Objektnr. 5624904

  • 1
  • 2
  • 3
  • 4
  • 5
  • 6
  • Top 5
1090
Ort
59,67 m²
Fläche
2
Zimmer

ECKDATEN
FindMyHome.at // Externe Immobilien-ID5624904 // 101/18649
ImmobilienartWohnung - Eigentum
AnschriftLöblichgasse
1090 Wien
Alt- oder NeubauAltbau
NäheWähringer Straße
Stock1
Beziehbar absofort
Fläche59,67 m²
Zimmer2
Bad1
WC1
Kaufpreis:€ 499.000,00
Ratenzahlung:Finanzierungsmöglichkeiten für diese Immobilie anzeigen
sonstige Kosten (inkl. MwSt):€ 157,41
Mehrwertsteuer:€ 2.888,00
Provision: 3%







BESCHREIBUNG

Erstklassig sanierte 2-Zimmer-Altbauwohnung in begehrter Lage

Im Herzen des begehrten 9. Bezirks von Wien gelangen mehrere charmante Altbauwohnungen in einem klassischen Jahrhundertwendehaus zum Verkauf.

Diese hochwertig sanierte 2-Zimmer-Altbauwohnung verbindet klassischen Wiener Altbaucharakter mit moderner Ausstattung und einer klar strukturierten Raumabfolge. Großzügige Raumhöhen und die typischen Proportionen eines Altbaus schaffen eine angenehme, wohnliche Atmosphäre.
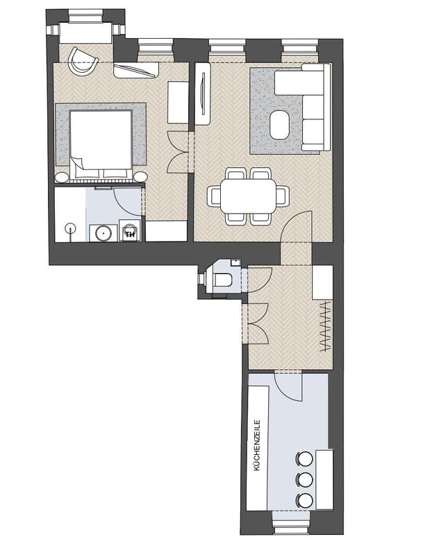
Der Vorraum bildet den zentralen Eingangsbereich der Wohnung und führt in die separate Küche sowie in das Gäste-WC. Die beiden Wohnräume sind klassisch hintereinander angeordnet und nicht zentral begehbar – eine charakteristische und charmante Grundrisslösung im Altbau.
Der großzügige Wohnraum bietet ausreichend Platz für eine komfortable Wohn- und Esssituation. Von hier aus gelangt man in das ruhig gelegene Schlafzimmer, das über ein direkt angeschlossenes Masterbadezimmer verfügt. Diese en-suite-Lösung schafft eine private Rückzugssituation mit erhöhtem Wohnkomfort.
Die Küche ist separat ausgeführt und funktional geplant. Das Masterbadezimmer präsentiert sich modern und hochwertig saniert, während das zusätzliche, separat begehbare WC den Wohnkomfort weiter unterstreicht.
Eine stilvolle Altbauwohnung für Eigennutzer, die Wert auf klassische Raumstruktur, Privatsphäre im Schlafbereich und eine getrennte Küchenlösung legen.

Lage
Die Liegenschaft in der Löblichgasse 9 befindet sich in ausgezeichneter Lage des 9. Wiener Gemeindebezirks (Alsergrund), einem der gefragtesten innerstädtischen Wohnbezirke Wiens. Die Umgebung ist geprägt von repräsentativen Altbauten, gepflegten Wohnhäusern und einer gewachsenen städtischen Infrastruktur.
Die Nahversorgung ist umfassend gesichert: Supermärkte, Bäckereien, Apotheken sowie diverse Fachgeschäfte befinden sich in fußläufiger Distanz. Darüber hinaus bietet die nahegelegene Nußdorfer Straße eine Vielzahl an Gastronomiebetrieben, Cafés und Dienstleistungsangeboten. Durch die Nähe zur Innenstadt profitieren Bewohner von einem urbanen Umfeld mit hoher Lebensqualität.
Die öffentliche Verkehrsanbindung ist sehr gut. Mehrere Straßenbahnlinien (u. a. 37, 38, 40, 41, 42) sowie Busverbindungen sind rasch erreichbar und gewährleisten eine schnelle Anbindung an das Stadtzentrum sowie an weitere Bezirke. Die U-Bahn-Stationen der Linien U6 (Währinger Straße/Volksoper bzw. Nußdorfer Straße) befinden sich in komfortabler Reichweite.
Erholungs- und Freizeitmöglichkeiten sind ebenfalls gegeben: Der nahegelegene Liechtensteinpark sowie der Donaukanal bieten Grünflächen und Möglichkeiten zur Freizeitgestaltung im Freien. Bildungseinrichtungen, darunter Universitäten, Schulen und Kindergärten, befinden sich im direkten Umfeld, was die Lage zusätzlich attraktiv macht.

Ansprechpartner
Frau Doris Kurzweil || +43 699 17 55 66 16 || dk@jpi.at
Herr Iman Ajdari || +43 699 17 55 66 68 || ia@jpi.at

Wir weisen darauf hin, dass wir mit dem Abgeber in ständiger Geschäftsbeziehung stehen und schon aus diesem Grund ein wirtschaftliches Naheverhältnis vorliegt.Provision: 3%


Alle Details anzeigen

KONTAKT






 

Lasse dich kostenlos vom Anbieter dieser Immobilie zurückrufen.







 


 
JP Immobilien
Iman Ajdari
Telefonnummer anzeigen Telefon Allgemein: +4315966020668
Handy Bearbeiter: +4369917556668
 
Bitte dem Makler die FindMyHome.at - ID bekanntgeben: 5624904

Bewertungen dieses Anbieters
Qualitätsmakler
Qualitätsmakler:
2021,

BEWERTUNGEN DIESES ANBIETERS

 
Qualit�tsmakler
Qualitätsmakler
2021
Auch du kannst bewerten! 7 Tage nach deiner Anfrage erhältst du dafür von uns ein Bewertungsmail.
Alle Infos zu unseren Auszeichnungen und dem FINDMYHOME.AT Qualitätsprogramm findest du hier: Übersicht anzeigen

FINANZIERUNG
?>

Du willst wissen, wie viel dein Umzug kosten wird?

Mach gleich den kostenlosen Preisvergleich und schau, welche seriösen Anbieter in deiner Region günstig deinen Umzug organisieren


ZUM UMZUGS-VERGLEICH
-->

MYHOME BLOG
SuchAgentin auf FindMyHome.at
Unterschiedlichen Rechtsthemen, köstliche Rezepte, neueste Design-Highlights, sowie aktuelle Technik-Tools für Ihr Eigenheim.


FINDMYHOME.AT SUCHAGENTIN
SuchAgentin auf FindMyHome.at
Hallo, soll ich dir ähnliche Immobilien kostenfrei per E-Mail schicken?


ÄHNLICHE IMMOBILIEN
Aehnliche Immobilie - Vorschaubild 1

PRUNKSTÜCK: Hochwertig sanierter Altbau - Eleganz und Stil... - Objektnr. 5584841

55,29 m² - 2.0 Zimmer
529000 €
PLZ: 1090

Mehr anzeigen

Aehnliche Immobilie - Vorschaubild 2

Ihr neues Zuhause in Premiumlage - Objektnr. 5475860


55,29 m² - 2 Zimmer
529000 €
PLZ: 1090

Mehr anzeigen

Aehnliche Immobilie - Vorschaubild 3

PRUNKSTÜCK: Luxuriöse Generalsanierung - Altbaucharme mit mo... - Objektnr. 5589676

54,97 m² - 2.0 Zimmer
479000 €
PLZ: 1090

Mehr anzeigen

Durch die Nutzung unserer Seite erklären Sie sich mit der Verwendung von Cookies zur Verbesserung Ihres Online-Erlebnisses einverstanden. Detaillierte Informationen zu diesem und weiteren Themen erhalten Sie in unserer Datenschutzerklärung.