MEIN ERGEBNIS ANPASSEN

Provisionsfrei! Ostseitige Balkonwohnung mit Weitblick in Ruhelage - Objektnr. 5624899

  • 1920-1080-max (2)
  • 1920-1080-max
  • Außenansicht Nacht
  • 2560-1440-max (2)
  • 2
  • DG 2
  • image5
  • image4
  • DG
  • image3
  • L151_UMA_AF_MF_GR_09_OG2_10
1100
Ort
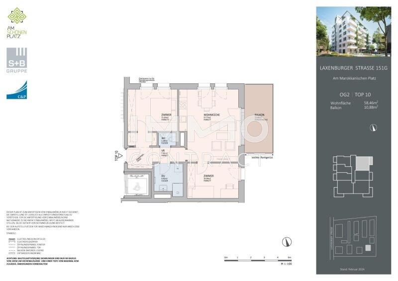
58,46 m²
Fläche
3.0
Zimmer
WEITERE MEDIEN

Dokumente


ECKDATEN
FindMyHome.at // Externe Immobilien-ID5624899 // 1939/164035
ImmobilienartWohnung - Eigentum
Anschrift1100 Wien,Favoriten
Baujahr2024
Geschosse6
Fläche58,46 m²
Zimmer3.0
Bad1
WC1
Kaufpreis:€ 570.000,00
Ratenzahlung:Finanzierungsmöglichkeiten für diese Immobilie anzeigen
Provision: Provision bezahlt der Abgeber.







BESCHREIBUNG

Provisionsfrei! Ostseitige Balkonwohnung mit Weitblick in Ruhelage

Willkommen in Ihrem persönlichen Rückzugsort einer Wohnung, die nicht nur Raum bietet, sondern ein Lebensgefühl.

Diese stilvolle 3-Zimmer-Wohnung mit Balkon vereint urbanen Komfort mit wohltuender Ruhe. Eingebettet ins Grüne genießen Sie hier einen herrlichen Weitblick ohne direktes Gegenüber. Privatsphäre, Licht und Natur verschmelzen zu einem Wohnambiente, das jeden Tag wie ein kleiner Urlaub wirkt.

Schon der Weg zu Ihrem neuen Zuhause ist ein Erlebnis: Der Zugang führt durch einen prachtvoll angelegten Garten, der Sie vom ersten Moment an entschleunigt. Autos bleiben diskret in der hauseigenen Tiefgarage oberirdisch genießen Sie eine nahezu autofreie, entspannte Atmosphäre. Perfekt für Stadtmenschen, die Ruhe suchen, ohne auf die Vorzüge urbaner Infrastruktur zu verzichten.

Ein absolutes Highlight ist der liebevoll gestaltete Hildegard von Bingen Dachgarten Ihr Platz zum Selbergarteln, Durchatmen und Krafttanken. Hier können Sie eigene Kräuter anbauen, die Natur erleben und Teil einer besonderen Gemeinschaft werden. Ergänzt wird dieses grüne Refugium durch ein einladendes Palmenhaus, das mit seinem besonderen Flair begeistert ein Ort für Begegnung, Inspiration und kleine Auszeiten.

Die einzigartige Architektur des Gebäudes verbindet Ästhetik mit Lebensqualität und schafft eine harmonische Balance aus Design, Funktionalität und Naturverbundenheit.

Diese Wohnung ist mehr als nur ein Zuhause.
Sie ist ein Ort für Menschen, die bewusst wohnen, Ruhe schätzen und dennoch mitten im Leben stehen möchten.

Gerne präsentieren wir Ihnen dieses besondere Wohnjuwel persönlich.

Wir weisen darauf hin, dass zwischen dem Vermittler und dem zu vermittelnden Dritten ein familiäres oder wirtschaftliches Naheverhältnis besteht.

Der Vermittler ist als Doppelmakler tätig.


Infrastruktur / Entfernungen

Gesundheit
Arzt <500m
Apotheke <500m
Klinik <1.000m
Krankenhaus <2.000m

Kinder & Schulen
Schule <500m
Kindergarten <500m
Universität <500m
Höhere Schule <3.000m

Nahversorgung
Supermarkt <500m
Bäckerei <500m
Einkaufszentrum <2.000m

Sonstige
Geldautomat <500m
Bank <500m
Post <1.000m
Polizei <1.000m

Verkehr
Bus <500m
U-Bahn <1.000m
Straßenbahn <500m
Bahnhof <1.000m
Autobahnanschluss <1.500m

Angaben Entfernung Luftlinie / Quelle: OpenStreetMap

Klimaanlage: JA
Gartennutzung: JA
Kabel/SAT/TV: JA
Barrierefrei: JA
Provision: Provision bezahlt der Abgeber.


Alle Details anzeigen

KONTAKT






 

Lasse dich kostenlos vom Anbieter dieser Immobilie zurückrufen.







 


 
IMMOcontract Immobilien Vermittlung GmbH
Alexandra Kraus
Telefonnummer anzeigen Telefon Allgemein: +4366460008134
Handy Bearbeiter: +4366460008134
 
Bitte dem Makler die FindMyHome.at - ID bekanntgeben: 5624899

Bewertungen dieses Anbieters
Netiquette

BEWERTUNGEN DIESES ANBIETERS

 
Netiquette
FINDMYHOME.AT
NETIQUETTE
Auch du kannst bewerten! 7 Tage nach deiner Anfrage erhältst du dafür von uns ein Bewertungsmail.
Alle Infos zu unseren Auszeichnungen und dem FINDMYHOME.AT Qualitätsprogramm findest du hier: Übersicht anzeigen

FINANZIERUNG
?>

Du willst wissen, wie viel dein Umzug kosten wird?

Mach gleich den kostenlosen Preisvergleich und schau, welche seriösen Anbieter in deiner Region günstig deinen Umzug organisieren


ZUM UMZUGS-VERGLEICH
-->

MYHOME BLOG
SuchAgentin auf FindMyHome.at
Unterschiedlichen Rechtsthemen, köstliche Rezepte, neueste Design-Highlights, sowie aktuelle Technik-Tools für Ihr Eigenheim.


FINDMYHOME.AT SUCHAGENTIN
SuchAgentin auf FindMyHome.at
Hallo, soll ich dir ähnliche Immobilien kostenfrei per E-Mail schicken?


ÄHNLICHE IMMOBILIEN
Aehnliche Immobilie - Vorschaubild 1

Provisionsfrei! Ostseitige Balkonwohnung mit Traumausblick i... - Objektnr. 5619596

58,46 m² - 3.0 Zimmer
590000 €
PLZ: 1100

Mehr anzeigen

Aehnliche Immobilie - Vorschaubild 2

PROVISIONSFREI | AM FRANZOSENWEG - Objektnr. 5582341


67,18 m² - 3.0 Zimmer
494500 €
PLZ: 1100

Mehr anzeigen

Aehnliche Immobilie - Vorschaubild 3

PROVISIONSFREI - Ten-Living - Ein Zuhause mit Vielfalt... - Objektnr. 5456859

68,50 m² - 3.0 Zimmer
527500 €
PLZ: 1100

Mehr anzeigen

Durch die Nutzung unserer Seite erklären Sie sich mit der Verwendung von Cookies zur Verbesserung Ihres Online-Erlebnisses einverstanden. Detaillierte Informationen zu diesem und weiteren Themen erhalten Sie in unserer Datenschutzerklärung.