MEIN ERGEBNIS ANPASSEN

Exklusive 3-Zimmer-Residenz auf Premium-Niveau zur Anmietung - Objektnr. 5624895


ökologisch beheizt
  • Visualisierung 3 Zimmer Wohnung
  • Wohnküche
  • Zimmer 1
  • Zimmer 2
  • Vorraum
  • Balkon
  • Bad mit Dusche und Wanne
  • Bad mit Dusche und Wanne_2
  • WC
  • Gartenansicht
  • Eingangsbereich 1
  • Eingangsbereich 2
  • Gartengeschoss
  • Fahrradabstellplatz
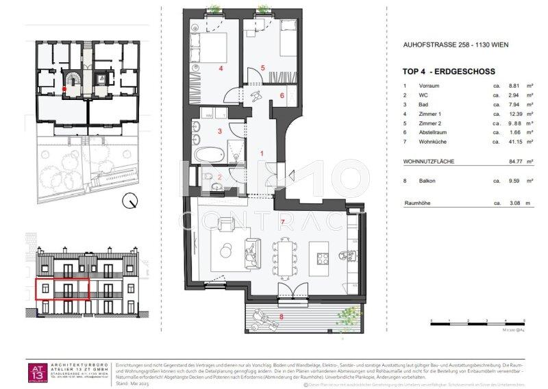
  • Grundriss Top 4
1130
Ort
€ 2.190,00
Gesamtkosten
84,77 m²
Fläche
3.0
Zimmer

ECKDATEN
FindMyHome.at // Externe Immobilien-ID5624895 // 1939/215675
ImmobilienartWohnung - Miete
Anschrift1130 Wien
Baujahr1860
Befeuerung
Luftwärmepumpe
Geschosse3
Mietdauer5
Fläche84,77 m²
Zimmer3.0
Bad1
WC1
 Abstellraum
Brutto-Miete:€ 2.190,00
Betriebskosten (inkl. MwSt):€ 326,37
Mehrwertsteuer:€ 199,09
Monatliche Gesamtkosten:€ 2.190,00
Provision: Gemäß Erstauftraggeberprinzip bezahlt der Abgeber die Provision.




BESCHREIBUNG

Exklusive 3-Zimmer-Residenz auf Premium-Niveau zur Anmietung

Diese außergewöhnliche 3-Zimmer-Residenz befindet sich in der stilvoll revitalisierten Villa Auhof in bester Lage des 13. Bezirks und vereint historischen Altbaucharakter mit modernster Gebäudetechnik auf höchstem Ausstattungsniveau. Das exklusive Wohnprojekt umfasst lediglich sechs Einheiten und bietet damit ein Höchstmaß an Privatsphäre, Wertigkeit und architektonischer Qualität.

Die gegenständliche Wohnung überzeugt auf ca. 84,77 m² Wohnfläche durch ein großzügiges, repräsentatives Raumkonzept und eine außergewöhnliche Raumhöhe von rund 3,08 m, die ein besonders offenes und elegantes Wohngefühl vermittelt. Herzstück ist der ca. 41 m² große Wohn- und Essbereich mit beeindruckender Raumwirkung und direktem Zugang zum rund 9,6 m² großen Balkon mit ruhigem Grünblick. Großzügige Fensterflächen sorgen für optimale Lichtverhältnisse und unterstreichen den hochwertigen Wohncharakter.

Die beiden Schlafzimmer sind klar strukturiert und vielseitig nutzbar ideal als Master Bedroom, Gäste- oder Arbeitszimmer. Das Badezimmer ist hochwertig ausgeführt und kombiniert Badewanne und bodengleiche Dusche. Ergänzt wird das Raumangebot durch ein separates WC sowie einen praktischen Abstellraum.

Im Zuge der umfassenden Generalsanierung wurde besonderer Wert auf nachhaltige, energieeffiziente und zukunftssichere Gebäudetechnik gelegt. Die Wärmeversorgung erfolgt über ein modernes Luftwärmepumpensystem in Kombination mit komfortabler Fußbodenheizung. Hochwertige Holz-Alu-Fenster mit 3-fach-Verglasung, energieoptimierte Bauphysik sowie durchdachte Haustechniklösungen gewährleisten zeitgemäßen Wohnkomfort bei hoher Effizienz.

Die Ausstattung folgt einem klaren Qualitätsanspruch: Eichenparkett in Fischgrätverlegung, elegante Sanitärausstattung, Fußbodenheizung mit Einzelraumregelung, Personenaufzug, Videogegensprechanlage, Zentralsperranlage sowie hochwertig gestaltete Allgemeinbereiche mit Alt-Wien-Charakter. Großzügige Außenflächen, Fahrrad- und Nebenräume sowie professionell ausgeführte Gemeinschaftszonen unterstreichen den Premiumanspruch des Hauses.

Der Immobilienmakler erklärt, dass er entgegen dem in der Immobilienwirtschaft üblichen Geschäftsgebrauch des Doppelmaklers einseitig nur für den Vermieter tätig ist.


Infrastruktur / Entfernungen

Gesundheit
Arzt <500m
Apotheke <1.000m
Klinik <3.000m
Krankenhaus <1.000m

Kinder & Schulen
Schule <500m
Kindergarten <500m
Universität <2.000m
Höhere Schule <5.000m

Nahversorgung
Supermarkt <500m
Bäckerei <1.000m
Einkaufszentrum <3.000m

Sonstige
Geldautomat <500m
Bank <500m
Post <2.000m
Polizei <1.000m

Verkehr
Bus <500m
U-Bahn <500m
Straßenbahn <500m
Bahnhof <1.000m
Autobahnanschluss <3.000m

Angaben Entfernung Luftlinie / Quelle: OpenStreetMap

Objekt ist für eine Wohngemeinschaft geeignet
Kabel/SAT/TV: JA
Barrierefrei: JA
Provision: Gemäß Erstauftraggeberprinzip bezahlt der Abgeber die Provision.


Alle Details anzeigen

KONTAKT






 

Lasse dich kostenlos vom Anbieter dieser Immobilie zurückrufen.







 


 
IMMOcontract Immobilien Vermittlung GmbH
Julian Pelzmann
Telefonnummer anzeigen Telefon Allgemein: +4366460008409
Handy Bearbeiter: +4366460008409
 
Bitte dem Makler die FindMyHome.at - ID bekanntgeben: 5624895

Bewertungen dieses Anbieters
Netiquette

BEWERTUNGEN DIESES ANBIETERS

 
Netiquette
FINDMYHOME.AT
NETIQUETTE
Auch du kannst bewerten! 7 Tage nach deiner Anfrage erhältst du dafür von uns ein Bewertungsmail.
Alle Infos zu unseren Auszeichnungen und dem FINDMYHOME.AT Qualitätsprogramm findest du hier: Übersicht anzeigen


Du willst wissen, wie viel dein Umzug kosten wird?

Mach gleich den kostenlosen Preisvergleich und schau, welche seriösen Anbieter in deiner Region günstig deinen Umzug organisieren


ZUM UMZUGS-VERGLEICH
-->

MYHOME BLOG
SuchAgentin auf FindMyHome.at
Unterschiedlichen Rechtsthemen, köstliche Rezepte, neueste Design-Highlights, sowie aktuelle Technik-Tools für Ihr Eigenheim.


FINDMYHOME.AT SUCHAGENTIN
SuchAgentin auf FindMyHome.at
Hallo, soll ich dir ähnliche Immobilien kostenfrei per E-Mail schicken?


ÄHNLICHE IMMOBILIEN
Aehnliche Immobilie - Vorschaubild 1

ERSTBEZUG 3 Zimmer BALKON-Wohnung - Qualität auf höchstem Ni... - Objektnr. 5624162

84,77 m² - 3.0 Zimmer
2126.04 €
PLZ: 1130

Mehr anzeigen

Aehnliche Immobilie - Vorschaubild 2

Luxuriöse 3-Zimmer-Mietwohnung mit Balkon und hochwertiger A... - Objektnr. 5624893

95,92 m² - 3.0 Zimmer
2480 €
PLZ: 1130

Mehr anzeigen

Aehnliche Immobilie - Vorschaubild 3

3 Zimmer ERSTBEZUGS-BALKON-WOHNUNG - Qualität auf höchstem N... - Objektnr. 5624166

95,92 m² - 3.0 Zimmer
2405.68 €
PLZ: 1130

Mehr anzeigen

Durch die Nutzung unserer Seite erklären Sie sich mit der Verwendung von Cookies zur Verbesserung Ihres Online-Erlebnisses einverstanden. Detaillierte Informationen zu diesem und weiteren Themen erhalten Sie in unserer Datenschutzerklärung.