MEIN ERGEBNIS ANPASSEN

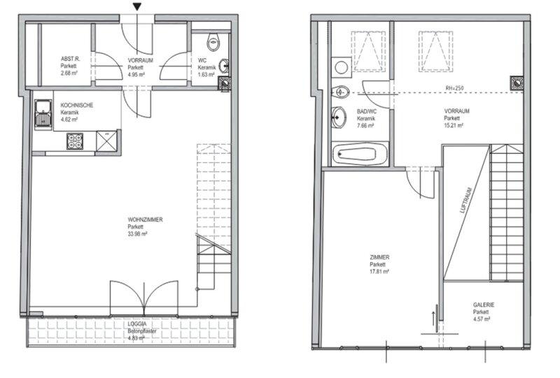
INNSTRASSE, FERNBLICK, 103 m2 Dachgeschoß-Maisonette mit Loggia, 2 Zimmer, Galerie, Komplettküche, Wannenbad, Parketten - Objektnr. 5624711


ökologisch beheizt
1200
Ort
€ 1.544,54
Gesamtkosten
102,77 m²
Fläche
2.0
Zimmer

ECKDATEN
FindMyHome.at // Externe Immobilien-ID5624711 // 2395
ImmobilienartWohnung - Miete
Anschrift1200 Wien
Befeuerung
Fernwärme
Mietdauer5
Zimmer2.0
Bad1
WC1
 Abstellraum
Kaution:€ 5.250,00
Brutto-Miete:€ 1.544,54
Betriebskosten (inkl. MwSt):€ 281,18
Mehrwertsteuer:€ 140,41
Monatliche Gesamtkosten:€ 1.544,54
Provision: Gemäß Erstauftraggeberprinzip bezahlt der Abgeber die Provision.




BESCHREIBUNG

INNSTRASSE, FERNBLICK, 103 m2 Dachgeschoß-Maisonette mit Loggia, 2 Zimmer, Galerie, Komplettküche, Wannenbad, Parketten

IN DER INNSTRASSE GELANGT DIESE 102,77 m2 DACHGESCHOSS-MAISONETTE INKLUSIVE CA. 4,83 m2 LOGGIA ZUR BEFRISTETEN VERMIETUNG

Vorzimmer, Wohnraum mit offener Küche, ca. 4,83 m2 Loggia, Schlafzimmer, Galerie, Badezimmer mit WC, separates WC, Abstellraum und Kellerabteil

Ausstattung:

+ ca. 4,83 m2 Loggia (südlich)
+ Küche mit Einbaugeräte
+ Badezimmer mit Badewanne, Waschtisch, WC und Waschmaschinenanschluss
+ Parkettböden, Fliesen in den Nassräumen
+ Telekabelfernsehanschluss, Gegensprechanlage
+ Fernwärmeheizung
+ Kellerabteil
+ Lift, Fahrrad-/Kinderwagenabstellraum
+ HWB 37,40 kWh/m2a


Lage

INNSTRASSE mit bester Infrastruktur des 20. Bezirks (Vorgartenstraße, Traisengasse, Handelskai, Dresdner Straße, Donauinsel, Millenium City, Lorenz-Böhler Unfallkrankenhaus, Engerthgasse, Augarten) sowie guten Verkehrsanbindungen wie die U1-Station Vorgartenstraße, U6-Station Dresdner Straße, S-Bahn-Station Traisengasse mit S1, S2, S3, S4, S7 sowie die Linien 5A, 11A, 37A und O, 2, 5, 12 sind in Reichweite. Weiters erlangen Sie via A22 Doanuuferautobahn die Anbindungen an die Autobahnen A21, A4 sowie A2 in kürzester Zeit. Naherholungsgebiete, wie der nahegelegene Augarten, der Donaukanal, die Donauinsel oder der leicht erreichbare Donaupark sind gut und schnell zu erreichen.


Sonstiges

Gesamtmiete: € 1.544,54 inklusive Betriebskosten, Aufzug, 10 % MwSt.
Fernwärme und Strom werden vom Anbieter vorgeschrieben.


Kaution: € 4.640,00 per Überweisung
auf 5 Jahre befristete Hauptmiete, ablösefrei, Sofortbezug möglich!
1 Jahr Kündiungsverzicht, 3 Monate Kündigungsfrist


Anbindung öffentlicher Verkehr

U1-Station Vorgartenstraße, U6-Station Dresdner Straße, S-Bahn-Station Traisengasse mit S1, S2, S3, S4, S7 sowie die Linien 5A, 11A, 37A und O, 2, 5, 12 sind in Reichweite

Ansprechpartner: ALEXANDER ROS
Mob.-Tel. +43-664-466 52 02
E-Mail:  

Der Immobilienmakler erklärt, dass er entgegen dem in der Immobilienwirtschaft üblichen Geschäftsgebrauch des Doppelmaklers einseitig nur für den Vermieter tätig ist.


Infrastruktur / Entfernungen

Gesundheit
Arzt <500m
Apotheke <500m
Klinik <1.000m
Krankenhaus <1.000m

Kinder & Schulen
Schule <500m
Kindergarten <500m
Universität <1.500m
Höhere Schule <2.000m

Nahversorgung
Supermarkt <500m
Bäckerei <500m
Einkaufszentrum <1.000m

Sonstige
Geldautomat <500m
Bank <500m
Post <500m
Polizei <1.000m

Verkehr
Bus <500m
U-Bahn <1.000m
Straßenbahn <500m
Bahnhof <1.000m
Autobahnanschluss <1.500m

Angaben Entfernung Luftlinie / Quelle: OpenStreetMap

Kabel/SAT/TV: JA
Provision: Gemäß Erstauftraggeberprinzip bezahlt der Abgeber die Provision.


Alle Details anzeigen

KONTAKT






 

Lasse dich kostenlos vom Anbieter dieser Immobilie zurückrufen.







 


 
ROS REALITÄTEN OG
Alexander Ros
Telefonnummer anzeigen Handy Bearbeiter: +436644665202
 
Bitte dem Makler die FindMyHome.at - ID bekanntgeben: 5624711

Bewertungen dieses Anbieters
Qualitätsmakler
Qualitätsmakler:
2014, 2016, 2017, 2018, 2021, 2025,
Netiquette
Freundlichkeit

BEWERTUNGEN DIESES ANBIETERS

 
Qualit�tsmakler
Qualitätsmakler
2014, 2016, 2017, 2018, 2021, 2025
Freundlichkeit
BESONDERS
FREUNDLICH
Netiquette
FINDMYHOME
NETIQUETTE
Auch du kannst bewerten! 7 Tage nach deiner Anfrage erhältst du dafür von uns ein Bewertungsmail.
Alle Infos zu unseren Auszeichnungen und dem FINDMYHOME.AT Qualitätsprogramm findest du hier: Übersicht anzeigen


Du willst wissen, wie viel dein Umzug kosten wird?

Mach gleich den kostenlosen Preisvergleich und schau, welche seriösen Anbieter in deiner Region günstig deinen Umzug organisieren


ZUM UMZUGS-VERGLEICH
-->

MYHOME BLOG
SuchAgentin auf FindMyHome.at
Unterschiedlichen Rechtsthemen, köstliche Rezepte, neueste Design-Highlights, sowie aktuelle Technik-Tools für Ihr Eigenheim.


FINDMYHOME.AT SUCHAGENTIN
SuchAgentin auf FindMyHome.at
Hallo, soll ich dir ähnliche Immobilien kostenfrei per E-Mail schicken?


ÄHNLICHE IMMOBILIEN
Aehnliche Immobilie - Vorschaubild 1

Familienfreundlich & hochwertig: Wohnen mit Rundum-Service... - Objektnr. 5618763

33,90 m² - 1.0 Zimmer
1277.6 €
PLZ: 1200

Mehr anzeigen

Aehnliche Immobilie - Vorschaubild 2

Wohnen mit Weitblick: Vollmöblierte Apartments an der Dresdn... - Objektnr. 5618742

48,10 m² - 2.0 Zimmer
1696.7 €
PLZ: 1200

Mehr anzeigen

Aehnliche Immobilie - Vorschaubild 3

Einziehen & Wohlfühlen: Design-Apartment in Toplage... - Objektnr. 5618805

33,60 m² - 1.0 Zimmer
1250.1 €
PLZ: 1200

Mehr anzeigen

Durch die Nutzung unserer Seite erklären Sie sich mit der Verwendung von Cookies zur Verbesserung Ihres Online-Erlebnisses einverstanden. Detaillierte Informationen zu diesem und weiteren Themen erhalten Sie in unserer Datenschutzerklärung.