MEIN ERGEBNIS ANPASSEN

Ankommen. Durchatmen. Bleiben. - Ihr Zuhause in der Pfalzgasse 29 - Objektnr. 5624583


ökologisch beheizt
1220
Ort
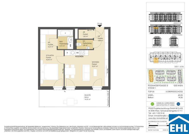
45,05 m²
Fläche
2.0
Zimmer
WEITERE MEDIEN

ECKDATEN
FindMyHome.at // Externe Immobilien-ID5624583 // 93861
ImmobilienartWohnung - Eigentum
AnschriftPodhagskygasse 12/33
1220 Wien
Befeuerung
Luftwärmepumpe
Stock3
Fläche45,05 m²
Zimmer2.0
Bad1
WC1
Kaufpreis:€ 277.500,00
Ratenzahlung:Finanzierungsmöglichkeiten für diese Immobilie anzeigen
Provision: 3% des Kaufpreises zzgl. 20% USt.







BESCHREIBUNG

Ankommen. Durchatmen. Bleiben. - Ihr Zuhause in der Pfalzgasse 29

 

Wohnen im Grünen modern, ruhig und komfortabel

In attraktiver Grünlage zwischen Pfalz- und Podhagskygasse erwartet Sie ein modernes Wohnensemble mit sechs architektonisch ansprechend gestalteten Punkthäusern. Die aufgelockerte Bauweise und großzügigen Freiflächen schaffen eine angenehme, ruhige Wohnatmosphäre mit viel Lebensqualität.

Die 24 Zimmerwohnungen überzeugen durch durchdachte Grundrisse, helle Räume und private Freiflächen ob Eigengarten, Balkon, Terrasse oder Loggia. Hier genießen Sie Ihr Zuhause mit zusätzlichem Freiraum im Grünen.

Hochwertige Ausstattung für mehr Wohnkomfort

  • Energieeffiziente Luftwärmepumpe in Kombination mit Photovoltaik
  • Fußbodenheizung mit Kühlfunktion im Sommer
  • 3-fach-Isolierverglasung & außenliegender Sonnenschutz
  • Edler Eichenparkett in Wohnräumen
  • Moderne Einbauküche mit Markengeräten
  • Stilvolle Bäder mit bodenebener Dusche oder Badewanne
  • Sicherheitseingangstüren & durchdachtes Gesamtkonzept

Die Kombination aus moderner Technik, nachhaltiger Bauweise und naturnahem Umfeld macht dieses Projekt zu einem idealen Zuhause für Singles, Paare und Familien, die Ruhe, Komfort und Lebensqualität schätzen.

Ein Ort zum Ankommen und Wohlfühlen.

 

Die Liegenschaft befindet sich in attraktiver Wohnlage der Donaustadt einem der grünsten und zugleich dynamischsten Bezirke Wiens. 

  • Die Haltestelle Pfalzgasse (Bus) liegt direkt am Ort und wird u. a. von Linien wie 95A bedient ideal für tägliche Wege in die Umgebung und zu U-Bahnstationen.
  • In ca. 600800 m Entfernung befindet sich die U-Bahn-Station Aspern Nord (U2-Linie) sowie der S-Bahn- und Regionalbahnhof Wien Aspern Nord starker Anschluss in die Innenstadt und darüber hinaus.

 

Lageschreibung

Die Umgebung überzeugt durch eine ausgezeichnete Nahversorgung: Supermärkte, Drogerien, Apotheken bieten gute Einkaufsmöglichkeiten für den täglichen Bedarf.

Die öffentliche Anbindung ist hervorragend: Die U-Bahnstation U2-Aspern Nord ist ca. 800 Meter entfernt, die Buslinien wie z.B. Linie 95A bringen Sie rasch ans Ziel. Auch mit dem Auto besteht eine gute Anbindung an die A22 und das überregionale Verkehrsnetz.

Zahlreiche Freizeit- und Erholungsmöglichkeiten wie Badeteich Hirschstetten oder die Blumengärten Hirschstetten befinden sich in unmittelbarer Nähe und sorgen für hohe Lebensqualität.

Eine ideale Lage für alle, die urbanes Wohnen mit naturnaher Umgebung verbinden möchten.

Wir weisen darauf hin, dass zwischen dem Vermittler und dem zu vermittelnden Dritten ein familiäres oder wirtschaftliches Naheverhältnis besteht.

Der Vermittler ist als Doppelmakler tätig.


Infrastruktur / Entfernungen

Gesundheit
Arzt <700m
Apotheke <700m
Klinik <1.650m
Krankenhaus <3.325m

Kinder & Schulen
Schule <475m
Kindergarten <175m
Universität <2.225m
Höhere Schule <2.250m

Nahversorgung
Supermarkt <475m
Bäckerei <725m
Einkaufszentrum <2.500m

Sonstige
Geldautomat <625m
Bank <875m
Post <875m
Polizei <1.550m

Verkehr
Bus <275m
U-Bahn <800m
Straßenbahn <350m
Bahnhof <950m
Autobahnanschluss <2.175m

Angaben Entfernung Luftlinie / Quelle: OpenStreetMap

Provision: 3% des Kaufpreises zzgl. 20% USt.


Alle Details anzeigen

KONTAKT






 

Lasse dich kostenlos vom Anbieter dieser Immobilie zurückrufen.







 


 
EHL Wohnen GmbH
Anna Gasienica-Fronek
Telefonnummer anzeigen Telefon Allgemein: +4315127690412
Handy Bearbeiter: +436645483323
 
Bitte dem Makler die FindMyHome.at - ID bekanntgeben: 5624583

Bewertungen dieses Anbieters
Qualitätsmakler
Qualitätsmakler:
Netiquette
Freundlichkeit
82 %

BEWERTUNGEN DIESES ANBIETERS

 
Qualitätsmakler
UNSERE HALL OF FAME DER BESTEN ANBIETER
Qualit�tsmakler
Qualitätsmakler
2012, 2013, 2014, 2015, 2016, 2017, 2018, 2019, 2020, 2021, 22/23, 2024, 2025
Weiterempfehlung
WIRD GERNE

Freundlichkeit
BESONDERS
FREUNDLICH
Netiquette
FINDMYHOME
NETIQUETTE
Auch du kannst bewerten! 7 Tage nach deiner Anfrage erhältst du dafür von uns ein Bewertungsmail.
Alle Infos zu unseren Auszeichnungen und dem FINDMYHOME.AT Qualitätsprogramm findest du hier: Übersicht anzeigen

FINANZIERUNG
?>

Du willst wissen, wie viel dein Umzug kosten wird?

Mach gleich den kostenlosen Preisvergleich und schau, welche seriösen Anbieter in deiner Region günstig deinen Umzug organisieren


ZUM UMZUGS-VERGLEICH
-->

MYHOME BLOG
SuchAgentin auf FindMyHome.at
Unterschiedlichen Rechtsthemen, köstliche Rezepte, neueste Design-Highlights, sowie aktuelle Technik-Tools für Ihr Eigenheim.


FINDMYHOME.AT SUCHAGENTIN
SuchAgentin auf FindMyHome.at
Hallo, soll ich dir ähnliche Immobilien kostenfrei per E-Mail schicken?


ÄHNLICHE IMMOBILIEN
Aehnliche Immobilie - Vorschaubild 1

PROVISIONSFREI | Süsses Leben - Ein Zuhause, das das Leben v... - Objektnr. 5574144

37,30 m² - 2.0 Zimmer
229500 €
PLZ: 1220

Mehr anzeigen

Aehnliche Immobilie - Vorschaubild 2

PROVISIONSFREI | Süsses Leben - Ein Zuhause, das das Leben v... - Objektnr. 5574133

37,40 m² - 2.0 Zimmer
236500 €
PLZ: 1220

Mehr anzeigen

Aehnliche Immobilie - Vorschaubild 3

Zwischen Natur & Stadt - Hochwertige 1-Zimmer-Eigentumswohnu... - Objektnr. 5619140

41,25 m² - 1.0 Zimmer
244000 €
PLZ: 1220

Mehr anzeigen

Durch die Nutzung unserer Seite erklären Sie sich mit der Verwendung von Cookies zur Verbesserung Ihres Online-Erlebnisses einverstanden. Detaillierte Informationen zu diesem und weiteren Themen erhalten Sie in unserer Datenschutzerklärung.