MEIN ERGEBNIS ANPASSEN

Vorsorgewohnungen Pfalzgasse 29 - Nachhaltig investieren in bester Lage - Objektnr. 5624575

1220
Ort
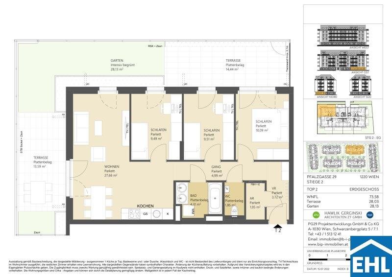
73,58 m²
Fläche
4.0
Zimmer
WEITERE MEDIEN

ECKDATEN
FindMyHome.at // Externe Immobilien-ID5624575 // 93877
ImmobilienartAnlage-Vorsorgewohnung - Eigentum
AnschriftPfalzgasse 29/2
1220 Wien
Beziehbar ab2030-03-01
Fläche73,58 m²
Terrassen1 (28,00 m²)
Zimmer4.0
Bad1
WC1
Kaufpreis:€ 400.000,00
Ratenzahlung:Finanzierungsmöglichkeiten für diese Immobilie anzeigen
Provision: 3% des Kaufpreises zzgl. 20% USt.







BESCHREIBUNG

Vorsorgewohnungen Pfalzgasse 29 - Nachhaltig investieren in bester Lage

Investieren im Grünen Nachhaltige Erträge zwischen Pfalz- und Podhagskygasse

In attraktiver Grünlage zwischen Pfalz- und Podhagskygasse präsentiert sich ein modernes Wohnensemble bestehend aus sechs architektonisch ansprechend gestalteten Punkthäusern. Das weitläufige Grundstück schafft ein harmonisches Zusammenspiel aus urbaner Infrastruktur und naturnahem Wohnkomfort ein Umfeld, das bei Mietern nachhaltig gefragt ist.

Für Anleger besonders attraktiv:
Alle zum Verkauf stehenden Wohnungen sind bereits vermietet und generieren ab dem ersten Tag laufende Mieteinnahmen. Es entsteht somit kein Vermietungsrisiko in der Startphase Sie investieren in einen bestehenden Cashflow.

Die großzügig angelegte Grünfläche, gepflegte Wegeführungen sowie durchdachte Aufenthaltsbereiche sorgen für hohe Wohnqualität. Diese Faktoren stärken langfristig die Vermietbarkeit, reduzieren Fluktuation und sichern stabile Erträge.

Nachhaltige Nachfrage durchdachte Wohnkonzepte

Die Wohnungen verfügen über 2 bis 4 Zimmer und sprechen damit eine breite Zielgruppe an von Singles und Paaren bis hin zu kleinen Familien oder anspruchsvollen Best Agern.

Wesentliche Vermietungsvorteile:

  • Funktionale, gut möblierbare Grundrisse
  • Wohnungsgrößen mit marktgerechter Flächeneffizienz
  • Jede Einheit mit privater Freifläche (Eigengarten im EG, Balkon, Terrasse oder Loggia)
  • Ruhige, grüne Umgebung bei gleichzeitig guter Erreichbarkeit
  • Hochwertige Ausstattung für langfristige Wertbeständigkeit

Freiflächen stellen in der Vermietung einen klaren Wettbewerbsvorteil dar und wirken sich positiv auf Mietpreisniveau sowie Wiedervermietungsdauer aus.

Das Projekt Überblick

  • 6 moderne Punkthäuser in aufgelockerter Bauweise
  • 24 Zimmerwohnungen
  • Marktgerechte Wohnungsgrößen (konkrete m²-Angaben ergänzen)
  • Jede Einheit mit Freifläche (Garten, Terrasse, Loggia oder Balkon)
  • Kinderwagen- und Fahrradabstellräume
  • Energieeffiziente Bauweise

Bereits fertiggestellt und größtenteils vermietet

Hochwertige Ausstattung nachhaltig & wartungsarm

Die technische und qualitative Ausführung ist auf Langlebigkeit, Energieeffizienz und geringen Instandhaltungsaufwand ausgelegt ein zentraler Faktor für Anleger.

1. Heizung & Energieversorgung

Zentralheizung mittels Luftwärmepumpe in Kombination mit Photovoltaikanlage zukunftssichere, energieeffiziente Lösung mit reduzierten Betriebskosten.

2. Kühlung

Temperierung über Fußbodenheizung im Change-Over-System; Dachgeschosswohnungen mit Vorbereitung für Split-Klimaanlage.

3. Fenster

3-fach-Isolierverglasung mit Dreh-Kipp-Beschlägen für optimale Wärme- und Schalldämmung.

4. Sonnenschutz

Außenjalousien (DG elektrisch), Außenrollläden (EG), teilweise elektrische Vorbereitung erhöhter Wohnkomfort und Energieeffizienz.

5. Bodenbeläge

Eiche-Zweischicht-Fertigparkett in Wohnräumen; hochwertige, rutschhemmende Keramikfliesen in Bad und WC.

6. Küchenausstattung

Moderne Einbauküchen mit Ober- und Unterschränken inklusive Markengeräten (Ceranfeld, Backofen, Geschirrspüler, Kühlschrank, Dunstabzug).

7. Sanitärausstattung

Marken-Sanitärkeramik (z. B. Laufen), Hänge-WC mit Unterputzspülkasten, bodenebene Walk-In-Dusche oder Badewanne, hochwertige Armaturen.

8. Sicherheit

Sicherheitseingangstüren (mind. 38 dB Schallschutz), EI2 30 brandhemmend, einbruchhemmende Ausführung mit Sicherheitsbeschlag.

9. Balkone & Terrassen

Versiegelte Betonoberflächen bzw. Feinsteinzeugplatten (60x60 cm), frostbeständiger Außenwasseranschluss je Einheit.


Wirtschaftlichkeit & Investmentfakten

Kaufpreise (Vorsorgewohnungen):
EUR 205.000,- bis EUR 415.000,- netto zzgl. 20 % USt.

Erwarteter Nettomietertrag:
ca. EUR 13,30 bis EUR 15,84 netto/m² (je nach Lage, Größe und Ausstattung der Einheit)

Besonderheiten für Anleger:

  • Sofortige Mieteinnahmen durch bestehende Mietverhältnisse
  • Keine Erstvermietungsphase
  • Energieeffiziente Bauweise reduziert Betriebskosten
  • Hochwertige Ausstattung minimiert Instandhaltungsrisiko
  • Attraktive Drittverwendbarkeit bei späterem Verkauf
  • Provisionsfrei für den Käufer
  • Fertigstellung bereits erfolgt

Steuerliche Aspekte

Es handelt sich um Vorsorgewohnungen, die zum Zweck der Vermietung erworben werden.
Der Kaufpreis versteht sich daher zzgl. 20 % USt. (Option zur Vorsteuerabzugsfähigkeit bei umsatzsteuerpflichtiger Vermietung möglich individuelle steuerliche Beratung empfohlen).

Fazit für Anleger

Dieses Projekt vereint drei entscheidende Erfolgsfaktoren eines nachhaltigen Immobilieninvestments:

  1. Attraktive Lage mit hoher Lebensqualität
  2. Sofortiger Cashflow durch bestehende Vermietung
  3. Qualitative und energieeffiziente Bauweise mit langfristiger Wertstabilität

Eine Investition in dieses Wohnensemble bedeutet planbare Einnahmen, solides Wertsteigerungspotenzial und ein zukunftsorientiertes Asset in begehrter Grünlage.

 

 

Wir weisen darauf hin, dass zwischen dem Vermittler und dem zu vermittelnden Dritten ein familiäres oder wirtschaftliches Naheverhältnis besteht.

Der Vermittler ist als Doppelmakler tätig.


Infrastruktur / Entfernungen

Gesundheit
Arzt <625m
Apotheke <625m
Klinik <1.675m
Krankenhaus <3.200m

Kinder & Schulen
Schule <425m
Kindergarten <200m
Universität <2.175m
Höhere Schule <2.175m

Nahversorgung
Supermarkt <375m
Bäckerei <675m
Einkaufszentrum <2.475m

Sonstige
Bank <750m
Geldautomat <575m
Post <750m
Polizei <1.450m

Verkehr
Bus <200m
U-Bahn <700m
Straßenbahn <225m
Bahnhof <925m
Autobahnanschluss <2.150m

Angaben Entfernung Luftlinie / Quelle: OpenStreetMap

Provision: 3% des Kaufpreises zzgl. 20% USt.


Alle Details anzeigen

KONTAKT






 

Lasse dich kostenlos vom Anbieter dieser Immobilie zurückrufen.







 


 
EHL Wohnen GmbH
Andrea PÖCHHACKER; MSc
Telefonnummer anzeigen Telefon Allgemein: +4315127690411
Handy Bearbeiter: +436648373481
 
Bitte dem Makler die FindMyHome.at - ID bekanntgeben: 5624575

Bewertungen dieses Anbieters
Qualitätsmakler
Qualitätsmakler:
Netiquette
Freundlichkeit
82 %

BEWERTUNGEN DIESES ANBIETERS

 
Qualitätsmakler
UNSERE HALL OF FAME DER BESTEN ANBIETER
Qualit�tsmakler
Qualitätsmakler
2012, 2013, 2014, 2015, 2016, 2017, 2018, 2019, 2020, 2021, 22/23, 2024, 2025
Weiterempfehlung
WIRD GERNE

Freundlichkeit
BESONDERS
FREUNDLICH
Netiquette
FINDMYHOME
NETIQUETTE
Auch du kannst bewerten! 7 Tage nach deiner Anfrage erhältst du dafür von uns ein Bewertungsmail.
Alle Infos zu unseren Auszeichnungen und dem FINDMYHOME.AT Qualitätsprogramm findest du hier: Übersicht anzeigen

FINANZIERUNG
?>

Du willst wissen, wie viel dein Umzug kosten wird?

Mach gleich den kostenlosen Preisvergleich und schau, welche seriösen Anbieter in deiner Region günstig deinen Umzug organisieren


ZUM UMZUGS-VERGLEICH
-->

MYHOME BLOG
SuchAgentin auf FindMyHome.at
Unterschiedlichen Rechtsthemen, köstliche Rezepte, neueste Design-Highlights, sowie aktuelle Technik-Tools für Ihr Eigenheim.


FINDMYHOME.AT SUCHAGENTIN
SuchAgentin auf FindMyHome.at
Hallo, soll ich dir ähnliche Immobilien kostenfrei per E-Mail schicken?


ÄHNLICHE IMMOBILIEN
Aehnliche Immobilie - Vorschaubild 1

Vermietet & rentabel - Ihre Rendite ab dem ersten Tag... - Objektnr. 5623965

59,63 m² - 2.0 Zimmer
409000 €
PLZ: 1220

Mehr anzeigen

Aehnliche Immobilie - Vorschaubild 2

Attraktive Vorsorgewohnungen in der Pfalzgasse 29 - Ihre Kap... - Objektnr. 5624568

72,66 m² - 3.0 Zimmer
415000 €
PLZ: 1220

Mehr anzeigen

Aehnliche Immobilie - Vorschaubild 3

Vorsorgewohnungen Pfalzgasse 29 - Nachhaltig investieren in ... - Objektnr. 5624576

77,96 m² - 4.0 Zimmer
412500 €
PLZ: 1220

Mehr anzeigen

Durch die Nutzung unserer Seite erklären Sie sich mit der Verwendung von Cookies zur Verbesserung Ihres Online-Erlebnisses einverstanden. Detaillierte Informationen zu diesem und weiteren Themen erhalten Sie in unserer Datenschutzerklärung.