MEIN ERGEBNIS ANPASSEN

Bis zu vier Prozent Rendite!- Vermietete Wohnungen zwischen Pfalz-und Podhagskygasse - Objektnr. 5624567


ökologisch beheizt
1220
Ort
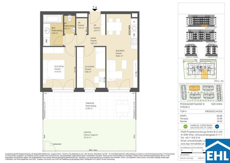
54,66 m²
Fläche
3.0
Zimmer
WEITERE MEDIEN

ECKDATEN
FindMyHome.at // Externe Immobilien-ID5624567 // 93885
ImmobilienartAnlage-Vorsorgewohnung - Eigentum
AnschriftPodhagskygasse 12/4
1220 Wien
Befeuerung
Luftwärmepumpe
Fläche54,66 m²
Terrassen1 (21,00 m²)
Zimmer3.0
Bad1
WC1
Kaufpreis:€ 325.000,00
Ratenzahlung:Finanzierungsmöglichkeiten für diese Immobilie anzeigen
Provision: 3% des Kaufpreises zzgl. 20% USt.







BESCHREIBUNG

Bis zu vier Prozent Rendite!- Vermietete Wohnungen zwischen Pfalz-und Podhagskygasse

Bis zu vier Prozent Rendite!- Vermietete Wohnungen zwischen Pfalz-und Podhagskygasse

In attraktiver Grünlage zwischen Pfalz- und Podhagskygasse präsentiert sich ein modernes Wohnensemble bestehend aus sechs architektonisch ansprechend gestalteten Punkthäusern. Das weitläufige Grundstück schafft ein harmonisches Zusammenspiel aus urbaner Infrastruktur und naturnahem Wohnkomfort ein Umfeld, das bei Mietern nachhaltig gefragt ist.

Für Anleger besonders attraktiv:
Alle zum Verkauf stehenden Wohnungen sind bereits vermietet und generieren ab dem ersten Tag laufende Mieteinnahmen. Es entsteht somit kein Vermietungsrisiko in der Startphase Sie investieren in einen bestehenden Cashflow.

Die großzügig angelegte Grünfläche, gepflegte Wegeführungen sowie durchdachte Aufenthaltsbereiche sorgen für hohe Wohnqualität. Diese Faktoren stärken langfristig die Vermietbarkeit, reduzieren Fluktuation und sichern stabile Erträge.

Nachhaltige Nachfrage durchdachte Wohnkonzepte

Die Wohnungen verfügen über 2 bis 4 Zimmer und sprechen damit eine breite Zielgruppe an von Singles und Paaren bis hin zu kleinen Familien oder anspruchsvollen Best Agern.

Wesentliche Vermietungsvorteile:

  • Funktionale, gut möblierbare Grundrisse
  • Wohnungsgrößen mit marktgerechter Flächeneffizienz
  • Jede Einheit mit privater Freifläche (Eigengarten im EG, Balkon, Terrasse oder Loggia)
  • Ruhige, grüne Umgebung bei gleichzeitig guter Erreichbarkeit
  • Hochwertige Ausstattung für langfristige Wertbeständigkeit

Freiflächen stellen in der Vermietung einen klaren Wettbewerbsvorteil dar und wirken sich positiv auf Mietpreisniveau sowie Wiedervermietungsdauer aus.

Das Projekt Überblick

  • 6 moderne Punkthäuser in aufgelockerter Bauweise
  • 24 Zimmerwohnungen
  • Marktgerechte Wohnungsgrößen (konkrete m²-Angaben ergänzen)
  • Jede Einheit mit Freifläche (Garten, Terrasse, Loggia oder Balkon)
  • Kinderwagen- und Fahrradabstellräume
  • Energieeffiziente Bauweise

Bereits fertiggestellt und größtenteils vermietet

Hochwertige Ausstattung nachhaltig & wartungsarm

Die technische und qualitative Ausführung ist auf Langlebigkeit, Energieeffizienz und geringen Instandhaltungsaufwand ausgelegt ein zentraler Faktor für Anleger.

1. Heizung & Energieversorgung

Zentralheizung mittels Luftwärmepumpe in Kombination mit Photovoltaikanlage zukunftssichere, energieeffiziente Lösung mit reduzierten Betriebskosten.

2. Kühlung

Temperierung über Fußbodenheizung im Change-Over-System; Dachgeschosswohnungen mit Vorbereitung für Split-Klimaanlage.

3. Fenster

3-fach-Isolierverglasung mit Dreh-Kipp-Beschlägen für optimale Wärme- und Schalldämmung.

4. Sonnenschutz

Außenjalousien (DG elektrisch), Außenrollläden (EG), teilweise elektrische Vorbereitung erhöhter Wohnkomfort und Energieeffizienz.

5. Bodenbeläge

Eiche-Zweischicht-Fertigparkett in Wohnräumen; hochwertige, rutschhemmende Keramikfliesen in Bad und WC.

6. Küchenausstattung

Moderne Einbauküchen mit Ober- und Unterschränken inklusive Markengeräten (Ceranfeld, Backofen, Geschirrspüler, Kühlschrank, Dunstabzug).

7. Sanitärausstattung

Marken-Sanitärkeramik (z. B. Laufen), Hänge-WC mit Unterputzspülkasten, bodenebene Walk-In-Dusche oder Badewanne, hochwertige Armaturen.

8. Sicherheit

Sicherheitseingangstüren (mind. 38 dB Schallschutz), EI2 30 brandhemmend, einbruchhemmende Ausführung mit Sicherheitsbeschlag.

9. Balkone & Terrassen

Versiegelte Betonoberflächen bzw. Feinsteinzeugplatten (60x60 cm), frostbeständiger Außenwasseranschluss je Einheit.


Wirtschaftlichkeit & Investmentfakten

Kaufpreise (Vorsorgewohnungen):
EUR 205.000,- bis EUR 415.000,- netto zzgl. 20 % USt.

Erwarteter Nettomietertrag:
ca. EUR 13,30 bis EUR 15,84 netto/m² (je nach Lage, Größe und Ausstattung der Einheit)

Besonderheiten für Anleger:

  • Sofortige Mieteinnahmen durch bestehende Mietverhältnisse
  • Keine Erstvermietungsphase
  • Energieeffiziente Bauweise reduziert Betriebskosten
  • Hochwertige Ausstattung minimiert Instandhaltungsrisiko
  • Attraktive Drittverwendbarkeit bei späterem Verkauf
  • Provisionsfrei für den Käufer
  • Fertigstellung bereits erfolgt

Steuerliche Aspekte

Es handelt sich um Vorsorgewohnungen, die zum Zweck der Vermietung erworben werden.
Der Kaufpreis versteht sich daher zzgl. 20 % USt. (Option zur Vorsteuerabzugsfähigkeit bei umsatzsteuerpflichtiger Vermietung möglich individuelle steuerliche Beratung empfohlen).

Fazit für Anleger

Dieses Projekt vereint drei entscheidende Erfolgsfaktoren eines nachhaltigen Immobilieninvestments:

  1. Attraktive Lage mit hoher Lebensqualität
  2. Sofortiger Cashflow durch bestehende Vermietung
  3. Qualitative und energieeffiziente Bauweise mit langfristiger Wertstabilität

Eine Investition in dieses Wohnensemble bedeutet planbare Einnahmen, solides Wertsteigerungspotenzial und ein zukunftsorientiertes Asset in begehrter Grünlage.

 

 

Wir weisen darauf hin, dass zwischen dem Vermittler und dem zu vermittelnden Dritten ein familiäres oder wirtschaftliches Naheverhältnis besteht.

Der Vermittler ist als Doppelmakler tätig.


Infrastruktur / Entfernungen

Gesundheit
Arzt <700m
Apotheke <700m
Klinik <1.650m
Krankenhaus <3.325m

Kinder & Schulen
Schule <475m
Kindergarten <175m
Universität <2.225m
Höhere Schule <2.250m

Nahversorgung
Supermarkt <475m
Bäckerei <725m
Einkaufszentrum <2.500m

Sonstige
Geldautomat <625m
Bank <875m
Post <875m
Polizei <1.550m

Verkehr
Bus <275m
U-Bahn <800m
Straßenbahn <350m
Bahnhof <950m
Autobahnanschluss <2.175m

Angaben Entfernung Luftlinie / Quelle: OpenStreetMap

Provision: 3% des Kaufpreises zzgl. 20% USt.


Alle Details anzeigen

KONTAKT






 

Lasse dich kostenlos vom Anbieter dieser Immobilie zurückrufen.







 


 
EHL Wohnen GmbH
Andrea PÖCHHACKER; MSc
Telefonnummer anzeigen Telefon Allgemein: +4315127690411
Handy Bearbeiter: +436648373481
 
Bitte dem Makler die FindMyHome.at - ID bekanntgeben: 5624567

Bewertungen dieses Anbieters
Qualitätsmakler
Qualitätsmakler:
Netiquette
Freundlichkeit
82 %

BEWERTUNGEN DIESES ANBIETERS

 
Qualitätsmakler
UNSERE HALL OF FAME DER BESTEN ANBIETER
Qualit�tsmakler
Qualitätsmakler
2012, 2013, 2014, 2015, 2016, 2017, 2018, 2019, 2020, 2021, 22/23, 2024, 2025, 2026
Weiterempfehlung
WIRD GERNE

Freundlichkeit
BESONDERS
FREUNDLICH
Netiquette
FINDMYHOME
NETIQUETTE
Auch du kannst bewerten! 7 Tage nach deiner Anfrage erhältst du dafür von uns ein Bewertungsmail.
Alle Infos zu unseren Auszeichnungen und dem FINDMYHOME.AT Qualitätsprogramm findest du hier: Übersicht anzeigen

FINANZIERUNG
?>

Du willst wissen, wie viel dein Umzug kosten wird?

Mach gleich den kostenlosen Preisvergleich und schau, welche seriösen Anbieter in deiner Region günstig deinen Umzug organisieren


ZUM UMZUGS-VERGLEICH
-->

MYHOME BLOG
SuchAgentin auf FindMyHome.at
Unterschiedlichen Rechtsthemen, köstliche Rezepte, neueste Design-Highlights, sowie aktuelle Technik-Tools für Ihr Eigenheim.


FINDMYHOME.AT SUCHAGENTIN
SuchAgentin auf FindMyHome.at
Hallo, soll ich dir ähnliche Immobilien kostenfrei per E-Mail schicken?


ÄHNLICHE IMMOBILIEN
Aehnliche Immobilie - Vorschaubild 1

Top Anlageobjekt - Sofortige Mieteinnahmen garantiert... - Objektnr. 5640284

50,33 m² - 2.0 Zimmer
286620 €
PLZ: 1220

Mehr anzeigen

Aehnliche Immobilie - Vorschaubild 2

Jetzt investieren - gesicherte Einnahmen und Top-Lage... - Objektnr. 5646783

50,97 m² - 2.0 Zimmer
289000 €
PLZ: 1220

Mehr anzeigen

Aehnliche Immobilie - Vorschaubild 3

Top Anlageobjekt - Sofortige Mieteinnahmen garantiert... - Objektnr. 5646782

46,20 m² - 2.0 Zimmer
265000 €
PLZ: 1220

Mehr anzeigen

Durch die Nutzung unserer Seite erklären Sie sich mit der Verwendung von Cookies zur Verbesserung Ihres Online-Erlebnisses einverstanden. Detaillierte Informationen zu diesem und weiteren Themen erhalten Sie in unserer Datenschutzerklärung.