MEIN ERGEBNIS ANPASSEN

2 Zimmer Wohnung mit Loggia im 7. Stock ab MÄRZ 2026 - Objektnr. 5624174


ökologisch beheizt
  • ZHS22_66
1220
Ort
€ 899,10
Gesamtkosten
46,28 m²
Fläche
2.0
Zimmer

ECKDATEN
FindMyHome.at // Externe Immobilien-ID5624174 // 3937
ImmobilienartWohnung - Miete
AnschriftZiegelhofstraße
1220 Wien
Baujahr2022
Befeuerung
Fernwärme
Stock7
Beziehbar ab2026-03-01
Mietdauer10
Fläche46,28 m²
Zimmer2.0
Bad1
WC1
Kaution:€ 2.700,00
Brutto-Miete:€ 899,10
Betriebskosten (inkl. MwSt):€ 97,20
Mehrwertsteuer:€ 81,74
Monatliche Gesamtkosten:€ 899,10
Provision: Gemäß Erstauftraggeberprinzip bezahlt der Abgeber die Provision.




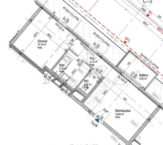
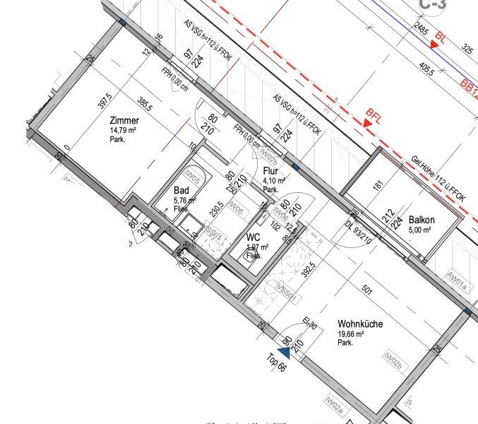
BESCHREIBUNG

2 Zimmer Wohnung mit Loggia im 7. Stock ab MÄRZ 2026

2-Zimmer-Wohnung mit Loggia auf 10 Jahre mit Option auf Verlängerung!

 

Die Wohnhausanlage befindet sich im 22. Wiener Bezirk, nahe dem Hirschstettner Badeteich und den Blumengärten Hirschstetten.

Die ca. 46 m² große Wohnung plus 5 m² Freifläche (Loggia), sucht einen neuen Nachmieter ab März

 

Beim Betreten der Wohnung gelangen Sie durch die Eingangstür in einen einladenden Flur, welcher Sie direkt mit der offenen Wohnküche und dem geräumigen Wohnbereich empfängt. Die Küche ist mit modernen Geräten ausgestattet und bietet Ihnen alles, was Sie für den täglichen Gebrauch benötigen. Von hier aus haben Sie ebenfalls Zugang zu der gemütlichen Loggia mit Weitblick!

Folgt man dem Flur nach links, gelangen Sie zum Badezimmer, welches mit einer Badewanne, einem Waschbecken und einem Waschmaschinenanschluss ausgestattet ist, sowie zum separat liegendes WC inkl. Handwaschbecken. Die letzte Tür führt Sie schlussendlich in das abgetrennte Schlafzimmer.

 

Geheizt wird in der Anlage mittels Fernwärme. Ein geräumiges Kellerabteil wir dem Mieter für die Mietdauer zur Verfügung gestellt. Ein Aufzug ist natürlich auch vorhanden. Die Hausanlage verfügt außerdem über einen Kinderwagen- und einen Fahrradabstellraum, sowie einem Party- bzw. Kinderspielraum und einer Waschküche.

Ein Autostellplatz kann in der Tiefgarage bei Bedarf und Verfügbarkeit separat angemietet werden.

 

Hinweis:

Die abgebildeten Fotos sind Aufnahmen einer ähnlichen Wohnung in der Anlage! Dementsprechend sind diese gut als Vergleich heranzuziehen! 

Aufbau gemäß dem Grundrissplan.

 

Ausstattung:

Parkettböden in den Wohnräumen, Fußbodenheizung, elektrische Außenjalousien, Internet- und Kabel-Anschlüsse, Gegensprechanlage; Sicherheitstür; Deckenkühlung

 

Konditionen:

Vermietet wird auf 10 Jahre ab März; mit Option auf Verlängerung

Kündigungsverzicht: 1 JahrKündigungsfrist: 3 Monate;

Gesamtmiete (inkl. BK und Steuern): € 899,10

Kaution: € 2.700,- // Vertragserrichtung: € 360, - // provisionsfrei für den Mieter!

 

Strom wird auf den Mieter umgemeldet. Heizung (Fernwärme und Wasser) wird direkt über Wien Energie verrechnet und auf den Mieter umgeschrieben.

TV und Internet sind nach Bedarf selbst an- und wieder abzumelden.

Ein Abschluss einer Haushaltsversicherung wird vor dem Einzug empfohlen.

 

 

Kontakt:

Bitte beachten Sie, dass wir aufgrund der Nachweispflicht gegenüber dem Eigentümer nur Anfragen mit vollständiger Angabe der Anschrift bearbeiten können.

Anfragen bitte daher mit vollständiger Angabe der personenbezogenen Daten: (Name, Nachname, Anschrift, E-mail und Telefonnummer) an: stifter@pr-immobilien.at

Ihre möglichen Terminvorschläge wären dafür sehr hilfreich! 

 

Bei weiteren Fragen können Sie sich ebenfalls jederzeit an die oben genannte E-Mail-Adresse wenden!

 


Wir freuen uns auf Ihre Antwort und verbleiben mit freundlichen Grüßen,

 

PR-Immobilien / REAL ESTATE

Frau Marissa Stifter (Maklerassistentin)

Mobil +43 / 676 590 02 80

WEB: www.pr-immobilien.at

E-Mail: 

Noch nichts gefunden Wir informieren Sie über geeignete Immobilienangebote noch vor allen anderen.
Legen Sie jetzt Ihren individuellen Suchagenten unter folgendem Link an. Wir schicken Ihnen passende Immobilien exklusiv vorab zu.
Suchagent anlegen - https://pr-immobilien-real-estate.service.immo/registrieren/de

Der Immobilienmakler erklärt, dass er entgegen dem in der Immobilienwirtschaft üblichen Geschäftsgebrauch des Doppelmaklers einseitig nur für den Vermieter tätig ist.


Infrastruktur / Entfernungen

Gesundheit
Arzt <250m
Apotheke <500m
Klinik <1.500m
Krankenhaus <2.250m

Kinder & Schulen
Schule <500m
Kindergarten <500m
Universität <3.000m
Höhere Schule <3.000m

Nahversorgung
Supermarkt <250m
Bäckerei <750m
Einkaufszentrum <1.500m

Sonstige
Bank <250m
Geldautomat <250m
Post <750m
Polizei <250m

Verkehr
Bus <250m
U-Bahn <1.000m
Straßenbahn <500m
Bahnhof <1.000m
Autobahnanschluss <1.250m

Angaben Entfernung Luftlinie / Quelle: OpenStreetMap

Klimaanlage: JA
Gartennutzung: JA
Kabel/SAT/TV: JA
Rollstuhlgerecht: JA
Provision: Gemäß Erstauftraggeberprinzip bezahlt der Abgeber die Provision.


Alle Details anzeigen

KONTAKT






 

Lasse dich kostenlos vom Anbieter dieser Immobilie zurückrufen.







 


 
PR-IMMOBILIEN / REAL ESTATE
Marissa Stifter
Telefonnummer anzeigen Telefon Allgemein: +436765900280
Handy Bearbeiter: +436765900280
 
Bitte dem Makler die FindMyHome.at - ID bekanntgeben: 5624174

Bewertungen dieses Anbieters
Netiquette
Freundlichkeit
80 %

BEWERTUNGEN DIESES ANBIETERS

 
Antwortzeit
ø 48h ANTWORT
Weiterempfehlung
WIRD GERNE

Freundlichkeit
BESONDERS
FREUNDLICH
Netiquette
FINDMYHOME
NETIQUETTE
Auch du kannst bewerten! 7 Tage nach deiner Anfrage erhältst du dafür von uns ein Bewertungsmail.
Alle Infos zu unseren Auszeichnungen und dem FINDMYHOME.AT Qualitätsprogramm findest du hier: Übersicht anzeigen


Du willst wissen, wie viel dein Umzug kosten wird?

Mach gleich den kostenlosen Preisvergleich und schau, welche seriösen Anbieter in deiner Region günstig deinen Umzug organisieren


ZUM UMZUGS-VERGLEICH
-->

MYHOME BLOG
SuchAgentin auf FindMyHome.at
Unterschiedlichen Rechtsthemen, köstliche Rezepte, neueste Design-Highlights, sowie aktuelle Technik-Tools für Ihr Eigenheim.


FINDMYHOME.AT SUCHAGENTIN
SuchAgentin auf FindMyHome.at
Hallo, soll ich dir ähnliche Immobilien kostenfrei per E-Mail schicken?


ÄHNLICHE IMMOBILIEN
Aehnliche Immobilie - Vorschaubild 1

Helle 2 Zimmerwohnung im Erdgeschoß mit 17m² großer Terrasse... - Objektnr. 5624896

51,40 m² - 2.0 Zimmer
987.7 €
PLZ: 1220

Mehr anzeigen

Aehnliche Immobilie - Vorschaubild 2

Hochwertige 2-Zimmer-Wohnung mit Outdoor-Bereich & offener K... - Objektnr. 5612774

55,30 m² - 2.0 Zimmer
900 €
PLZ: 1220

Mehr anzeigen

Aehnliche Immobilie - Vorschaubild 3

2-Zimmer-Dachterrassenwohnung mit Komplettküche & Kellerabte... - Objektnr. 5602024

44,31 m² - 2.0 Zimmer
899 €
PLZ: 1220

Mehr anzeigen

Durch die Nutzung unserer Seite erklären Sie sich mit der Verwendung von Cookies zur Verbesserung Ihres Online-Erlebnisses einverstanden. Detaillierte Informationen zu diesem und weiteren Themen erhalten Sie in unserer Datenschutzerklärung.