MEIN ERGEBNIS ANPASSEN

"Urban Oasis" - Erstbezug | 3-Zimmer Altbau | Balkon - Objektnr. 5624074

virtuell besichtigen
1030
Ort
101,36 m²
Fläche
3.0
Zimmer
WEITERE MEDIEN

Virtuelle Rundgänge


ECKDATEN
FindMyHome.at // Externe Immobilien-ID5624074 // 44360
ImmobilienartEigentum
Anschrift1030 Wien
Stock2
Geschosse6
Fläche101,36 m²
Zimmer3.0
 Abstellraum
Kaufpreis:€ 921.000,00
Ratenzahlung:Finanzierungsmöglichkeiten für diese Immobilie anzeigen
Provision: 3% des Kaufpreises zzgl. 20% USt.







BESCHREIBUNG

"Urban Oasis" - Erstbezug | 3-Zimmer Altbau | Balkon

Wohnprojekt "BeGa 23":
Ein mit Geschick und Feingefühl revitalisiertes Wiener Zinshaus in absoluter Bestlage der Stadt Wien. Ursprünglich erbaut vor über hundert Jahren in der goldenen Ära der 1900er-Jahre, erstrahlt diese einzigartige Immobilie heute in neuem Glanz. Dieses außergewöhnliche Zinshaus besticht mit einer perfekten Kombination aus absoluter Ruhe und unmittelbarer Nähe zum pulsierenden Stadtgeschehen. Die Lage der Liegenschaft ermöglicht dem Bewohner unglaublich flexibel zu sein. Monumentale Sehenswürdigkeiten, historische Bauten und schicke Alt-Wiener-Cafés schenken dem Bezirk seine Lebensqualität und seinen einzigartigen Flair. Hier lässt es sich leben wie nirgendwo anders. Ein optimaler Ausgangsort, um kulturell und kulinarisch auf seine Kosten zu kommen. Wenn Sie sich nach einer grünen Umgebung sehnen, können Sie sowohl den Stadtpark als auch den Grünen Prater innerhalb kürzester Zeit erreichen. 

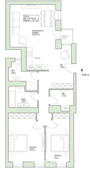
Wohnung Top 4:
Die Wohnung befindet sich im 2. Stock und hat eine Wohnfläche von ca. 101 m². Die Wohnung verfügt über einen Vorraum mit Abstellraum, eine Wohnküche, ein separates WC und Badezimmer sowie zwei Schlafzimmer. Von der Wohnküche aus hat man Zugang zu einem Balkon, der sich vor allem im Sommer als optimaler Rückzugsort eignet. Die Wohnung verfügt über eine Fußbodenheizung mit Einzelraumsteuerung sowie über eine Videogegensprechanlage, eine Sicherheitseingangstüre und Alt-Wien-Stil Innentüren. Im gesamten Wohnbereich ist hochwertiger Parkettboden im Fischgrät-Muster verlegt.

Highlights im Überblick:

  • Exzellente Lage inmitten Wiens
  • Großzügige Raumhöhen
  • Freiflächen bei jeder Wohnung
  • Zusammenspiel aus moderner Architektur und historischem Charme
  • Luxuriöse Ausstattung
  • Fußbodenheizung in jeder Wohnung
  • Beeindruckende Penthouses mit atemberaubenden Rooftop-Terrassen und 360°-Panoramablick
  • 11 exklusive Apartments mit einem brandneuen Aufzug
  • Garagenplätze für die Wohnungen im Dachgeschoss
  • Zentralheizung und Warmwasser über eine hochmoderne Gasbrennwertanlage im Keller, individuelle Verbrauchsmessung und separate Heizverteiler für jede Einheit
  • Niedrige Betriebskostenbelastung durch exzellente Sanierung und modernsten Stand der Technik

Erleben Sie Wohnkomfort auf höchstem Niveau in einer der begehrtesten Gegenden Wiens. Sichern Sie sich noch heute Ihre Traumwohnung in diesem herausragenden Wohnprojekt!

Auf Grund der EU-Richtlinien zum Fernabsatz- und Auswärtsgeschäfte-Gesetz bitten wir um Ihr Verständnis, dass wir Ihnen seit 13. Juni 2014 die Objekt-Unterlagen erst nach Ihrer Bestätigung, dass Sie unser Tätigwerden wünschen und über Ihre Rücktrittsrechte aufgeklärt wurden, zusenden können. Bevor Sie die Unterlagen zugesendet bekommen, erhalten Sie eine Mail in der Sie diese beiden Punkte bestätigen müssen. Vielen Dank für Ihr Vertrauen!

Sollten Sie nicht fündig geworden sein freuen wir uns auf Ihren Besuch auf unserer Website www.akkadia.at. Dort stehen viele weitere Immobilen zu Ihrer Auswahl.

Der Vermittler ist als Doppelmakler tätig.


Infrastruktur / Entfernungen

Gesundheit
Arzt <500m
Apotheke <500m
Klinik <1.000m
Krankenhaus <500m

Kinder & Schulen
Schule <500m
Kindergarten <500m
Universität <500m
Höhere Schule <1.000m

Nahversorgung
Supermarkt <500m
Bäckerei <500m
Einkaufszentrum <500m

Sonstige
Geldautomat <500m
Bank <500m
Post <500m
Polizei <500m

Verkehr
Bus <500m
U-Bahn <500m
Straßenbahn <500m
Bahnhof <500m
Autobahnanschluss <2.500m

Angaben Entfernung Luftlinie / Quelle: OpenStreetMap

Klimaanlage: JA
Provision: 3% des Kaufpreises zzgl. 20% USt.


Alle Details anzeigen

KONTAKT






 

Lasse dich kostenlos vom Anbieter dieser Immobilie zurückrufen.







 


 
AKKADIA Immobilienvermittlung GmbH
Elijah Euler-Rolle
Telefonnummer anzeigen Telefon Allgemein: +431512908558
Handy Bearbeiter: +431512908558
 
Bitte dem Makler die FindMyHome.at - ID bekanntgeben: 5624074

Bewertungen dieses Anbieters
Netiquette
Freundlichkeit

BEWERTUNGEN DIESES ANBIETERS

 
Freundlichkeit
BESONDERS
FREUNDLICH
Netiquette
FINDMYHOME
NETIQUETTE
Auch du kannst bewerten! 7 Tage nach deiner Anfrage erhältst du dafür von uns ein Bewertungsmail.
Alle Infos zu unseren Auszeichnungen und dem FINDMYHOME.AT Qualitätsprogramm findest du hier: Übersicht anzeigen

FINANZIERUNG
?>

Du willst wissen, wie viel dein Umzug kosten wird?

Mach gleich den kostenlosen Preisvergleich und schau, welche seriösen Anbieter in deiner Region günstig deinen Umzug organisieren


ZUM UMZUGS-VERGLEICH
-->

MYHOME BLOG
SuchAgentin auf FindMyHome.at
Unterschiedlichen Rechtsthemen, köstliche Rezepte, neueste Design-Highlights, sowie aktuelle Technik-Tools für Ihr Eigenheim.


FINDMYHOME.AT SUCHAGENTIN
SuchAgentin auf FindMyHome.at
Hallo, soll ich dir ähnliche Immobilien kostenfrei per E-Mail schicken?


ÄHNLICHE IMMOBILIEN
Aehnliche Immobilie - Vorschaubild 1

Klassische Wiener Altbauwohnung mit 4 Zimmern und Balkon mit... - Objektnr. 5622980

121,00 m² - 4.0 Zimmer
990000 €
PLZ: 1030

Mehr anzeigen

Aehnliche Immobilie - Vorschaubild 2

"Urban Oasis" - Rarität | Neubauwohnung in Jahrhundertwendeh... - Objektnr. 5624070

84,31 m² - 3.0 Zimmer
997000 €
PLZ: 1030

Mehr anzeigen

Aehnliche Immobilie - Vorschaubild 3

Luxuriöse Stadtresidenz mit 3 Zimmern und Loggia - ANDEA Par... - Objektnr. 5438902

81,37 m² - 3.0 Zimmer
1085000 €
PLZ: 1030

Mehr anzeigen

Durch die Nutzung unserer Seite erklären Sie sich mit der Verwendung von Cookies zur Verbesserung Ihres Online-Erlebnisses einverstanden. Detaillierte Informationen zu diesem und weiteren Themen erhalten Sie in unserer Datenschutzerklärung.