MEIN ERGEBNIS ANPASSEN

Ihr DG-Traum! Moderne 3-Zimmerwohnung mit 360 Grad Wienpanorama [A\] - Objektnr. 5624062

1090
Ort
125,10 m²
Fläche
3.0
Zimmer

ECKDATEN
FindMyHome.at // Externe Immobilien-ID5624062 // 64493
ImmobilienartEigentum
Anschrift1090 Wien
Stock6
Geschosse7
Fläche125,10 m²
Terrassen1 (64,00 m²)
Zimmer3.0
Bad3
WC2
 Abstellraum
Kaufpreis:€ 1.600.000,00
Ratenzahlung:Finanzierungsmöglichkeiten für diese Immobilie anzeigen
Provision: 3% des Kaufpreises zzgl. 20% USt.







BESCHREIBUNG

Ihr DG-Traum! Moderne 3-Zimmerwohnung mit 360 Grad Wienpanorama [A\]

Die Liegenschaft "ModernLiving9th"
Das Zinshaus wurde umfassend kernsaniert und befindet sich in einer der gefragtesten Gegenden Wiens, im 9. Bezirk Alsergrund. Es bietet hochwertig ausgestattete Wohnungen, die den Ansprüchen eines modernen urbanen Lebens gerecht werden. Jede Wohnung ist mit zeitgemäßen Annehmlichkeiten ausgestattet und bietet ein Höchstmaß an Komfort und Lebensqualität. Von stilvollen Parkettböden bis hin zu eleganten Badezimmern - hier wurde jedes Detail sorgfältig durchdacht, um einen Wohnstandard auf höchstem Niveau zu gewährleisten. Die gepflegte Nachbarschaft und Nähe zu erstklassigen Restaurants, Einkaufsmöglichkeiten, Bildungseinrichtungen und öffentlichen Verkehrsmitteln komplettieren das durchdachte Konzept dieser Immobilie.

Wohnung Top 21:
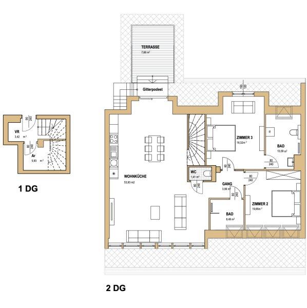
Die Wohnung erstreckt sich über das neu errichtete Dachgeschoß der Liegenschaft, das per Lift zu erreichen ist. Die Immobilie erstreckt sich über zwei Etagen und besticht mit einer einzigartigen Dachterrasse sowie einem ruhigen Balkon. Die Wohnfläche beträgt rund 125 m². Beim Betreten der Wohnung kommt man in den Eingangsbereich, der sich als exklusive Garderobe gestalten lässt. Über moderne Stufen gelangt man in die 2. Etage beziehungsweise den 7. Stock. Ein helles und geräumiges Wohnzimmer mit Zugang zum Balkon sowie der Dachterrasse stellt das Herzstück der Wohnung dar. Darüber hinaus gibt es zwei Schlafzimmer, zwei Badezimmer und ein Gäste-WC. Der Master-Bedroom verfügt über ein privates Badezimmer. Von der weitläufigen Dachterrasse aus hat man einen atemberaubenden Ausblick auf die umliegende Stadt sowie den Kahlenberg. Der 1.Bezirk mit Rathaus und Stephansdom scheinen zum Greifen nahe. Darüber hinaus verfügt die Wohnung über eine Fußbodenheizung mit Einzelraumsteuerung sowie über eine Videogegensprechanlage, eine Sicherheitseingangstüre und Alt-Wien-Stil Innentüren. Im gesamten Wohnbereich ist hochwertiger Parkettboden verlegt. Eine Klimaanlage ist vorhanden.

Highlights im Überblick:

  • Exzellente Lage inmitten Wiens
  • Charakteristische Raumhöhen
  • Großzügige Freiflächen
  • Niedrige Betriebskostenbelastung durch exzellente Sanierung und modernsten Stand der Technik
  • Zusammenspiel aus moderner Architektur und historischem Charme
  • Luxuriöse Ausstattung
  • Fußbodenheizung in jeder Wohnung
  • Zwei beeindruckende Maisonette-Dachgeschoß Wohnungen
  • 22 exklusive Apartments mit einem neuen Personenaufzug
  • Zentralheizung und Warmwasser über eine hochmoderne Gasbrennwertanlage im Keller, individuelle Verbrauchsmessung und separate Heizverteiler für jede Einheit

Sichern Sie sich noch heute Ihre Traumwohnung in diesem herausragenden Wohnprojekt! Aktuell sind noch 14 der 22 Wohneinheiten zum Verkauf verfügbar. Es besteht die Möglichkeit, Wohnungen zu Anlegerpreisen zu erwerben.

Auf Grund der EU-Richtlinien zum Fernabsatz- und Auswärtsgeschäfte-Gesetz bitten wir um Ihr Verständnis, dass wir Ihnen seit 13. Juni 2014 die Objekt-Unterlagen erst nach Ihrer Bestätigung, dass Sie unser Tätigwerden wünschen und über Ihre Rücktrittsrechte aufgeklärt wurden, zusenden können. Bevor Sie die Unterlagen zugesendet bekommen, erhalten Sie eine Mail in der Sie diese beiden Punkte bestätigen müssen. Vielen Dank für Ihr Vertrauen! 

Sollten Sie nicht fündig geworden sein freuen wir uns auf Ihren Besuch auf unserer Website www.akkadia.at. Dort stehen viele weitere Immobilen zu Ihrer Auswahl.

Der Vermittler ist als Doppelmakler tätig.


Infrastruktur / Entfernungen

Gesundheit
Arzt <500m
Apotheke <500m
Klinik <500m
Krankenhaus <500m

Kinder & Schulen
Schule <500m
Kindergarten <500m
Universität <500m
Höhere Schule <500m

Nahversorgung
Supermarkt <500m
Bäckerei <500m
Einkaufszentrum <1.000m

Sonstige
Geldautomat <500m
Bank <500m
Post <500m
Polizei <500m

Verkehr
Bus <500m
U-Bahn <500m
Straßenbahn <500m
Bahnhof <500m
Autobahnanschluss <3.000m

Angaben Entfernung Luftlinie / Quelle: OpenStreetMap

Klimaanlage: JA
Kabel/SAT/TV: JA
Provision: 3% des Kaufpreises zzgl. 20% USt.


Alle Details anzeigen

KONTAKT






 

Lasse dich kostenlos vom Anbieter dieser Immobilie zurückrufen.







 


 
AKKADIA Immobilienvermittlung GmbH
Elijah Euler-Rolle
Telefonnummer anzeigen Telefon Allgemein: +431512908558
Handy Bearbeiter: +431512908558
 
Bitte dem Makler die FindMyHome.at - ID bekanntgeben: 5624062

Bewertungen dieses Anbieters
Netiquette
Freundlichkeit

BEWERTUNGEN DIESES ANBIETERS

 
Freundlichkeit
BESONDERS
FREUNDLICH
Netiquette
FINDMYHOME
NETIQUETTE
Auch du kannst bewerten! 7 Tage nach deiner Anfrage erhältst du dafür von uns ein Bewertungsmail.
Alle Infos zu unseren Auszeichnungen und dem FINDMYHOME.AT Qualitätsprogramm findest du hier: Übersicht anzeigen

FINANZIERUNG
?>

Du willst wissen, wie viel dein Umzug kosten wird?

Mach gleich den kostenlosen Preisvergleich und schau, welche seriösen Anbieter in deiner Region günstig deinen Umzug organisieren


ZUM UMZUGS-VERGLEICH
-->

MYHOME BLOG
SuchAgentin auf FindMyHome.at
Unterschiedlichen Rechtsthemen, köstliche Rezepte, neueste Design-Highlights, sowie aktuelle Technik-Tools für Ihr Eigenheim.


FINDMYHOME.AT SUCHAGENTIN
SuchAgentin auf FindMyHome.at
Hallo, soll ich dir ähnliche Immobilien kostenfrei per E-Mail schicken?


Durch die Nutzung unserer Seite erklären Sie sich mit der Verwendung von Cookies zur Verbesserung Ihres Online-Erlebnisses einverstanden. Detaillierte Informationen zu diesem und weiteren Themen erhalten Sie in unserer Datenschutzerklärung.