MEIN ERGEBNIS ANPASSEN

Westseitiger 2-Zimmer-Altbau im 3. Stock! Balkonoption! - Objektnr. 5623619

1060
Ort
65,23 m²
Fläche
2.0
Zimmer

ECKDATEN
FindMyHome.at // Externe Immobilien-ID5623619 // 28547
ImmobilienartWohnung - Eigentum
AnschriftGumpendorfer Straße 118A/21
1060 Wien
Baujahr1903
Stock4
Geschosse7
Mietdauer3
Fläche65,23 m²
Zimmer2.0
Bad1
WC1
Kaufpreis:€ 459.000,00
Ratenzahlung:Finanzierungsmöglichkeiten für diese Immobilie anzeigen
Provision: 3% des Kaufpreises zzgl. 20% USt.







BESCHREIBUNG

Westseitiger 2-Zimmer-Altbau im 3. Stock! Balkonoption!

In dem wunderschönen Jahrhundertwendehaus in der Gumpendorfer Straße, welches 1903 errichtet wurde, gelangen mehrere Altbauwohnungen zum Verkauf. Der Zustand der Objekte reicht von sanierungsbedürftig bis bezugsfertig. 

 

Direkt gegenüber der Liegenschaft befindet sich der Lutherplatz, auf dem die stilvolle Gustav-Adolf-Kirche steht. Der Bruno-Kreisky-Park lädt zum gemütlichen Verweilen, Sporteln oder Spielen mit dem Hund ein.

Die Nahversorgung ist als sehr gut zu bewerten: Die Gumpendorfer Straße selbst bietet Supermärkte, Apotheken, Szene-Cafés und Restaurants. Die beliebte Shopping-Meile Mariahilfer Straße ist in wenigen Minuten fußläufig zu erreichen. Die öffentliche Verkehrsanbindung ist bestens gewährleistet. In wenigen Gehminuten sind die U-Bahnlinien U4 und U6 zu erreichen, die Buslinie 57A befindet sich unmittelbarer Nähe.

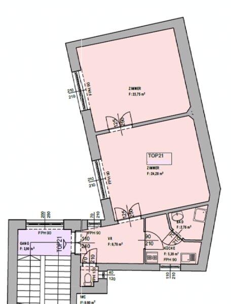
Diese sonnige Zwei-Zimmer-Einheit befindet sich im 3. Stock, verfügt über ca. 65 qm und ist rein hofseitig ausgerichtet.

Über den Vorraum gelangt man in die Küche, an die das Badezimmer angrenzt, in das separate WC sowie in das Wohnzimmer. Daran angrenzend befindet sich das Schlafzimmer. Die Wohnräume sind westseitig ausgerichtet. Die Raumhöhe beträgt ca. 3,40 m.

Das Objekt ist mit 2-fach-verglasten Kunststofffenstern, Parkettböden und Gasetagenheizung ausgestattet.

Der Balkon kann gegen einen Aufpreis von € 35.000 von der Verkäuferin errichtet werden.

 

 

Hinweis:  An der Liegenschaft besteht noch kein Wohnungseigentum, dieses wird im Zuge des ersten Abverkaufs begründet.

Die Errichtung des Personenaufzuges wird seitens der Verkäuferin binnen 24 Monaten ab Vertragsunterfertigung zugesagt,

Die Errichtungskosten werden seitens der Verkäuferin getragen.

 

Die Vertragserrichtung, Treuhandschaft und grundbücherliche Durchführung obliegt der Kanzlei MOSER legal, Plankengasse 2, 1010 Wien   in Höhe von 1,5 % des Kaufpreises zzgl. 20 % USt, Barauslagen und Notarskosten.

Dieses Objekt wird Ihnen unverbindlich und freibleibend zum Kauf angeboten. Oben angeführte Angaben basieren auf Informationen und Unterlagen der Eigentümerin und sind unsererseits ohne Gewähr. Als Vermittlungshonorar gelten die allgemeinen Geschäftsbedingungen und die Verordnung für Immobilienmakler des BM für Handel, Gewerbe und Industrie, BGBL. 297/1996. Für den Fall, dass es diesbezüglich zu einem entsprechenden Rechtsgeschäft kommt, verrechnen wir Ihnen eine Vermittlungsprovision von 3 Prozent der Kaufsumme zuzüglich der gesetzlichen Mehrwertsteuer. Wir möchten noch darauf hinweisen, dass wir in einem wirtschaftlichen Naheverhältnis zur Verkäuferin stehen.

 

Wir weisen darauf hin, dass zwischen dem Vermittler und dem zu vermittelnden Dritten ein familiäres oder wirtschaftliches Naheverhältnis besteht.


Infrastruktur / Entfernungen

Gesundheit
Arzt <150m
Apotheke <275m
Klinik <125m
Krankenhaus <250m

Kinder & Schulen
Schule <75m
Kindergarten <75m
Universität <825m
Höhere Schule <1.200m

Nahversorgung
Supermarkt <125m
Bäckerei <300m
Einkaufszentrum <925m

Sonstige
Geldautomat <275m
Bank <500m
Post <325m
Polizei <400m

Verkehr
Bus <50m
U-Bahn <275m
Straßenbahn <325m
Bahnhof <275m
Autobahnanschluss <4.025m

Angaben Entfernung Luftlinie / Quelle: OpenStreetMap

Provision: 3% des Kaufpreises zzgl. 20% USt.


Alle Details anzeigen

KONTAKT






 

Lasse dich kostenlos vom Anbieter dieser Immobilie zurückrufen.







 


 
WINEGG Makler GmbH
Christoph Kral
Telefonnummer anzeigen Telefon Allgemein: +4313157280
Handy Bearbeiter: +436766461289
 
Bitte dem Makler die FindMyHome.at - ID bekanntgeben: 5623619

Bewertungen dieses Anbieters
Qualitätsmakler
Qualitätsmakler:
2015, 2017, 2025,
Netiquette
Freundlichkeit
83 %

BEWERTUNGEN DIESES ANBIETERS

 
Qualit�tsmakler
Qualitätsmakler
2015, 2017, 2025
Weiterempfehlung
WIRD GERNE

Freundlichkeit
BESONDERS
FREUNDLICH
Netiquette
FINDMYHOME
NETIQUETTE
Auch du kannst bewerten! 7 Tage nach deiner Anfrage erhältst du dafür von uns ein Bewertungsmail.
Alle Infos zu unseren Auszeichnungen und dem FINDMYHOME.AT Qualitätsprogramm findest du hier: Übersicht anzeigen

FINANZIERUNG
?>

Du willst wissen, wie viel dein Umzug kosten wird?

Mach gleich den kostenlosen Preisvergleich und schau, welche seriösen Anbieter in deiner Region günstig deinen Umzug organisieren


ZUM UMZUGS-VERGLEICH
-->

MYHOME BLOG
SuchAgentin auf FindMyHome.at
Unterschiedlichen Rechtsthemen, köstliche Rezepte, neueste Design-Highlights, sowie aktuelle Technik-Tools für Ihr Eigenheim.


FINDMYHOME.AT SUCHAGENTIN
SuchAgentin auf FindMyHome.at
Hallo, soll ich dir ähnliche Immobilien kostenfrei per E-Mail schicken?


ÄHNLICHE IMMOBILIEN
Aehnliche Immobilie - Vorschaubild 1

Schöne 2-Zimmer Wohnung mit Balkon, Nähe Westbahnhof... - Objektnr. 5533718

72,82 m² - 2.0 Zimmer
461000 €
PLZ: 1060

Mehr anzeigen

Aehnliche Immobilie - Vorschaubild 2

TOP LAGE II GROSSZÜGIE UND KOMPLETT RUHIG GELEGENE ALTBAUWOH... - Objektnr. 5291478

67,59 m² - 2.0 Zimmer
449000 €
PLZ: 1060

Mehr anzeigen

Aehnliche Immobilie - Vorschaubild 3

++ ZUKUNFTSVORSORGE++ Top sanierte Wohnung in ruhiger Seiten... - Objektnr. 5605174

64,11 m² - 3.0 Zimmer
445000 €
PLZ: 1060

Mehr anzeigen

Durch die Nutzung unserer Seite erklären Sie sich mit der Verwendung von Cookies zur Verbesserung Ihres Online-Erlebnisses einverstanden. Detaillierte Informationen zu diesem und weiteren Themen erhalten Sie in unserer Datenschutzerklärung.