++ NEU in St. Andrä Wördern ++ STIEGE 1 – TOP 17 - Objektnr. 5623454
ECKDATEN
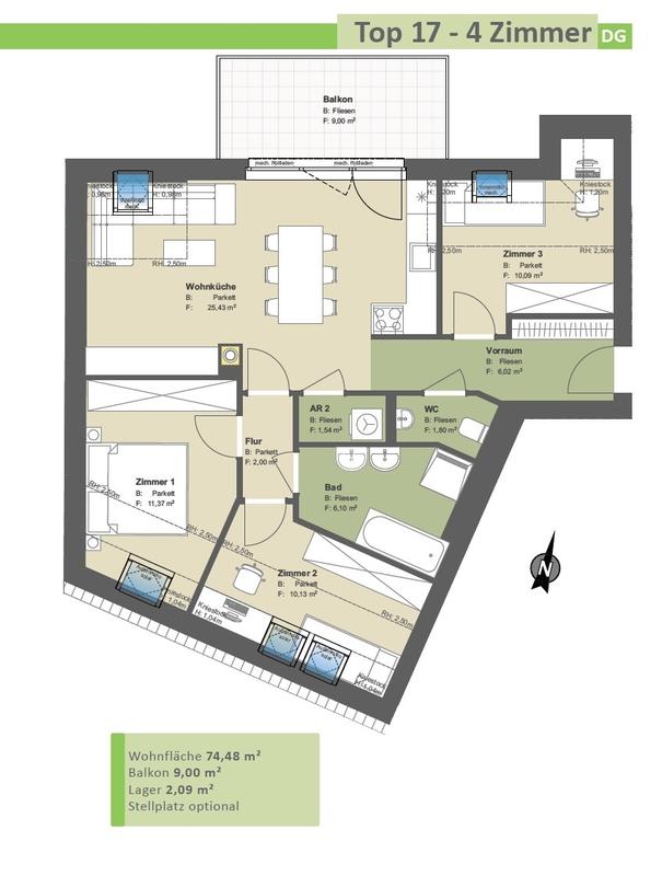
BESCHREIBUNG
KONTAKT
Lasse dich kostenlos vom Anbieter dieser Immobilie zurückrufen.
Prima Service PS Immobilien
PS Immo
PS Immo
Telefonnummer anzeigen
Handy Bearbeiter: +436643461311
Bitte dem Makler die FindMyHome.at - ID bekanntgeben: 5623454
Bitte dem Makler die FindMyHome.at - ID bekanntgeben: 5623454
BEWERTUNGEN DIESES ANBIETERS
UNSERE HALL OF FAME DER BESTEN ANBIETER
BESONDERS
FREUNDLICH
FREUNDLICH
Auch du kannst bewerten! 7 Tage nach deiner Anfrage erhältst du dafür von uns ein Bewertungsmail.
Alle Infos zu unseren Auszeichnungen und dem FINDMYHOME.AT Qualitätsprogramm findest du hier: Übersicht anzeigen
Alle Infos zu unseren Auszeichnungen und dem FINDMYHOME.AT Qualitätsprogramm findest du hier: Übersicht anzeigen
Du willst wissen, wie viel dein Umzug kosten wird?
Mach gleich den kostenlosen Preisvergleich und schau, welche seriösen Anbieter in deiner Region günstig deinen Umzug organisieren
ZUM UMZUGS-VERGLEICH







