++ DG-MAISONETTE mit WEITBLICK ++ im PROJEKT KARL74 - Objektnr. 5623057
ECKDATEN
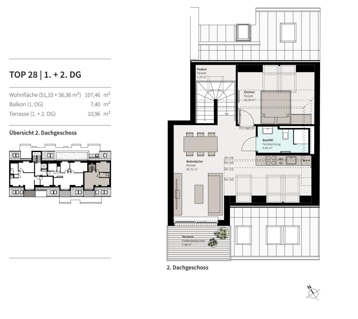
BESCHREIBUNG
KONTAKT
Lasse dich kostenlos vom Anbieter dieser Immobilie zurückrufen.
Prima Service PS Immobilien
PS Immo
PS Immo
Telefonnummer anzeigen
Handy Bearbeiter: +436643461311
Bitte dem Makler die FindMyHome.at - ID bekanntgeben: 5623057
Bitte dem Makler die FindMyHome.at - ID bekanntgeben: 5623057
BEWERTUNGEN DIESES ANBIETERS
UNSERE HALL OF FAME DER BESTEN ANBIETER
BESONDERS
FREUNDLICH
FREUNDLICH
Auch du kannst bewerten! 7 Tage nach deiner Anfrage erhältst du dafür von uns ein Bewertungsmail.
Alle Infos zu unseren Auszeichnungen und dem FINDMYHOME.AT Qualitätsprogramm findest du hier: Übersicht anzeigen
Alle Infos zu unseren Auszeichnungen und dem FINDMYHOME.AT Qualitätsprogramm findest du hier: Übersicht anzeigen
FINANZIERUNG
Du willst wissen, wie viel dein Umzug kosten wird?
Mach gleich den kostenlosen Preisvergleich und schau, welche seriösen Anbieter in deiner Region günstig deinen Umzug organisieren
ZUM UMZUGS-VERGLEICH










