MEIN ERGEBNIS ANPASSEN

| BALKON | IDEALE STARTERWOHNUNG - Objektnr. 5621975

8020
Ort
€ 624,74
Gesamtkosten
41,79 m²
Fläche
2.0
Zimmer

ECKDATEN
FindMyHome.at // Externe Immobilien-ID5621975 // 1152371
ImmobilienartWohnung - Miete
AnschriftAlte Poststraße
8020 Graz
Stock3
Mietdauer5
Zimmer2.0
Bad1
WC1
Brutto-Miete:€ 624,74
Betriebskosten (inkl. MwSt):€ 126,89
Mehrwertsteuer:€ 56,80
Monatliche Gesamtkosten:€ 624,74
Provision:




BESCHREIBUNG

| BALKON | IDEALE STARTERWOHNUNG

Zur Vermietung gelangen schöne Wohnungen in ausgezeichneter Verkehrslage in Graz.

 

 

Ein Stellplatz in der Tiefgarage (Euro 78,02 pro Monat) kann je nach Verfügbarkeit angemietet werden.

Mit dem Personenaufzug gelangen Sie bequem vom Erdgeschoss zu Ihrer neuen Wohnung und der Garage.

Jeder Wohnung ist ein Kellerraum zugeordnet!

 

 

Informationen zum Objekt und zur Ausstattung 

Die Wohnungen werden mittels Fernwärme beheizt.

Das Haus verfügt über eine zentrale Heizungs- und Warmwasseranlage zur Wärmeversorgung und zur Warmwasseraufbereitung.

In den einzelnen Wohneinheiten finden Sie hochwertige Küchen samt Kühl-/Gefrierkombinationen, Kochfeldern, Backrohren, Umluft-Dunstabzugshauben vor.

Anschlußmöglichkeiten für eine Waschmaschine sind in den Badezimmern vorhanden.

 

 

Lage

Zahlreiche Geschäfte für den täglichen Bedarf, Gastronomie für den kulinarischen Genuss sowie Parks und Grünanlagen bieten bestmöglichen Raum für Erholung und Entspannung. 

So lassen sich die täglichen Wege einfach und problemlos zu Fuß oder mit dem Fahrrad erledigen.

Direkt vor der Haustüre befindet sich die Haltestelle der Linie 65A. Fußläufig sind auch die Linien 4 und 7 zu erreichen.  

 

 

 

 

 

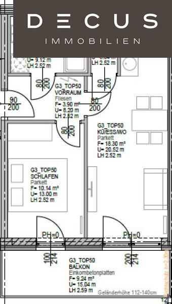
Die Raumaufteilung präsentiert sich folgendermaßen:

  • Vorraum
  • Wohn-/Esszimmer mit Küche
  • 1 Schlafzimmer
  • Badezimmer mit Dusche und Toilette
  • Balkon

 

 

Wir weisen darauf hin, dass zwischen dem Vermittler und dem zu vermittelnden Dritten ein familiäres oder wirtschaftliches Naheverhältnis besteht.

DECUS Immobilien GmbH – Wir beleben Räume

Für weitere Informationen und Besichtigungen steht Ihnen gerne Frau  Michaela Samt unter der Mobilnummer +43 660 31 35 274 und per E-Mail unter samt@decus.at persönlich zur Verfügung.

www.decus.at | office@decus.at 

 

Wichtige Informationen

Bitte beachten Sie, dass per 13.06.2014 eine neue Richtlinie für Fernabsatz- und Auswärtsgeschäfte in Kraft getreten ist.

Ab 1.4.2024 entfallen die Grundbuchs- und Pfandrechtseintragungsgebühren vorübergehend für Eigenheime bis zu einer Bemessungsgrundlage von EUR 500.000,-. Voraussetzung ist das dringende Wohnbedürfnis, ausgenommen davon sind vererbte oder geschenkte Immobilien. Die Befreiung ist jedoch für den Einzelfall zu prüfen, DECUS Immobilien übernimmt hierzu keine Haftung.

Ab 01.07.2023 gilt das Erstauftraggeber-Prinzip bei Wohnungsmietverträgen, ausgenommen davon sind Dienst-/Natural-/Werkswohnungen. Wir dürfen gem. § 17 Maklergesetz darauf hinweisen, dass wir auf die Doppelmaklertätigkeit gem. § 5 Maklergesetz bei Wohnungsmietverträgen verzichten und nur noch einseitig tätig sind (bei den restlichen Vermittlungsarten nicht) und ein wirtschaftliches Naheverhältnis zu unseren Auftraggebern besteht. 

Im Falle eines Abschlusses mit Ihnen oder einem von Ihnen namhaft gemachten Dritten bzw. bei beidseitiger Willensübereinstimmung beträgt unser Honorar (lt. Honorarverordnung für Immobilienmakler) 2 Bruttomonatsmieten (BMM) bei Dienst-/Natural-/Werkwohnungen sowie Suchaufträgen, 3 BMM bei Gewerbe-, PKW-, Keller- und Lagermietverträgen sowie bei Kaufobjekten 3 % des Kaufpreises, zuzüglich der gesetzlichen Umsatzsteuer.

Dieses Objekt wird Ihnen unverbindlich und freibleibend angeboten. Oben angeführte Angaben basieren auf Informationen und Unterlagen des Eigentümers und sind unsererseits ohne Gewähr.

Nähere Informationen sowie unsere AGBs und die Nebenkostenübersichtsblatt finden Sie auf unserer Homepage www.decus.at unter "Service" - "Rechtliches zum FAGG" sowie im Anhang der zugesendeten Objekt-Exposés!


Infrastruktur / Entfernungen

Gesundheit
Arzt <500m
Apotheke <500m
Klinik <750m
Krankenhaus <750m

Kinder & Schulen
Schule <500m
Kindergarten <250m
Universität <1.000m
Höhere Schule <1.000m

Nahversorgung
Supermarkt <250m
Bäckerei <750m
Einkaufszentrum <1.250m

Sonstige
Geldautomat <500m
Bank <500m
Post <750m
Polizei <1.000m

Verkehr
Bus <250m
Straßenbahn <500m
Autobahnanschluss <5.000m
Bahnhof <1.000m

Angaben Entfernung Luftlinie / Quelle: OpenStreetMap

Kabel/SAT/TV: JA
Provision:


Alle Details anzeigen

KONTAKT






 

Lasse dich kostenlos vom Anbieter dieser Immobilie zurückrufen.







 


 
DECUS Immobilien GmbH
Michaela Samt
Telefonnummer anzeigen Telefon Allgemein: +436603135274
Handy Bearbeiter: +436603135274
 
Bitte dem Makler die FindMyHome.at - ID bekanntgeben: 5621975

Bewertungen dieses Anbieters
Qualitätsmakler
Qualitätsmakler:
2019, 2020, 2021, 2023, 2024, 2025,
Netiquette
Freundlichkeit
83 %

BEWERTUNGEN DIESES ANBIETERS

 
Qualit�tsmakler
Qualitätsmakler
2019, 2020, 2021, 22/23, 2024, 2025
Weiterempfehlung
WIRD GERNE

Freundlichkeit
BESONDERS
FREUNDLICH
Netiquette
FINDMYHOME
NETIQUETTE
Auch du kannst bewerten! 7 Tage nach deiner Anfrage erhältst du dafür von uns ein Bewertungsmail.
Alle Infos zu unseren Auszeichnungen und dem FINDMYHOME.AT Qualitätsprogramm findest du hier: Übersicht anzeigen


Du willst wissen, wie viel dein Umzug kosten wird?

Mach gleich den kostenlosen Preisvergleich und schau, welche seriösen Anbieter in deiner Region günstig deinen Umzug organisieren


ZUM UMZUGS-VERGLEICH
-->

MYHOME BLOG
SuchAgentin auf FindMyHome.at
Unterschiedlichen Rechtsthemen, köstliche Rezepte, neueste Design-Highlights, sowie aktuelle Technik-Tools für Ihr Eigenheim.


FINDMYHOME.AT SUCHAGENTIN
SuchAgentin auf FindMyHome.at
Hallo, soll ich dir ähnliche Immobilien kostenfrei per E-Mail schicken?


ÄHNLICHE IMMOBILIEN
Aehnliche Immobilie - Vorschaubild 1

| 2 ZIMMER | NÄHE HAUPTBAHNHOF - Objektnr. 5615805


52,50 m² - 2.0 Zimmer
647.24 €
PLZ: 8020

Mehr anzeigen

Aehnliche Immobilie - Vorschaubild 2

SONNIGE 2-ZIMMERWOHNUNG IN REININGHAUS MIT TOPAUSSTATTUNG + ... - Objektnr. 5606490

47,45 m² - 2.0 Zimmer
749 €
PLZ: 8020

Mehr anzeigen

Aehnliche Immobilie - Vorschaubild 3

| 1. MONAT MIETFREI | 2 ZIMMER | AB MÄRZ 2026 VERFÜGBAR |SÜD... - Objektnr. 5582122

48,62 m² - 2.0 Zimmer
749 €
PLZ: 8020

Mehr anzeigen

Durch die Nutzung unserer Seite erklären Sie sich mit der Verwendung von Cookies zur Verbesserung Ihres Online-Erlebnisses einverstanden. Detaillierte Informationen zu diesem und weiteren Themen erhalten Sie in unserer Datenschutzerklärung.