MEIN ERGEBNIS ANPASSEN

Gartenwohnung Nähe U4 Pilgramgasse - Objektnr. 5621963

  • Hausansicht
  • Hofansicht
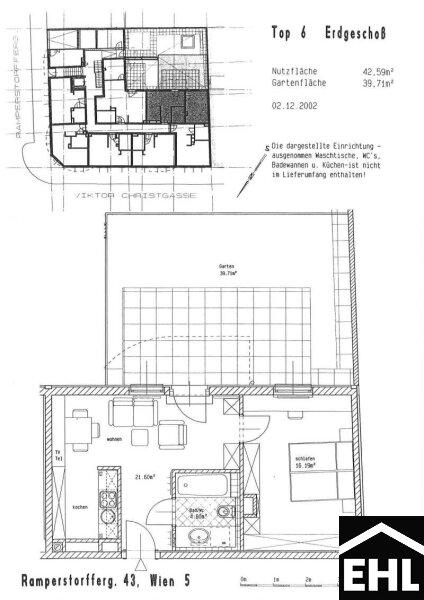
  • Plan
1050
Ort
€ 967,22
Gesamtkosten
42,59 m²
Fläche
2.0
Zimmer

ECKDATEN
FindMyHome.at // Externe Immobilien-ID5621963 // 2489
ImmobilienartWohnung - Miete
AnschriftRamperstorffergasse
1050 Wien
Mietdauer5
Fläche42,59 m²
Terrassen1
Zimmer2.0
Bad1
WC1
Kaution:€ 2.901,66
Brutto-Miete:€ 967,22
Betriebskosten (inkl. MwSt):€ 136,11
Mehrwertsteuer:€ 87,93
Monatliche Gesamtkosten:€ 967,22
Provision: Gemäß Erstauftraggeberprinzip bezahlt der Abgeber die Provision.




BESCHREIBUNG

Gartenwohnung Nähe U4 Pilgramgasse

Tolle 2 Zimmerwohnung Nähe U4 Pilgramgasse!

Diese Wohnung befindet sich im Erdgeschoss eines modernen Neubaus im 5. Bezirk. Sie verfügt über einen großzügigen Wohnraum mit Kochnische, ein getrennt begehbares Schlafzimmer, sowie ein Badezimmer mit Badewanne, WC und Waschmaschinenanschluss. Die großzügige Terrasse mit knapp 40 m² bietet Ihnen reichlich Zeit an der frischen Luft und rundet das Wohnerlebnis bestens ab. 
Zwischen Naschmarkt und Siebenbrunnenplatz gelegen, sind hier zahlreiche Restaurants und Geschäfte des täglichen Bedarfs in unmittelbarer Reichweite. Eine aufblühende Lokalszene und die gute Erreichbarkeit zur Innenstadt machen die Lage besonders beliebt.

Bei den Fotos handelt es sich um Musterfotos!


Ausstattung

  • voll ausgestattete Küche
  • Badezimmer mit Badewanne, WC und Waschmaschinenanschluss
  • Parkettböden in den Wohnräumen
  • Fliesen in den Nassräumen
  • Lift im Haus

Das Objekt ist nicht barrierefrei.

 

Öffentliche Verkehrsanbindung
U-Bahnlinie U4 "Pilgramgasse"
Buslinie 12A, 14A, 59A

zzgl. Heizung EUR 83,28 + USt. 16,66 EUR = Brutto EUR 99,94

zzgl. Warmwasser EUR 29,74 + USt. EUR 2,97 = Brutto EUR 32,71

Befristung: 5 Jahre, 1 Jahr Kündigungsverzicht, 3 Monate Kündigungsfrist  

Nebenkosten:
3 BMM Kaution

Wir weisen darauf hin, dass zwischen dem Vermittler und dem zu vermittelnden Dritten ein familiäres oder wirtschaftliches Naheverhältnis besteht.

Der Immobilienmakler erklärt, dass er entgegen dem in der Immobilienwirtschaft üblichen Geschäftsgebrauch des Doppelmaklers einseitig nur für den Vermieter tätig ist.


Infrastruktur / Entfernungen

Gesundheit
Arzt <250m
Apotheke <250m
Klinik <750m
Krankenhaus <500m

Kinder & Schulen
Schule <250m
Kindergarten <250m
Universität <500m
Höhere Schule <500m

Nahversorgung
Supermarkt <250m
Bäckerei <500m
Einkaufszentrum <750m

Sonstige
Geldautomat <500m
Bank <500m
Post <500m
Polizei <250m

Verkehr
Bus <250m
U-Bahn <250m
Straßenbahn <500m
Bahnhof <750m
Autobahnanschluss <3.500m

Angaben Entfernung Luftlinie / Quelle: OpenStreetMap

Provision: Gemäß Erstauftraggeberprinzip bezahlt der Abgeber die Provision.


Alle Details anzeigen

KONTAKT






 

Lasse dich kostenlos vom Anbieter dieser Immobilie zurückrufen.







 


 
EHL Wohnen GmbH
Leo Idinger
Telefonnummer anzeigen Telefon Allgemein: +4315127690407
 
Bitte dem Makler die FindMyHome.at - ID bekanntgeben: 5621963

Bewertungen dieses Anbieters
Qualitätsmakler
Qualitätsmakler:
Netiquette
Freundlichkeit
82 %

BEWERTUNGEN DIESES ANBIETERS

 
Qualitätsmakler
UNSERE HALL OF FAME DER BESTEN ANBIETER
Qualit�tsmakler
Qualitätsmakler
2012, 2013, 2014, 2015, 2016, 2017, 2018, 2019, 2020, 2021, 22/23, 2024, 2025
Weiterempfehlung
WIRD GERNE

Freundlichkeit
BESONDERS
FREUNDLICH
Netiquette
FINDMYHOME
NETIQUETTE
Auch du kannst bewerten! 7 Tage nach deiner Anfrage erhältst du dafür von uns ein Bewertungsmail.
Alle Infos zu unseren Auszeichnungen und dem FINDMYHOME.AT Qualitätsprogramm findest du hier: Übersicht anzeigen


Du willst wissen, wie viel dein Umzug kosten wird?

Mach gleich den kostenlosen Preisvergleich und schau, welche seriösen Anbieter in deiner Region günstig deinen Umzug organisieren


ZUM UMZUGS-VERGLEICH
-->

MYHOME BLOG
SuchAgentin auf FindMyHome.at
Unterschiedlichen Rechtsthemen, köstliche Rezepte, neueste Design-Highlights, sowie aktuelle Technik-Tools für Ihr Eigenheim.


FINDMYHOME.AT SUCHAGENTIN
SuchAgentin auf FindMyHome.at
Hallo, soll ich dir ähnliche Immobilien kostenfrei per E-Mail schicken?


ÄHNLICHE IMMOBILIEN
Aehnliche Immobilie - Vorschaubild 1

Wunderschöne 2-Zimmer Neubauwohnung Nähe Margaretengürtel... - Objektnr. 5619763

46,00 m² - 2.0 Zimmer
899 €
PLZ: 1050

Mehr anzeigen

Aehnliche Immobilie - Vorschaubild 2

Top 2-Zimmerwohnung im 5. Bezirk! - Objektnr. 5621962


48,18 m² - 2.0 Zimmer
999.83 €
PLZ: 1050

Mehr anzeigen

Aehnliche Immobilie - Vorschaubild 3

Modernes Appartement in 1050 Wien - Ihr neues Zuhause auf 44... - Objektnr. 5613818

44,00 m² - 1.5 Zimmer
1039 €
PLZ: 1050

Mehr anzeigen

Durch die Nutzung unserer Seite erklären Sie sich mit der Verwendung von Cookies zur Verbesserung Ihres Online-Erlebnisses einverstanden. Detaillierte Informationen zu diesem und weiteren Themen erhalten Sie in unserer Datenschutzerklärung.