MEIN ERGEBNIS ANPASSEN

++ JETZT investieren ++ TOP Lage, TOP Grundriss, PROJEKT KARL74 - Objektnr. 5621481

  • A1
  • A2
  • B
  • Bad
  • C
  • D
  • E
  • F
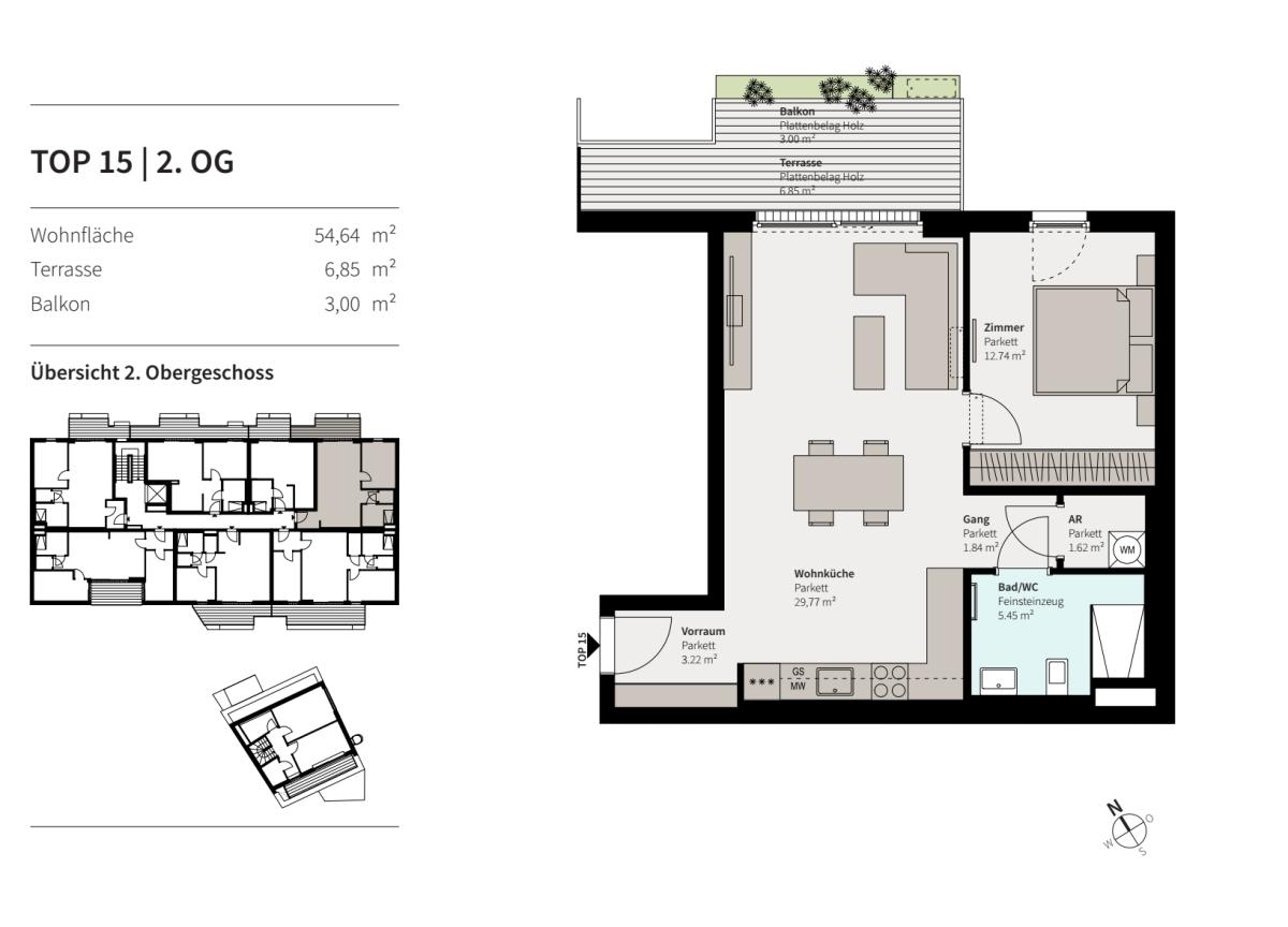
  • TOP 15 2. OG
  • W
  • X
  • Y
  • Prima Logo
1220
Ort
54,63 m²
Fläche
2
Zimmer

ECKDATEN
FindMyHome.at // Externe Immobilien-ID5621481 // 362/10286
ImmobilienartWohnung - Eigentum
AnschriftErzherzog Karl Strasse
1220 Wien
Baujahr2025
Alt- oder NeubauNeubau
NäheDonauzentrum
Stock2
Liftja
Garagenplätze1
KellerJa
Beziehbar absofort
Fläche54,63 m²
Balkon2 (10,00 m²)
Zimmer2
Bad1
WC1
 Abstellraum
Kaufpreis:€ 292.000,00
Ratenzahlung:Finanzierungsmöglichkeiten für diese Immobilie anzeigen
Mehrwertsteuer:€ 4.896,00
Provision: 3%







BESCHREIBUNG

++ JETZT investieren ++ TOP Lage, TOP Grundriss, PROJEKT KARL74

++ JETZT investieren ++ TOP Lage, TOP Grundriss, PROJEKT KARL74

++ Erzherzog-Karl-Straße | Bezugsfertig ab SOFORT ++

++ BESICHTIGUNGEN bereits MÖGLICH ++

Inmitten der begehrten Donaustadt wurde ein stilvolles Neubauprojekt realisiert.
Insgesamt wurden 33 freifinanzierte Eigentumswohnungen sowie eine Gewerbefläche errichtet – ergänzt durch eine hauseigene Tiefgarage mit 18 Stellplätzen, teils vorbereitet für E-Mobilität.

Top 15 – ZWEI Zimmer Wohnung im 2. Obergeschoss:

Wohnfläche: ca. 54,63 m² | 2 Zimmer
Freifläche: Balkon ca. 3,00 m² + Terrasse ca. 6,85 m²

Raumaufteilung:
- Vorraum
- Wohn-/Essbereich mit offener Küche
- Schlafzimmer
- Bad mit bodengleicher Dusche
- getrennte Toilette
- Abstellraum mit Waschmaschinenanschluss

Kaufpreis:
Top 15 um EUR 292.000.-

PKW Tiefgaragenplatz optional um EUR 35.000.- möglich!


Ausstattungshighlights:
- Barrierefreier Zugang zu allen Geschossen inkl. Tiefgarage
- Echtholzparkett in den Wohnräumen
- Großformatige Fliesen & Feinsteinzeug in den Nassbereichen
- Hochwertige Sanitärausstattung
- Vorbereitung für Klimaanlage in allen Wohnungen
- Klimageräte im Dachgeschoss serienmäßig
- 3-fach-verglaste Kunststofffenster für optimalen Wärme- & Schallschutz
- Wohnungseingangstüren Sicherheitsklasse RC3/WK3
- Holzböden auf Balkonen & Terrassen
- Wasseranschluss auf allen Freiflächen
- Luft/Wasser-Wärmepumpe
- Eigener Einlagerungsraum + Fahrrad- & Kinderwagenabstellräume mit E-Bike-Steckdosen
- 18 Tiefgaragenplätze

Lage – Erzherzog trifft Lebensqualität:
Die Erzherzog-Karl-Straße überzeugt durch ihre zentrale Lage mit perfekter Infrastruktur.
Nur 15 Minuten ins Stadtzentrum oder zum Gänsehäufel.
Donauzentrum, Alte Donau und Kaisermühlen sind fußläufig erreichbar.
Nahversorger, Kindergärten und Schulen befinden sich in unmittelbarer Nähe.
Straßenbahnlinie 25, mehrere Buslinien und S-Bahn S80 in Gehdistanz.U1 und U2 in wenigen Minuten erreichbar – ideal für Pendler und Stadtmenschen.

Fazit:

Ob als komfortables Eigenheim oder wertstabile Vorsorgewohnung – dieses Neubauprojekt vereint moderne Architektur, hochwertige Bauqualität und ausgezeichnete Lage in einem der zukunftssichersten Bezirke Wiens.

Ich freue mich auf Ihre Anfrage - für eine Besichtigung stehe ich jederzeit zur Verfügung!

Ansprechpartnerin:
Frau Franziska Schmutz
Tel: 0664 346 13 11
Mail: office@ps-immo.co.at
Homepage: www.ps-immo.co.at

Nebenkosten:
Grunderwerbssteuer: 3,5% vom Kaufpreis
Grundbucheintragungsgebühr: 1,1% vom Kaufpreis
Kosten der Vertragserrichtung: 1,5% vom Kaufpreis + Ust. (Anwaltsgebunden)
Maklerprovision: 3,0% vom Kaufpreis + Ust.

Wir halten fest, dass ein wirtschaftliches Naheverhältnis zum Abgeber besteht - eine Weitergabe an andere Interessenten ohne Rücksprache mit uns ist nicht gestattet.Prima Service PS Immobilien tritt als Doppelmakler auf. Alle Angaben sind ohne Gewähr und basieren ausschließlich auf Informationen, die uns von unserem Auftraggeber zur Verfügung gestellt wurden.Wir übernehmen keine Gewähr für die Vollständigkeit, Richtigkeit und Aktualität dieser Angaben.Barrierefrei: JA
Provision: 3%


Alle Details anzeigen

KONTAKT






 

Lasse dich kostenlos vom Anbieter dieser Immobilie zurückrufen.







 


 
Prima Service PS Immobilien
PS Immo
Telefonnummer anzeigen Handy Bearbeiter: +436643461311
 
Bitte dem Makler die FindMyHome.at - ID bekanntgeben: 5621481

Bewertungen dieses Anbieters
Qualitätsmakler
Qualitätsmakler:
Freundlichkeit

BEWERTUNGEN DIESES ANBIETERS

 
Qualitätsmakler
UNSERE HALL OF FAME DER BESTEN ANBIETER
Qualit�tsmakler

Freundlichkeit
BESONDERS
FREUNDLICH
Auch du kannst bewerten! 7 Tage nach deiner Anfrage erhältst du dafür von uns ein Bewertungsmail.
Alle Infos zu unseren Auszeichnungen und dem FINDMYHOME.AT Qualitätsprogramm findest du hier: Übersicht anzeigen

FINANZIERUNG
?>

Du willst wissen, wie viel dein Umzug kosten wird?

Mach gleich den kostenlosen Preisvergleich und schau, welche seriösen Anbieter in deiner Region günstig deinen Umzug organisieren


ZUM UMZUGS-VERGLEICH
-->

MYHOME BLOG
SuchAgentin auf FindMyHome.at
Unterschiedlichen Rechtsthemen, köstliche Rezepte, neueste Design-Highlights, sowie aktuelle Technik-Tools für Ihr Eigenheim.


FINDMYHOME.AT SUCHAGENTIN
SuchAgentin auf FindMyHome.at
Hallo, soll ich dir ähnliche Immobilien kostenfrei per E-Mail schicken?


ÄHNLICHE IMMOBILIEN
Aehnliche Immobilie - Vorschaubild 1

Exklusive 2-Zimmer-Neubauwohnung mit zwei Balkonen - PROVISI... - Objektnr. 5589964

45,20 m² - 2.0 Zimmer
329000 €
PLZ: 1220

Mehr anzeigen

Aehnliche Immobilie - Vorschaubild 2

Ihre moderne neue Traumwohnung in einer naturnahen Lage! Ab ... - Objektnr. 5440604

54,09 m² - 2.0 Zimmer
299900 €
PLZ: 1220

Mehr anzeigen

Aehnliche Immobilie - Vorschaubild 3

Hof am Park - Südseitige 2-Zimmer-Wohnung mit perfekter Lage... - Objektnr. 5600588

50,58 m² - 2 Zimmer
289000 €
PLZ: 1220

Mehr anzeigen

Durch die Nutzung unserer Seite erklären Sie sich mit der Verwendung von Cookies zur Verbesserung Ihres Online-Erlebnisses einverstanden. Detaillierte Informationen zu diesem und weiteren Themen erhalten Sie in unserer Datenschutzerklärung.