MEIN ERGEBNIS ANPASSEN

++ BESONDERE Gelegenheit ++ FAMILIENGLÜCK mit GARTEN - Objektnr. 5621018

  • B
  • A
  • C
  • D
  • E
  • F
  • G
  • H
  • I
  • S_02_T01
  • S_02_T01_Lage
  • W-Haus1
  • W-Haus2
  • W-Haus3
  • W-Haus4
  • X-Lift
  • X-Stiege
  • Y-Garage
  • Prima Logo
3423
Ort
67,19 m²
Fläche
3
Zimmer

ECKDATEN
FindMyHome.at // Externe Immobilien-ID5621018 // 362/10227
ImmobilienartWohnung - Eigentum
AnschriftTullner Straße
3423 St. Andrä-Wördern
Baujahr2025
Alt- oder NeubauNeubau
NäheKlosterneuburg
Liftja
Garagenplätze2
KellerJa
Beziehbar absofort
Fläche67,19 m²
Gartenfläche58,63 m²
Balkon2 (19,00 m²)
Zimmer3
Bad1
WC1
 Abstellraum
Kaufpreis:€ 344.500,00
Ratenzahlung:Finanzierungsmöglichkeiten für diese Immobilie anzeigen
Mehrwertsteuer:€ 77,99
Provision: provisionsfrei







BESCHREIBUNG

++ BESONDERE Gelegenheit ++ FAMILIENGLÜCK mit GARTEN

++ BESONDERE Gelegenheit ++ FAMILIENGLÜCK mit GARTEN

++ PROVISIONSFREI FÜR DEN KÄUFER ++

++ NUR NOCH 7 WOHNUNGEN VERFÜGBAR ++

Hier der Link zur VIDEO-Tour:
https://www.youtube.com/watch?v=782s8VDh5KU

++ PROJEKT FORTUNA – Tullner Straße 6, 3423 St. Andrä Wördern:

In zentraler Grünlage von St. Andrä Wördern wurde eine moderne Wohnhausanlage mit insgesamt 30 hochwertig ausgestatteten Eigentumswohnungen errichtet.

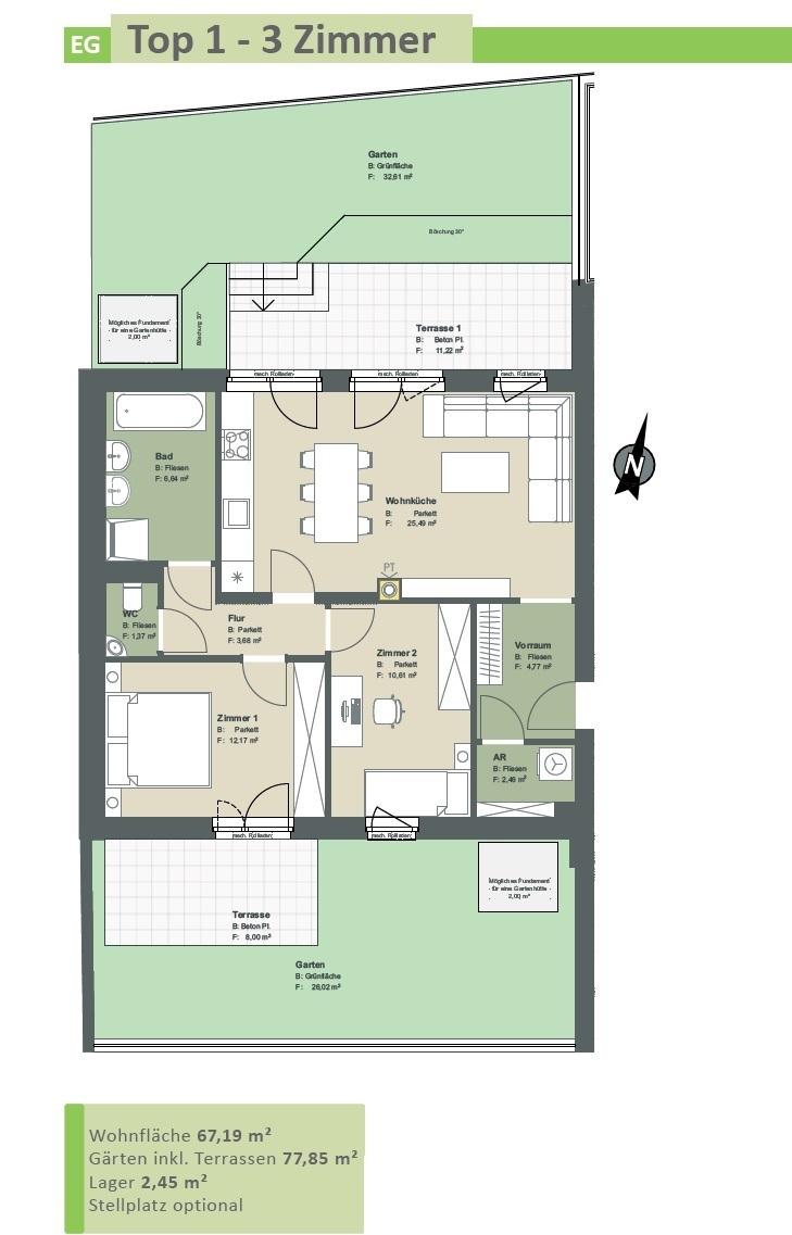
STIEGE 2 – TOP 1 (Erdgeschoss):

DREI Zimmer-Wohnung
mit durchdachtem Grundriss + zwei Terrassen + zwei Gärten.

Wohnfläche: ca. 67,19 m²
Terrassen- und Gartenfläche: ca.77,85 m²

Raumaufteilung:
- Vorraum
- Wohnküche
- zwei Schlafzimmer
- Flur
- Bad
- Toilette
- Abstellraum

KAUFPREIS:
Der Kaufpreis beträgt: EUR 344.500.-

Auf Anfrage senden wir Ihnen gerne die Projektmappe per E-Mail zu.

Ausstattung & Highlights:

- Massivbauweise – nachhaltig und wertbeständig
- Fußbodenheizung über zentrale Pelletsheizung
- Hochwertige Parkettböden & DANA-Innentüren
- Kunststoff-Alufenster mit 3-fach Wärmeschutzverglasung
- Schlüsselfertige Ausführung: Sanitäranlagen, Türen, Fliesen & Parkett
- PKW-Stellplätze zur Auswahl

Lage & Infrastruktur:
St. Andrä Wördern – eine Gemeinde eingebettet ins Grüne, nur 17 Kilometer von Wiens Stadtrand entfernt.
Mit dem Auto oder öffentlichen Verkehrsmitteln erreicht man die Innenstadt in rund 30 Minuten.
Der Bahnhof ist nur wenige Minuten vom Wohnhaus entfernt.
Kindergärten, Schulen, Ärzte, Restaurants sowie zahlreiche Einkaufsmöglichkeiten befinden sich in Gehweite.

Nebenkosten:
Grunderwerbssteuer: 3,5 % vom Kaufpreis
Grundbucheintragungsgebühr: 1,1% vom Kaufpreis
Kosten der Vertragserrichtung: 1,75 % vom Kaufpreis + Ust.
Maklerprovision: PROVISIONSFREI

Kontakt:
Prima Service Immobilien

Mobil: 0699 17 27 88 89
Mail: office@ps-immo.co.at

Wir halten fest, dass ein wirtschaftliches Naheverhältnis zum Abgeber besteht - eine Weitergabe an andere Interessenten ohne Rücksprache mit uns ist nicht gestattet.
Die Angaben erfolgen aufgrund von Informationen und Unterlagen, die uns vom Bauträger zur Verfügung gestellt wurden und sind ohne Gewähr. Irrtum vorbehalten.
Prima Service PS Immobilien tritt als Doppelmakler auf. Wir übernehmen keine Gewähr für die Vollständigkeit, Richtigkeit und Aktualität dieser Angaben.Barrierefrei: JA
Provision: provisionsfrei


Alle Details anzeigen

KONTAKT






 

Lasse dich kostenlos vom Anbieter dieser Immobilie zurückrufen.







 


 
Prima Service PS Immobilien
PS Immo
Telefonnummer anzeigen Handy Bearbeiter: +436643461311
 
Bitte dem Makler die FindMyHome.at - ID bekanntgeben: 5621018

Bewertungen dieses Anbieters
Qualitätsmakler
Qualitätsmakler:
2019, 2024, 2025,
Freundlichkeit

BEWERTUNGEN DIESES ANBIETERS

 
Qualitätsmakler
UNSERE HALL OF FAME DER BESTEN ANBIETER
Qualit�tsmakler
Qualitätsmakler
2019, 2024, 2025
Freundlichkeit
BESONDERS
FREUNDLICH
Auch du kannst bewerten! 7 Tage nach deiner Anfrage erhältst du dafür von uns ein Bewertungsmail.
Alle Infos zu unseren Auszeichnungen und dem FINDMYHOME.AT Qualitätsprogramm findest du hier: Übersicht anzeigen

FINANZIERUNG
?>

Du willst wissen, wie viel dein Umzug kosten wird?

Mach gleich den kostenlosen Preisvergleich und schau, welche seriösen Anbieter in deiner Region günstig deinen Umzug organisieren


ZUM UMZUGS-VERGLEICH
-->

MYHOME BLOG
SuchAgentin auf FindMyHome.at
Unterschiedlichen Rechtsthemen, köstliche Rezepte, neueste Design-Highlights, sowie aktuelle Technik-Tools für Ihr Eigenheim.


FINDMYHOME.AT SUCHAGENTIN
SuchAgentin auf FindMyHome.at
Hallo, soll ich dir ähnliche Immobilien kostenfrei per E-Mail schicken?


ÄHNLICHE IMMOBILIEN
Aehnliche Immobilie - Vorschaubild 1

++ WOHNGLÜCK finden ++ Exklusive DREI Zimmer mit BALKON... - Objektnr. 5621020

69,29 m² - 3 Zimmer
329000 €
PLZ: 3423

Mehr anzeigen

Aehnliche Immobilie - Vorschaubild 2

exklusive 4 Zimmer-Terrassenwohnung in Toplage - Objektnr. 5575885

77,84 m² - 4.0 Zimmer
375000 €
PLZ: 3423

Mehr anzeigen

Aehnliche Immobilie - Vorschaubild 3

++ Ihr NEUES LEBEN beginnt ++ DREI Zimmer mit BALKON... - Objektnr. 5621021

67,33 m² - 3 Zimmer
345000 €
PLZ: 3423

Mehr anzeigen

Durch die Nutzung unserer Seite erklären Sie sich mit der Verwendung von Cookies zur Verbesserung Ihres Online-Erlebnisses einverstanden. Detaillierte Informationen zu diesem und weiteren Themen erhalten Sie in unserer Datenschutzerklärung.