MEIN ERGEBNIS ANPASSEN

Pötzleinsdorf - Exklusives Ein- bzw. Zweifamilienhaus - Objektnr. 5620975

1180
Ort
366,00 m²
Fläche
10.0
Zimmer

ECKDATEN
FindMyHome.at // Externe Immobilien-ID5620975 // 1096/20055
ImmobilienartHaus - Eigentum
Anschrift1180 Wien
Baujahr1977
Geschosse3
Fläche366,00 m²
Terrassen2 (117,00 m²)
Zimmer10.0
Bad3
WC5
 Abstellraum
Kaufpreis:€ 3.200.000,00
Ratenzahlung:Finanzierungsmöglichkeiten für diese Immobilie anzeigen
Provision: 3% des Kaufpreises zzgl. 20% USt.







BESCHREIBUNG

Pötzleinsdorf - Exklusives Ein- bzw. Zweifamilienhaus

Dieses sehr moderne und hochwertig ausgestattete Haus überzeugt durch seine durchdachte Raumaufteilung und die Möglichkeit der Nutzung als Zweifamilienhaus, da zwei separate Eingänge vorhanden sind. Die Wohneinheiten sind derzeit miteinander verbunden, können jedoch sowohl getrennt als auch gemeinsam genutzt werden.

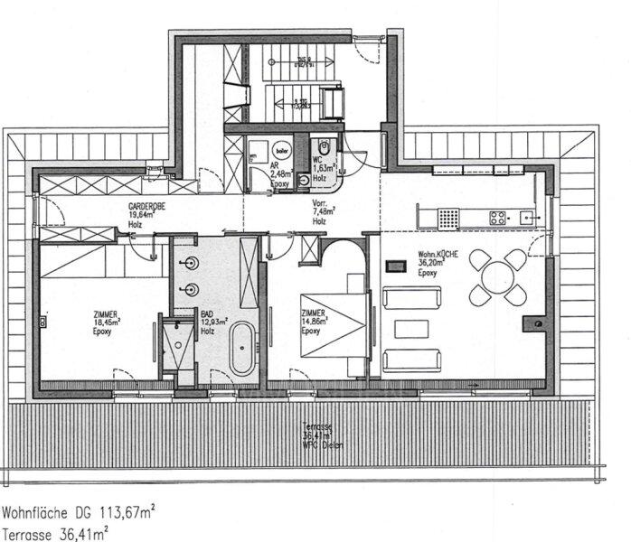
Obergeschoss:
Das Obergeschoss empfängt Sie mit einem Vorraum, der über die Treppe in einen weiteren Vorraum übergeht und in das großzügige Wohn- und Speisezimmer mit offener Küche führt. Von hier aus besteht ein direkter Ausgang auf die Terrasse.
Weiters stehen zwei Schlafzimmer, zwei begehbare Schrankräume sowie ein großes, elegant ausgestattetes Badezimmer mit Badewanne, Dusche und Toilette zur Verfügung.

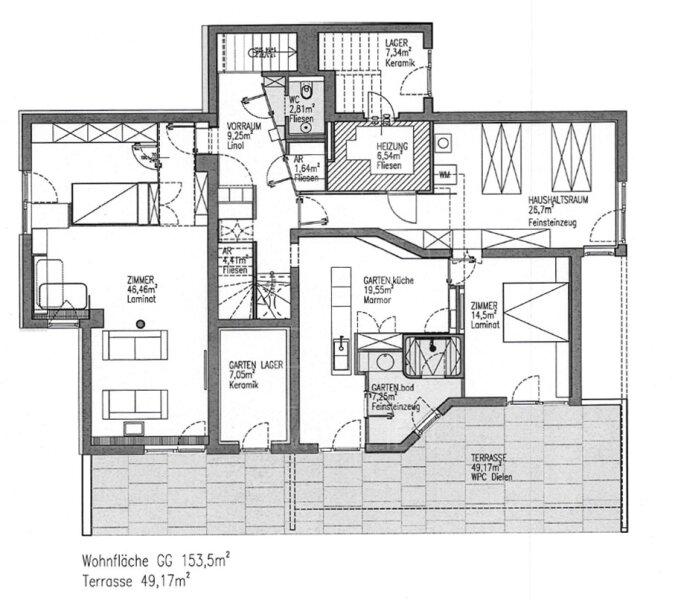
Gartengeschoss:
Das Gartengeschoss ist sowohl über einen separaten Eingang als auch intern über das Haus begehbar. Dieser Bereich bietet einen großzügigen Vorraum, ein Wohnzimmer mit direktem Ausgang in den Garten sowie auf eine große Terrasse, ein separates Speisezimmer und eine hochwertige, separate Küche.
Zusätzlich stehen zwei Schlafzimmer, ein Badezimmer mit Badewanne, eine Toilette sowie eine begehbare Garderobe zur Verfügung.
Ergänzt wird das Raumangebot durch einen weiteren Wohnbereich mit Gartenausgang, zwei zusätzliche Schlafzimmer, ein Badezimmer, eine hochwertige Küche, einen Hauswirtschaftsraum, eine separate Toilette sowie einen großzügigen Abstellräume mit insgesamt 26 m².

  • Hochwertige Proxiharz-Böden
  • Offener Kamin für gemütliche Stunden
  • 3 Garagenplätze
  • Absolute Ruhelage mit Blick ins Grüne
  • Hochwertige Einbauschränke
  • Elektrische Jalousien und Markisen

Dieses Haus verbindet modernen Komfort mit hochwertiger Ausstattung und exklusiven Details ideal für Anspruchsvolle, die Ruhe, Natur und Stil schätzen.


This contemporary, beautifully finished home offers exceptional flexibility and quality, making it ideal for use as a two-family residence, thanks to two separate entrances. The units are currently connected but can easily be used independently.

Upper Floor Unit 1
This bright and spacious unit features a welcoming foyer leading to a second hallway and into a generous living and dining area with an open kitchen. Step out onto the terrace and enjoy the seamless indoor-outdoor flow. The unit also includes two bedrooms, two walk-in closets, and a luxurious bathroom with bathtub, shower, and toilet.

Garden Level Unit 2
Accessible via a separate entrance or internally through the house, this versatile unit offers a large foyer, a living room with direct access to the garden and a spacious terrace, a separate dining room, and a high-end kitchen. Two bedrooms, a bathroom with bathtub, a separate toilet, and a walk-in wardrobe complete the main living area.

Additionally, this level features a second living area with garden access, two more bedrooms, another bathroom, a high-quality kitchen, a utility room, a separate toilet, and a generous storage room of approximately 26 m².

English Highlights

  • High-quality Proxiharz floors
  • Open fireplace for cozy living
  • 3 garage parking space
  • Peaceful location with green views
  • High-quality built-in wardrobes
  • Electric blinds and awnings

This modern home perfectly combines elegance, functionality, and flexibility an ideal choice for families seeking contemporary living with room for growth.

Noch nichts gefunden Wir informieren Sie über geeignete Immobilienangebote noch vor allen anderen.
Legen Sie jetzt Ihren individuellen Suchagenten unter folgendem Link an. Wir schicken Ihnen passende Immobilien exklusiv vorab zu.
Suchagent anlegen - https://realkanzlei-hildegard-mayerl-eva-krulis.service.immo/registrieren/de

Wir weisen darauf hin, dass zwischen dem Vermittler und dem zu vermittelnden Dritten ein familiäres oder wirtschaftliches Naheverhältnis besteht.

Der Vermittler ist als Doppelmakler tätig.


Infrastruktur / Entfernungen

Gesundheit
Arzt <1.000m
Apotheke <1.000m
Klinik <2.000m
Krankenhaus <2.000m

Kinder & Schulen
Schule <1.000m
Kindergarten <1.000m
Universität <3.000m
Höhere Schule <3.000m

Nahversorgung
Supermarkt <1.000m
Bäckerei <1.000m
Einkaufszentrum <3.000m

Sonstige
Geldautomat <2.000m
Bank <2.000m
Post <1.000m
Polizei <2.500m

Verkehr
Bus <500m
Straßenbahn <1.000m
U-Bahn <3.000m
Bahnhof <3.000m
Autobahnanschluss <5.000m

Angaben Entfernung Luftlinie / Quelle: OpenStreetMap

Swimmingpool: JA
Provision: 3% des Kaufpreises zzgl. 20% USt.


Alle Details anzeigen

KONTAKT






 

Lasse dich kostenlos vom Anbieter dieser Immobilie zurückrufen.







 


 
MAYERL IMMOBILIEN
Eva Krulis
Telefonnummer anzeigen Telefon Allgemein: +431479411710
 
Bitte dem Makler die FindMyHome.at - ID bekanntgeben: 5620975

Bewertungen dieses Anbieters
Netiquette
Freundlichkeit
Antwortszeit
100 %

BEWERTUNGEN DIESES ANBIETERS

 
Antwortzeit
ø 24h ANTWORT
Weiterempfehlung
WIRD SEHR GERNE

Freundlichkeit
BESONDERS
FREUNDLICH
Netiquette
FINDMYHOME
NETIQUETTE
Auch du kannst bewerten! 7 Tage nach deiner Anfrage erhältst du dafür von uns ein Bewertungsmail.
Alle Infos zu unseren Auszeichnungen und dem FINDMYHOME.AT Qualitätsprogramm findest du hier: Übersicht anzeigen

FINANZIERUNG
?>

Du willst wissen, wie viel dein Umzug kosten wird?

Mach gleich den kostenlosen Preisvergleich und schau, welche seriösen Anbieter in deiner Region günstig deinen Umzug organisieren


ZUM UMZUGS-VERGLEICH
-->

MYHOME BLOG
SuchAgentin auf FindMyHome.at
Unterschiedlichen Rechtsthemen, köstliche Rezepte, neueste Design-Highlights, sowie aktuelle Technik-Tools für Ihr Eigenheim.


FINDMYHOME.AT SUCHAGENTIN
SuchAgentin auf FindMyHome.at
Hallo, soll ich dir ähnliche Immobilien kostenfrei per E-Mail schicken?


ÄHNLICHE IMMOBILIEN
Aehnliche Immobilie - Vorschaubild 1

Architekten-Haus (BJ 1966) mit Entwicklungsperspektive - 1.3... - Objektnr. 5525489

302,00 m² - 7.0 Zimmer
2950000 €
PLZ: 1180

Mehr anzeigen

Aehnliche Immobilie - Vorschaubild 2

Elegante Villa mit großem Garten, Wellnessbereich und Fernbl... - Objektnr. 5628134

328,00 m² - 8.0 Zimmer
2998000 €
PLZ: 1180

Mehr anzeigen

Aehnliche Immobilie - Vorschaubild 3

Ein - bzw. Mehrfamilienhaus - Objektnr. 5525502


420,00 m²
2900000 €
PLZ: 1180

Mehr anzeigen

Durch die Nutzung unserer Seite erklären Sie sich mit der Verwendung von Cookies zur Verbesserung Ihres Online-Erlebnisses einverstanden. Detaillierte Informationen zu diesem und weiteren Themen erhalten Sie in unserer Datenschutzerklärung.