MEIN ERGEBNIS ANPASSEN

PROVISIONSFREI | Unterlaa Gardens - Wohnen, wo Wien erblüht - Objektnr. 5620909

1100
Ort
121,42 m²
Fläche
4.0
Zimmer

ECKDATEN
FindMyHome.at // Externe Immobilien-ID5620909 // 1240/239307
ImmobilienartHaus - Eigentum
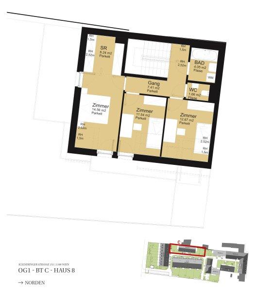
AnschriftKlederinger Straße 151/C-RH-08
1100 Wien
Geschosse3
Fläche121,42 m²
Terrassen1 (22,00 m²)
Zimmer4.0
 Abstellraum
Kaufpreis:€ 945.000,00
Ratenzahlung:Finanzierungsmöglichkeiten für diese Immobilie anzeigen
Provision: Provision bezahlt der Abgeber







BESCHREIBUNG

PROVISIONSFREI | Unterlaa Gardens - Wohnen, wo Wien erblüht

UNTERLAA GARDENS

Wohnen, wo Wien erblüht

 

Das Projekt nahe Oberlaa umfasst die Errichtung von 16 Reihenhäuser und 20 Eigentumswohnungen. Die Reihenhäuser zeichnen sich durch großzügige Wohnflächen, private Freiflächen und zeitgemäße Architektur aus. Die Wohnungen sind variabel gestaltet und bieten unterschiedlichste Wohnungsgrößen für Singles, Paare oder Familien.

Alle Wohnungen werden schlüsselfertig übergeben, d.h. alle Sanitäranlagen, Fliesen und Parkettböden sind im Kaufpreis inkludiert. Details über die Ausstattung der Wohnungen entnehmen Sie gerne der Leistungsbeschreibung im Booklet.

27 PKW-Stellplätze stehen in der hauseigenen Tiefgarage bereit und bieten eine bequeme und sichere Parkmöglichkeit. Außerdem haben Sie die Möglichkeit, eine von 5 zusätzlichen Einlagerungsräumen zu erwerben - Preis auf Anfrage.

Die Lage punktet mit einer attraktiven Mischung aus urbanem Leben und naturnahen Wohnen - hervorragende Anbindung an öffentliche Verkehrsmittel, Einkaufsmöglichkeiten, Schulen und Freizeitmöglichkeiten sind nur ein paar der Vorteile.

 

 

Sparen Sie 3,6% | provisionsfrei kaufen

Ihr Vorteil beim Erwerb einer Haring Group Immobilie:

- Provisionsfrei! Alle Eigentumsobjekte werden ohne Provision (3,6% inkl. MwSt.) angeboten!

Wir weisen darauf hin, dass zwischen dem Vermittler und dem zu vermittelnden Dritten ein familiäres oder wirtschaftliches Naheverhältnis besteht.

Der Vermittler ist als Doppelmakler tätig.


Infrastruktur / Entfernungen

Gesundheit
Arzt <1.550m
Apotheke <1.475m
Klinik <4.525m
Krankenhaus <6.600m

Kinder & Schulen
Schule <975m
Kindergarten <1.025m
Universität <3.850m
Höhere Schule <6.300m

Nahversorgung
Supermarkt <1.400m
Bäckerei <1.450m
Einkaufszentrum <3.300m

Sonstige
Geldautomat <3.050m
Bank <1.375m
Post <1.475m
Polizei <1.500m

Verkehr
Bus <50m
U-Bahn <1.500m
Straßenbahn <3.150m
Bahnhof <1.500m
Autobahnanschluss <1.400m

Angaben Entfernung Luftlinie / Quelle: OpenStreetMap

Provision: Provision bezahlt der Abgeber


Alle Details anzeigen

KONTAKT






 

Lasse dich kostenlos vom Anbieter dieser Immobilie zurückrufen.







 


 
Haring Group Bauträger GmbH
Haring Immobilien Treuhand GmbH
Telefonnummer anzeigen Telefon Allgemein: +4312035700
 
Bitte dem Makler die FindMyHome.at - ID bekanntgeben: 5620909

Bewertungen dieses Anbieters
Netiquette
Freundlichkeit
77 %

BEWERTUNGEN DIESES ANBIETERS

 
Weiterempfehlung
WIRD GERNE

Freundlichkeit
BESONDERS
FREUNDLICH
Netiquette
FINDMYHOME
NETIQUETTE
Auch du kannst bewerten! 7 Tage nach deiner Anfrage erhältst du dafür von uns ein Bewertungsmail.
Alle Infos zu unseren Auszeichnungen und dem FINDMYHOME.AT Qualitätsprogramm findest du hier: Übersicht anzeigen

FINANZIERUNG
?>

Du willst wissen, wie viel dein Umzug kosten wird?

Mach gleich den kostenlosen Preisvergleich und schau, welche seriösen Anbieter in deiner Region günstig deinen Umzug organisieren


ZUM UMZUGS-VERGLEICH
-->

MYHOME BLOG
SuchAgentin auf FindMyHome.at
Unterschiedlichen Rechtsthemen, köstliche Rezepte, neueste Design-Highlights, sowie aktuelle Technik-Tools für Ihr Eigenheim.


FINDMYHOME.AT SUCHAGENTIN
SuchAgentin auf FindMyHome.at
Hallo, soll ich dir ähnliche Immobilien kostenfrei per E-Mail schicken?


ÄHNLICHE IMMOBILIEN
Aehnliche Immobilie - Vorschaubild 1

PROVISIONSFREI | Unterlaa Gardens - Wohnen, wo Wien erblüht... - Objektnr. 5620917

116,41 m² - 4.0 Zimmer
898000 €
PLZ: 1100

Mehr anzeigen

Aehnliche Immobilie - Vorschaubild 2

PROVISIONSFREI | Unterlaa Gardens - Wohnen, wo Wien erblüht... - Objektnr. 5620911

121,42 m² - 4.0 Zimmer
878000 €
PLZ: 1100

Mehr anzeigen

Aehnliche Immobilie - Vorschaubild 3

Exklusives Reihenhaus mit großzügigem Südost-Garten - provis... - Objektnr. 5629112

121,42 m² - 4.0 Zimmer
945000 €
PLZ: 1100

Mehr anzeigen

Durch die Nutzung unserer Seite erklären Sie sich mit der Verwendung von Cookies zur Verbesserung Ihres Online-Erlebnisses einverstanden. Detaillierte Informationen zu diesem und weiteren Themen erhalten Sie in unserer Datenschutzerklärung.