MEIN ERGEBNIS ANPASSEN

Exklusiver 2-Zimmer Erstbezug mit Terrasse, Nähe Kutschkermarkt - Objektnr. 5620762

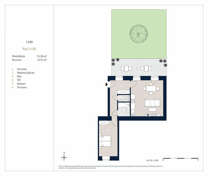
1180
Ort
51,58 m²
Fläche
2.0
Zimmer

ECKDATEN
FindMyHome.at // Externe Immobilien-ID5620762 // 5069
ImmobilienartEigentum
Anschrift1180 Wien
Baujahr1900
Befeuerung
Fläche51,58 m²
Terrassen1 (15,00 m²)
Zimmer2.0
Bad1
WC1
Kaufpreis:€ 399.000,00
Ratenzahlung:Finanzierungsmöglichkeiten für diese Immobilie anzeigen
Provision: 3% des Kaufpreises zzgl. 20% USt.







BESCHREIBUNG

Exklusiver 2-Zimmer Erstbezug mit Terrasse, Nähe Kutschkermarkt

Im Falle der Notwendigkeit einer Fremdfinanzierung Ihrer Wunschimmobilie ermittelt unser Wohnbau-Finanzierungsexperte gerne die optimale Finanzierungslösung und findet das passende Zins- und Konditionsangebot für Sie. Er vergleicht die aktuellen Angebote aller relevanten Banken und Bausparkassen. Der Angebotsvergleich kann aus einem Portfolio von über 120 Banken erfolgen. Das Erstgespräch ist für Sie kostenfrei und unverbindlich, gerne auch bei Ihnen vor Ort. So sparen Sie Ihre wertvolle Zeit und erhalten eine professionelle und unabhängige Finanzierungslösung vom Spezialisten. Sprechen Sie uns wegen eines Termins gerne an!

 

Zum Verkauf gelang eine wunderschöne 2-Zimmer Wohnung mit Terrasse und Garten im 18. Wiener Gemeindebezirk.

Sie ist ein Erstbezug und befindet sich im EG eines in der Jahrhundertwende erbauten Altbaus. Die Wohnung verfügt über eine Größe von ca. 51 m² und gliedert sich in einen Vorraum, eine Wohnküche, ein Zimmer, ein Bad und ein separates WC. Zusätzlich überzeugt die Wohnung mit einer großzügigen Terrasse. Die Wohnräume sind mit schönem Parkett ausgestattet, die Nassräume sind verfliest. Beheizt wird mittels Fußbodenheizung.

Sie betreten die Wohnung und befinden sich im Vorraum. Gerade durch gelangen Sie in die Wohnküche, von hier gelangen Sie auf die schöne, hofseitige Terrasse. Daneben befindet sich das Schlafzimmer. Sie sind getrennt begehbar. Das Bad ist mit einer Dusche, einem Waschbecken und einem Handtuchtrockner ausgestattet. Das separate WC ist vom Vorraum aus zu erreichen.

Die Fassade des Hauses wurde neu gestaltet und verleiht dem Gebäude einen frischen, zeitgemäßen Look, der perfekt zu seiner klassischen Altbau-Ästhetik passt. Das Stiegenhaus wurde ebenfalls neu verfliest und erstrahlt in frischen Farben, die den Altbaucharme auf moderne Weise unterstreichen. Viele Bereiche des Hauses wurden mit großer Sorgfalt renoviert, um eine gelungene Mischung aus historischem Flair und zeitgemäßem Komfort zu schaffen.

Im Haus werden fünf hochwertige Wohnungen angeboten, von denen drei nach einer umfangreichen Sanierung in Top-Zustand präsentiert werden. Die Wohnflächen variieren zwischen 51 m² und 109 m² und bieten für unterschiedliche Bedürfnisse und Lebensstile das passende Raumangebot. 

Für zusätzlichen Komfort können auf Wunsch Stapelparkplätze im Haus erworben werden. Der Preis für den oberen Stapelparker beträgt € 45.000, während der Preis für den unteren Stapelparker bei € 37.500 liegt.

Die Liegenschaft befindet nur wenige Minuten vom Kutschkermarkt und dem Sternwartepark entfernt. In unmittelbarer Gehweite befinden sich diverse Einkaufsmöglichkeiten wie Supermärkte, das Marktgebiet Gersthof/Kutschkermarkt etc. sowie eine optimale öffentliche Verkehrsanbindung durch die Straßenbahnen (9, 40 und 41), der Buslinie (10A) und der S-Bahn (S45) sowie die U-Bahn Linie U6.

Die Vertragserrichtung und Treuhandabwicklung ist gebunden an die Kanzlei Giebl & Zirm Rechtsanwälte, Dr. Karl Lueger-Platz 5, A-1010 Wien . Die Kosten betragen 1,5% + 20% Ust + Barauslagen.

Überzeugen Sie sich selbst von dieser Immobilie.

Gerne lassen wir Ihnen bei ernsthaftem Interesse vor Kaufanbotlegung weitere vertrauliche Unterlagen zu dieser Liegenschaft zukommen, welche nicht veröffentlicht werden dürfen.

Für Besichtigungen und nähere Informationen stehen wir Ihnen gerne zur Verfügung!

Frau Marie-Louise Eisenburger
national - Tel: 0676 605 9800
international - Tel.: +43 676 605 9800
e-mail:

Hinweis gemäß Energieausweisvorlagegesetz: Ein Energieausweis wurde vom Eigentümer bzw. Verkäufer, nach unserer Aufklärung über die generell geltende Vorlagepflicht, sowie Aufforderung zu seiner Erstellung noch nicht vorgelegt. Daher gilt zumindest eine dem Alter und der Art des Gebäudes entsprechende Gesamtenergieeffizienz als vereinbart. Wir übernehmen keinerlei Gewähr oder Haftung für die tatsächliche Energieeffizienz der angebotenen Immobilie.

Wir weisen darauf hin, dass zwischen dem Vermittler und dem zu vermittelnden Dritten ein familiäres oder wirtschaftliches Naheverhältnis besteht.

Der Vermittler ist als Doppelmakler tätig.

 

 


Infrastruktur / Entfernungen

Gesundheit
Arzt <500m
Apotheke <500m
Klinik <500m
Krankenhaus <1.000m

Kinder & Schulen
Schule <500m
Kindergarten <500m
Universität <500m
Höhere Schule <500m

Nahversorgung
Supermarkt <500m
Bäckerei <500m
Einkaufszentrum <2.000m

Sonstige
Geldautomat <500m
Bank <500m
Post <500m
Polizei <1.000m

Verkehr
Bus <500m
U-Bahn <500m
Straßenbahn <500m
Bahnhof <500m
Autobahnanschluss <2.000m

Angaben Entfernung Luftlinie / Quelle: OpenStreetMap

Provision: 3% des Kaufpreises zzgl. 20% USt.


Alle Details anzeigen

KONTAKT






 

Lasse dich kostenlos vom Anbieter dieser Immobilie zurückrufen.







 


 
IM Lifestyle Properties GmbH
Marie-Louise Eisenburger
Telefonnummer anzeigen Telefon Allgemein: +4315121484
Handy Bearbeiter: +436766059800
 
Bitte dem Makler die FindMyHome.at - ID bekanntgeben: 5620762

Bewertungen dieses Anbieters
Qualitätsmakler
Qualitätsmakler:
2019, 2023,
Netiquette
Freundlichkeit

BEWERTUNGEN DIESES ANBIETERS

 
Qualit�tsmakler
Qualitätsmakler
2019, 22/23
Freundlichkeit
BESONDERS
FREUNDLICH
Netiquette
FINDMYHOME
NETIQUETTE
Auch du kannst bewerten! 7 Tage nach deiner Anfrage erhältst du dafür von uns ein Bewertungsmail.
Alle Infos zu unseren Auszeichnungen und dem FINDMYHOME.AT Qualitätsprogramm findest du hier: Übersicht anzeigen

FINANZIERUNG
?>

Du willst wissen, wie viel dein Umzug kosten wird?

Mach gleich den kostenlosen Preisvergleich und schau, welche seriösen Anbieter in deiner Region günstig deinen Umzug organisieren


ZUM UMZUGS-VERGLEICH
-->

MYHOME BLOG
SuchAgentin auf FindMyHome.at
Unterschiedlichen Rechtsthemen, köstliche Rezepte, neueste Design-Highlights, sowie aktuelle Technik-Tools für Ihr Eigenheim.


FINDMYHOME.AT SUCHAGENTIN
SuchAgentin auf FindMyHome.at
Hallo, soll ich dir ähnliche Immobilien kostenfrei per E-Mail schicken?


ÄHNLICHE IMMOBILIEN
Aehnliche Immobilie - Vorschaubild 1

II MODERNE 2 ZIMMER ALTBAUWOHNUNG MIT 25m² TERRASSE II KOMPL... - Objektnr. 5337458

53,56 m² - 2.0 Zimmer
345000 €
PLZ: 1180

Mehr anzeigen

Aehnliche Immobilie - Vorschaubild 2

Helle 2-Zimmer Wohnung, Nähe Kutschkermarkt - Objektnr. 5560961

61,40 m² - 2.0 Zimmer
349000 €
PLZ: 1180

Mehr anzeigen

Aehnliche Immobilie - Vorschaubild 3

NEU NÄHE U6 MICHAELBEUERN / AKH / 1090 WIEN JETZT AUCH ZU... - Objektnr. 5597353

52,43 m² - 2.0 Zimmer
431000 €
PLZ: 1180

Mehr anzeigen

Durch die Nutzung unserer Seite erklären Sie sich mit der Verwendung von Cookies zur Verbesserung Ihres Online-Erlebnisses einverstanden. Detaillierte Informationen zu diesem und weiteren Themen erhalten Sie in unserer Datenschutzerklärung.