MEIN ERGEBNIS ANPASSEN

Ein Zuhause mit Zukunft - in Mödling. - Objektnr. 5620654

2340
Ort
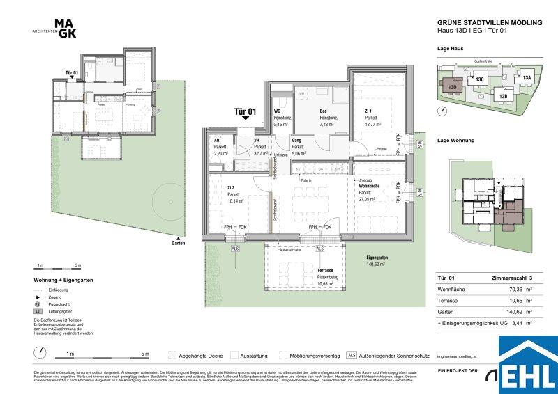
70,36 m²
Fläche
3.0
Zimmer
WEITERE MEDIEN

ECKDATEN
FindMyHome.at // Externe Immobilien-ID5620654 // 91916
ImmobilienartAnlage-Vorsorgewohnung - Eigentum
AnschriftQuellenstraße
2340 Mödling
Baujahr2026
Geschosse4
Fläche70,36 m²
Terrassen1 (11,00 m²)
Zimmer3.0
Bad1
WC1
 Abstellraum
Kaufpreis:€ 467.250,00
Ratenzahlung:Finanzierungsmöglichkeiten für diese Immobilie anzeigen
Provision: Provision bezahlt der Abgeber.







BESCHREIBUNG

Ein Zuhause mit Zukunft - in Mödling.

Nachhaltig wohnen. Urban leben. Natürlich ankommen.

Nachhaltig investieren. Langfristig vorsorgen.

Ab Sommer 2026 werden vier baulich getrennte Stadtvillen in moderner Holzbauweise fertiggestellt. Das Projekt umfasst insgesamt 47 hochwertig geplante Eigentums- und Anlegerwohnungen mit zwei bis fünf Zimmern und bietet eine solide Grundlage für nachhaltige Vermögensbildung und generationenübergreifende Vorsorge.

Die durchdachten Grundrisse, privaten Freiflächen sowie eine eingeschossige Tiefgarage mit 71 Stellplätzen sichern eine hohe Wohn- und Vermietungsqualität. Die nachhaltige Bauweise in Kombination mit Photovoltaikanlagen und einer modernen Geothermieanlage sorgt für geringe Betriebskosten und langfristige Wertstabilität.

Großzügige Grün- und Gemeinschaftsflächen sowie die aufgelockerte Anordnung der Gebäude erhöhen die Attraktivität des Wohnumfelds und unterstützen eine stabile Nachfrage am Mietmarkt.

Ein zukunftsorientiertes Wohnprojekt für Anlegerinnen und Anleger, die auf Qualität, Nachhaltigkeit und langfristige Erträge setzen.

 Ganz in der Nähe der Anlage befindet sich ein weiteres Projekt Wohnhausanlage am Fliegenspitz in dem wir ebenso Eigentums- sowie Vorsorgewohnungen anbieten. Für nähere Informationen hierfür stehen wir selbstverständlich auch gerne zur Verfügung.

 

In der hauseigenen Tiefgarage stehen Stellplätze zum Ankauf zur Verfügung.


Das Projekt:

  • 47 Eigentums- und Vorsorgewohnungen
  • Wohnungsgrößen von 53 m² bis 104 m²
    • Tiefgarage mit 71 Stellplätzen (Installation einer E-Ladestation möglich)
  • Gemeinschaftliche Freibereiche wie Kinderspielplätze und Gemeinschaftsgärten
  • Fahrrad- und Kinderwagenabstellräume
  • Eine Einlagerungsmöglichkeit je Wohnung im Untergeschoss
  • Private Freiflächen in Form von Gärten, Balkonen oder Terrassen

 

Die Ausstattung:

  • Fußbodenheizung und -temperierung mittels Sole-Wasser-Wärmepumpe
  • Photovoltaikanlagen
  • Hochwertige Eichenparkettböden
  • Elegantes Feinsteinzeug in den Nassräumen
  • Holz-Holz-Fenster mit 3-fach-Verglasung
  • Außenliegender, elektrisch betriebener Sonnenschutz
  • Markisen auf den Balkonen mit automatischer Windüberwachung im Dachgeschoss
  • Vorbereitung zur nachträglichen Installation von Split-Klimageräten in allen Wohnungen

 

Die Lage & Infrastruktur:

Die Stadtvillen liegen in einer zentralen und zugleich angenehmen Wohnlage in Mödling, einer Stadt mit ausgezeichneter Infrastruktur und hoher Lebensqualität. Die Innenstadt ist in 10-15 Minuten zu Fuß oder in 5-10 Minuten mit Rad, Auto und Öffis erreichbar. Auch Wien erreicht man nach nur rund 45 Minuten mit dem Auto oder Zug.

Öffentliche Anbindung:

Die Stationen der Buslinien 259 und 263 befinden sich nur 4 Gehminuten von der Haustüre entfernt.
Der Bahnhof Mödling ist dadurch schnell erreichbar und bietet u.a. eine schnelle Verbindung nach Wien.

Nahversorgung:

Supermärkte, Bäckereien, Apotheken sowie weitere Geschäfte des täglichen Bedarfs befinden sich im nahen Umfeld. Auch Cafés und Restaurants sind rasch erreichbar.

Medizinische Versorgung:

Eine sehr gute medizinische Infrastruktur mit Allgemein- und Fachärzten, Apotheken sowie dem Landesklinikum Mödling sorgt für umfassende Versorgung.

Schulen und Kindergärten:

Kindergärten sowie Volks- und weiterführende Schulen sind ebenfalls teils fußläufig erreichbar ideal für Familien.

 

Kaufpreise der Vorsorgewohnungen

von EUR 333.750,- bis EUR 685.300,- netto zzgl. 20% USt.

Zu erwartender Mietertrag

von ca. EUR 15,00 bis EUR 16,75 netto/m²

Provisionsfrei für den Käufer
Fertigstellung: Sommer 2026

Bei diesem Angebot handelt es sich um eine Vorsorgewohnung, die zu Vermietungszwecken erworben wird. Der angegebene Kaufpreis versteht sich daher zzgl. 20% USt. Diese Daten sind vorbehaltlich möglicher Änderungen.

Einen detaillierteren Einblick finden Sie auf unserer EHL-Projekthomepage!

Wir weisen darauf hin, dass zwischen dem Vermittler und dem zu vermittelnden Dritten ein familiäres oder wirtschaftliches Naheverhältnis besteht.

Der Vermittler ist als Doppelmakler tätig.


Infrastruktur / Entfernungen

Gesundheit
Arzt <500m
Apotheke <500m
Klinik <750m
Krankenhaus <2.000m

Kinder & Schulen
Schule <250m
Kindergarten <250m
Höhere Schule <500m

Nahversorgung
Supermarkt <250m
Bäckerei <1.250m
Einkaufszentrum <1.500m

Sonstige
Bank <1.000m
Geldautomat <1.000m
Post <1.000m
Polizei <1.250m

Verkehr
Bus <250m
U-Bahn <6.500m
Bahnhof <1.500m
Autobahnanschluss <3.750m
Straßenbahn <3.750m

Angaben Entfernung Luftlinie / Quelle: OpenStreetMap

Provision: Provision bezahlt der Abgeber.


Alle Details anzeigen

KONTAKT






 

Lasse dich kostenlos vom Anbieter dieser Immobilie zurückrufen.







 


 
EHL Wohnen GmbH
Andrea PÖCHHACKER; MSc
Telefonnummer anzeigen Telefon Allgemein: +4315127690411
Handy Bearbeiter: +436648373481
 
Bitte dem Makler die FindMyHome.at - ID bekanntgeben: 5620654

Bewertungen dieses Anbieters
Qualitätsmakler
Qualitätsmakler:
Netiquette
Freundlichkeit
82 %

BEWERTUNGEN DIESES ANBIETERS

 
Qualitätsmakler
UNSERE HALL OF FAME DER BESTEN ANBIETER
Qualit�tsmakler
Qualitätsmakler
2012, 2013, 2014, 2015, 2016, 2017, 2018, 2019, 2020, 2021, 22/23, 2024, 2025
Weiterempfehlung
WIRD GERNE

Freundlichkeit
BESONDERS
FREUNDLICH
Netiquette
FINDMYHOME
NETIQUETTE
Auch du kannst bewerten! 7 Tage nach deiner Anfrage erhältst du dafür von uns ein Bewertungsmail.
Alle Infos zu unseren Auszeichnungen und dem FINDMYHOME.AT Qualitätsprogramm findest du hier: Übersicht anzeigen

FINANZIERUNG
?>

Du willst wissen, wie viel dein Umzug kosten wird?

Mach gleich den kostenlosen Preisvergleich und schau, welche seriösen Anbieter in deiner Region günstig deinen Umzug organisieren


ZUM UMZUGS-VERGLEICH
-->

MYHOME BLOG
SuchAgentin auf FindMyHome.at
Unterschiedlichen Rechtsthemen, köstliche Rezepte, neueste Design-Highlights, sowie aktuelle Technik-Tools für Ihr Eigenheim.


FINDMYHOME.AT SUCHAGENTIN
SuchAgentin auf FindMyHome.at
Hallo, soll ich dir ähnliche Immobilien kostenfrei per E-Mail schicken?


ÄHNLICHE IMMOBILIEN
Aehnliche Immobilie - Vorschaubild 1

Stadtvillen Mödling - nachhaltig gedacht. - Objektnr. 5620674


82,43 m² - 3.0 Zimmer
502850 €
PLZ: 2340

Mehr anzeigen

Aehnliche Immobilie - Vorschaubild 2

Nachhaltig investieren in Mödling - Objektnr. 5619890


77,43 m² - 3.0 Zimmer
525100 €
PLZ: 2340

Mehr anzeigen

Aehnliche Immobilie - Vorschaubild 3

Kapitalanlage mit Substanz - Mödling. - Objektnr. 5620668


82,43 m² - 3.0 Zimmer
507300 €
PLZ: 2340

Mehr anzeigen

Durch die Nutzung unserer Seite erklären Sie sich mit der Verwendung von Cookies zur Verbesserung Ihres Online-Erlebnisses einverstanden. Detaillierte Informationen zu diesem und weiteren Themen erhalten Sie in unserer Datenschutzerklärung.