MEIN ERGEBNIS ANPASSEN

Heller Wohntraum mit ruhigem Innenhofbalkon - moderne Innenausstattung, effiziente Luftwärmepumpe & perfekte öffentliche Anbindung - Objektnr. 5620565


ökologisch beheizt
1170
Ort
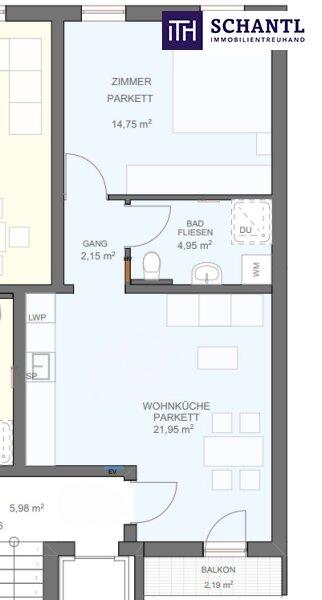
43,80 m²
Fläche
2.0
Zimmer

ECKDATEN
FindMyHome.at // Externe Immobilien-ID5620565 // 294959
ImmobilienartEigentum
AnschriftMayssengasse
1170 Wien
Baujahr2024
Befeuerung
Luftwärmepumpe
Stock3
Fläche43,80 m²
Zimmer2.0
Bad1
WC1
Kaufpreis:€ 322.000,00
Ratenzahlung:Finanzierungsmöglichkeiten für diese Immobilie anzeigen
Provision: 3% des Kaufpreises zzgl. 20% USt.







BESCHREIBUNG

Heller Wohntraum mit ruhigem Innenhofbalkon - moderne Innenausstattung, effiziente Luftwärmepumpe & perfekte öffentliche Anbindung

Wohnen mit Charakter & Komfort stilvoll revitalisiertes Altbauhaus

Willkommen in Ihrem neuen Zuhause!
Das gesamte Gebäude wird hochwertig revitalisiert und technisch auf den neuesten Stand gebracht. Im Jahr 2025 wurde das Dachgeschoss neu errichtet und erweitert.

Insgesamt entstehen 10 exklusive Wohneinheiten mit Wohnflächen zwischen ca. 36 m² und 82 m² mit attraktiven Außenflächen, die zusätzlichen Freiraum bieten.

Hochwertiger Eichenholzparkettboden sowie Fußbodenheizung in allen Räumen sorgen für ein behagliches Wohngefühl.

Jede Wohnung ist mit einer effizienten Luftwärmepumpe ausgestattet, die nachhaltiges und energieeffizientes Heizen ermöglicht. In den Dachgeschosswohnungen sorgen zusätzlich Klimaanlagen für angenehme Temperaturen an warmen Sommertagen. Elektrische Außenbeschattungen bieten zusätzlichen Komfort und Privatsphäre.

Das Haus verfügt über Kellerabteile und ein Personenlift wird errichtet, der einen barrierefreien Zugang zu allen Wohnungen ermöglicht.

Highlights

  • Fußbodenheizung für behaglichen Wohnkomfort

  • Nachhaltige Luftwärmepumpe umweltfreundlich & effizient

  • Hochwertiger Eichenholzparkett für zeitlose Eleganz

  • Modernes Badezimmer mit Dusche

  • Hofseitiger Balkon 

 

Aktuell werden 10 Wohnungen hochwertig und liebevoll saniert.
Hier finden Sie Wohnflächen von 36-82 m² + Außenflächen.

Jetzt Besichtigungstermin vereinbaren wir freuen uns auf Ihre Anfrage!

 

Kaufpreis: 322.000,- €

Wohnfläche 43,80 m² + 2,19 m² Balkon

Bei den Bildern handelt es sich teilweise um Visualisierungen um die Wohnung bezugsfertig darzustellen - wir weisen darauf hin , dass es hier zu kleinen Abweichungen kommen kann

Unser Service für Sie: Wenn Sie sich für diese Immobilie entschieden haben, begleiten wir Sie gerne vom Kaufanbot weg inkl. Klärung von Sonderwünschen und der Vertragsunterzeichnung über die Wohnungsübergabe bis hin zu diversen Ummeldungen wie Strom und Gas. Entsprechende Formulare oder auch Meldezettel stellen wir Ihnen sehr gerne zur Verfügung.

Gerne unterstützen wir Sie auch bei der Finanzierung Ihres Traumobjekts und finden mit unseren langjährigen Partnern die besten Konditionen für Sie.

Vereinbaren Sie noch heute einen Termin, wir beraten Sie gerne!

www.schantl-ith.at

Wir weisen darauf hin, dass zwischen dem Vermittler und dem zu vermittelnden Dritten ein familiäres oder wirtschaftliches Naheverhältnis besteht.

Der Vermittler ist als Doppelmakler tätig.


Infrastruktur / Entfernungen

Gesundheit
Arzt <500m
Apotheke <500m
Klinik <500m
Krankenhaus <1.250m

Kinder & Schulen
Schule <500m
Kindergarten <250m
Universität <1.500m
Höhere Schule <1.000m

Nahversorgung
Supermarkt <500m
Bäckerei <250m
Einkaufszentrum <750m

Sonstige
Geldautomat <500m
Bank <500m
Post <500m
Polizei <500m

Verkehr
Bus <250m
U-Bahn <1.000m
Straßenbahn <250m
Bahnhof <1.250m
Autobahnanschluss <4.000m

Angaben Entfernung Luftlinie / Quelle: OpenStreetMap

Rollstuhlgerecht: JA
Barrierefrei: JA
Provision: 3% des Kaufpreises zzgl. 20% USt.


Alle Details anzeigen

KONTAKT






 

Lasse dich kostenlos vom Anbieter dieser Immobilie zurückrufen.







 


 
Schantl ITH Immobilientreuhand GmbH
Marlies Sprinzl
Telefonnummer anzeigen Telefon Allgemein: +436643070009
Handy Bearbeiter: +436609094554
 
Bitte dem Makler die FindMyHome.at - ID bekanntgeben: 5620565

Bewertungen dieses Anbieters
Qualitätsmakler
Qualitätsmakler:
2015, 2016, 2018, 2019, 2020, 2021, 2023 , 2024, 2025,
Netiquette
Freundlichkeit
80 %

BEWERTUNGEN DIESES ANBIETERS

 
Qualit�tsmakler
Qualitätsmakler
2015, 2016, 2018, 2019, 2020, 2021, 22/23, 2024, 2025
Antwortzeit
ø 48h ANTWORT
Weiterempfehlung
WIRD GERNE

Freundlichkeit
BESONDERS
FREUNDLICH
Netiquette
FINDMYHOME
NETIQUETTE
Auch du kannst bewerten! 7 Tage nach deiner Anfrage erhältst du dafür von uns ein Bewertungsmail.
Alle Infos zu unseren Auszeichnungen und dem FINDMYHOME.AT Qualitätsprogramm findest du hier: Übersicht anzeigen

FINANZIERUNG
?>

Du willst wissen, wie viel dein Umzug kosten wird?

Mach gleich den kostenlosen Preisvergleich und schau, welche seriösen Anbieter in deiner Region günstig deinen Umzug organisieren


ZUM UMZUGS-VERGLEICH
-->

MYHOME BLOG
SuchAgentin auf FindMyHome.at
Unterschiedlichen Rechtsthemen, köstliche Rezepte, neueste Design-Highlights, sowie aktuelle Technik-Tools für Ihr Eigenheim.


FINDMYHOME.AT SUCHAGENTIN
SuchAgentin auf FindMyHome.at
Hallo, soll ich dir ähnliche Immobilien kostenfrei per E-Mail schicken?


ÄHNLICHE IMMOBILIEN
Aehnliche Immobilie - Vorschaubild 1

Ecke gut - alles gut! Hier wohnt Ihr Kapital und es fühlt si... - Objektnr. 5621342

51,77 m² - 2.0 Zimmer
329000 €
PLZ: 1170

Mehr anzeigen

Aehnliche Immobilie - Vorschaubild 2

ERSTBEZUG | 2-Zimmer DG-Wohnung mit Loggia | Fernwärme & Kli... - Objektnr. 5538512

36,82 m² - 2.0 Zimmer
344200 €
PLZ: 1170

Mehr anzeigen

Aehnliche Immobilie - Vorschaubild 3

Wohntraum in der Mayssengasse - Erstbezug: 2-Zimmer-Altbau m... - Objektnr. 5620563

43,45 m² - 2.0 Zimmer
272460 €
PLZ: 1170

Mehr anzeigen

Durch die Nutzung unserer Seite erklären Sie sich mit der Verwendung von Cookies zur Verbesserung Ihres Online-Erlebnisses einverstanden. Detaillierte Informationen zu diesem und weiteren Themen erhalten Sie in unserer Datenschutzerklärung.